|
«Дом Горизонтов», спроектированный Kleinewelt Architekten в Крылатском, хорошо продуман на стереометрическом уровне начиная от логики стыковки объемов – и, наоборот, выстраивания разрывов между ними и заканчивая треугольными балконами, которые создают красивый «ершистый» образ здания.
Здание с романтическим риелторским названием «Дом Горизонтов» активно строится в Крылатском, а место это во многом замечательное. Помимо одного микрорайона 1980-х, здесь почти ничего не строили, новые дома начали появляться в последние пару лет, и то их совсем немного. Крылатская улица проходит по бровке высокого склона Москвы-реки, к северу за рекой Серебряный бор; к западу Рублевский лес, к югу парк Крылатские холмы. Словом, место – пальчики оближешь. Неудивительно, что дом получил такое название: именно здесь, особенно при взгляде на северную, речную половину панорамы, мы получаем широкий размах горизонтальных панорам, от Живописного моста до развязки Рублевского шоссе.
Авторы проекта Kleinewelt Architekten полностью использовали выгоды расположения расположения и, хотя контур участка это прямоугольник, параллельный реке, – собственно дом они вытянули поперечно, то есть меридионально. А такая ориентация по сторонам света, как известно, наиболее выгодна с точки зрения инсоляции и вообще освещенности квартир.
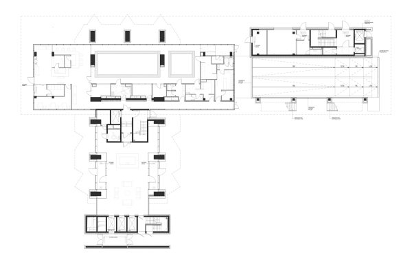
Линию улицы держит поперечная дому «балка» ФОКа с бассейном.
 Двухъярусная общественная часть тянется вдоль улицы, оформляя ее и освещая, что морфологически напоминает «стекляшки» позднего модернизма. Отличия – в качестве стекла, глубоких выносах карнизных плит, в наличии балкона, на который можно выйти из физкультурного комплекса к речной панораме; во всех тех мелочах, которых не хватало 1980-м. Идея-то была хорошая, а вот мелочей не хватало. Пожалуй, теперь самое время использовать продуктивные идеи, не гнушаясь мелочей.
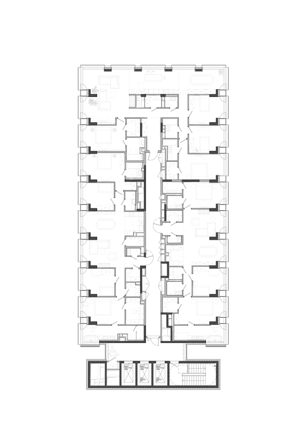
Композиция дома – самая что ни на есть модернистская. В южном торце жилого дома сгруппировано коммуникационное ядро с тремя лифтами, связанное с коридором «прослойкой» прозрачного холла со стеклянными стенами.
 Контур жилого дома в нижней части на высоту четырех этажей «прорисован» прямоугольными опорами-пилонами. Он как «дом на ножках», только в «ноги» встроена сначала общественная часть, а потом, в глубине участка – лобби со стеклянными стенами 7-метровой высоты.
С востока к физкультурной части по линии улицы примыкает еще один объем, соединенный с ней переходом. Там размещен въезд в парковку. Не обычный, а с прямой рампой въезда-выезда, чтобы жителям не приходилось задумываться о спиральном повороте.
 Подземная парковка – двухъярусная. Высота стилобатного яруса: вдоль улицы это парковка и ФОК, внутри двора лобби с его «обитаемой кровлей» – состоит из двух ярусов, общей высотой чуть более 11 метров. Таким образом, три нижних этажа 27-этажной постройки, условно говоря, девятая часть всей высоты, отдана общественным пространствам разной степени приватности.
Объем лобби, как мы помним, со стеклянными фасадами, вытянут поперечно улице в основании жилой части. На его кровле предусмотрено открытое общественное пространство для жителей – проветриваемый разрыв, «верхний двор» между собственно жилой частью и стеклянным лобби.
 Таким образом, дом представляет собой структуру, логично выстроенную из нескольких взаимосвязанных объемов.
Фасады жилой части – реагируют непосредственно на панораму, которая в данном случае преподносится, и со всеми на то основаниями, как главная ценность.
 Три главных фасада решены как своего рода объемная «пила», и воспринимаются как одинаковые или похожие, что, на самом деле, не совсем верно. Все они покрыты треугольными балконами, все балконы расположены в шахматном порядке, в линии этажа – через один. Но на главном, в данном случае северном, но зато видовом, торце балконы представляют собой в плане равносторонние треугольники. Линия боковых фасадов – зубчатая, можно сказать, что они составлены из треугольных эркеров, причем треугольники тут уже не равносторонние, а прямоугольные: их гипотенуза примыкает к пространству квартиры и «растворяется» в нем, меньший катет представляет собой глухую стену и обращен на юг, а больший, стеклянный – смотрит на северо-запад или северо-восток, в сторону лесных и речных панорам Серебряного бора. Лаконичная, построенная на простой геометрии и обоснованная с точки зрения рыночной ценности квартир исходя из видовых характеристик, логика.
Балконы на протяженных боковых фасадах вписаны в треугольные углубления, то есть представляют собой своего рода контрапункт по отношению к выступающим вперед треугольникам на торце. Тот факт, что все они «тянутся» к реке, подчеркнут контуром тех балконов, которые, определенно неслучайно, пришлись скошенные угловые стены: они «лишены» передней северной стены, а их внешняя точка немного протянута вперед, что усиливает заострение треугольника и превращает эти балконы в подобия «капитанских мостиков» для созерцания реки.
 А заодно усиливает «эффект ершистости» фасадов.
 Есть у дома также и «голова», аттиковая часть. Она состоит из пентхаусов «полуторной» четырехметровой высоты, допускающей устройство внутри них лофтовых ярусов с высокой гостиной, со стеклянными фасадами и высокими «нишами», ритмично дробящими стеклянную поверхность верхнего на вертикали.
 Три пентхауса с повышенными потолками занимают верхний 27 этаж. На 26 этаже под ними расположены четыре квартиры, по контуру окруженные открытыми террасами – как сообщается, «от уютных 12 до внушительных 91 м2». Внешние стены квартир 26 этажа, соответственно, отступают в глубину – и в абрисе здания возникает не только «голова», но и «шея». Что хорошо работает на выразительность силуэта.
Какая-то в нем чувствуется перекличка с известным зданием Академии наук, которое расположено в другой, юго-западной, части города, но тоже на реке. Хотя, если говорить о творчестве Kleinewelt, «головы» встречаются у их проектах не впервые: вспомним хотя бы ЖК MOD с их светящимися навершиями.
 Строительство идет полным ходом, завершить планируют в 2027 году.
 Клубный дом на Крылатской улице© Kleinewelt ArchitektenКлубный дом на Крылатской улице© Kleinewelt ArchitektenКлубный дом на Крылатской улице© Kleinewelt ArchitektenКлубный дом на Крылатской улице© Kleinewelt ArchitektenКлубный дом на Крылатской улице© Kleinewelt ArchitektenКлубный дом на Крылатской улице© Kleinewelt ArchitektenФасады: восточный и северный. Клубный дом на Крылатской улице© Kleinewelt ArchitektenВид с северо-запада. Клубный дом на Крылатской улице© Kleinewelt ArchitektenКлубный дом на Крылатской улице© Kleinewelt ArchitektenКлубный дом на Крылатской улице© Kleinewelt ArchitektenКлубный дом на Крылатской улице© Kleinewelt ArchitektenКлубный дом на Крылатской улице© Kleinewelt ArchitektenКлубный дом на Крылатской улице© Kleinewelt ArchitektenКлубный дом на Крылатской улице© Kleinewelt ArchitektenКлубный дом на Крылатской улице© Kleinewelt ArchitektenКлубный дом на Крылатской улице© Kleinewelt ArchitektenКлубный дом на Крылатской улице© Kleinewelt ArchitektenКлубный дом на Крылатской улице© Kleinewelt ArchitektenКлубный дом на Крылатской улице© Kleinewelt ArchitektenДом Горизонтов. В процессе строительства. 01.2026Фотография © Даниил Анненков / предоставлена Kleinewelt ArchitektenДом Горизонтов. В процессе строительства. 01.2026Фотография © Даниил Анненков / предоставлена Kleinewelt ArchitektenДом Горизонтов. В процессе строительства. 01.2026Фотография © Даниил Анненков / предоставлена Kleinewelt ArchitektenДом Горизонтов. В процессе строительства. 01.2026Фотография © Даниил Анненков / предоставлена Kleinewelt ArchitektenДом Горизонтов. В процессе строительства. 01.2026Фотография © Даниил Анненков / предоставлена Kleinewelt ArchitektenДом Горизонтов. В процессе строительства. 01.2026Фотография © Даниил Анненков / предоставлена Kleinewelt ArchitektenДом Горизонтов. В процессе строительства. 01.2026Фотография © Даниил Анненков / предоставлена Kleinewelt ArchitektenДом Горизонтов. В процессе строительства. 01.2026Фотография © Даниил Анненков / предоставлена Kleinewelt ArchitektenДом Горизонтов. В процессе строительства. 01.2026Фотография © Даниил Анненков / предоставлена Kleinewelt ArchitektenДом Горизонтов. В процессе строительства. 01.2026Фотография © Даниил Анненков / предоставлена Kleinewelt Architekten
|