Пешеходный мост в Борском Волгоречье
Фотография © Александр Ивасенко / предоставлена АБ ГОРА
Пешеходный мост в Борском Волгоречье
Фотография © Александр Ивасенко / предоставлена АБ ГОРА
Бор стоит на левом берегу Волги, но отделен от нее заливными лугами: пассажирские суда идут на Бор по протокам Везломы, для автомобилей работал паром. Новый пешеходный мост выходит к пристани, а обзорная площадка в его завершении обращена на Везлому, на Борскую пойму. Маршрут из города к пристани – сезонный, после строительства канатной дороги и дублера Борского моста (федерального значения) добраться через Волгу в Нижний Новгород вообще – не проблема. Однако заливные луга – традиционно любимое место отдыха борчан. Семь лет назад это место внезапно отрезали от города объездной дорогой, обосновав ее строительство потребностями автомобилистов, хотя эти обоснования не всем казались достаточно убедительными.
Пешеходный мост в Борском Волгоречье. Фрагмент презентации
© АБ ГОРА
Пешеходный мост в Борском Волгоречье
Фотография © Александр Ивасенко / предоставлена АБ ГОРА
На объездной поставили у зебры светофор, но задумали и надземный переход. Сначала предлагалось сделать как в Нижнем Новгороде – неуклюжий пластиковый «трубопровод». Но на одном из обсуждений губернатор засомневался – так возникла идея эксклюзивного проекта. Если исходить только из этих фактов, и еще немного понаблюдать, как пешеходы сейчас, не поднимаясь на мост, идут к светофору, нетрудно предположить, что проект Горшунова – приятное художество, чистый симулякр.
Предположения быстро развеются – достаточно вспомнить, как яростно местные коммунисты критиковали саму идею пешеходного моста. В ответ на критику выстраивается целая цепочка доводов: благоустраивается «Борское волгоречье», которое увеличит туристическую привлекательность города и, в конце концов, вольется в некий туристический кластер. Будет ли кластер – неизвестно, в прибрежной зоне уже действуют реконструкторы: показывают что-то из истории Древнего Рима; летом открыт вейкпарк на Юрасовском озере. Были заявления о строительстве океанариума на Бору, также встреченные неоднозначно и потому скорректированные дополнением: «океанариумом с гостиницей и реабилитационным центром для детей с ДЦП». Еще одна инициатива – на берегу Везломы открыть яхт-клуб с зимним хранением и пирс для судов. Так что сейчас пешеходный мост – знак перемен в Борском волгоречье.
Пешеходный мост в Борском Волгоречье
Фотография © Александр Ивасенко / предоставлена АБ ГОРА
Этот знак действительно красив. Мост – сам по себе новая достопримечательность города, современная, эстетически безупречная, в том же ряду, что и Моховые горы – предыдущий проект бюро ГОРА на Бору.
Пешеходный мост в Борском Волгоречье
Фотография © Александр Ивасенко / предоставлена АБ ГОРА
Пешеходный мост в Борском Волгоречье
Фотография © Александр Ивасенко / предоставлена АБ ГОРА
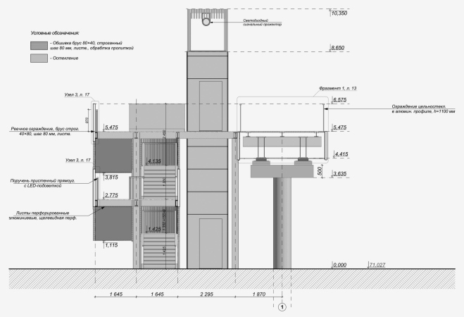
Мост называют алюминиевым: конструкции выполнены из металла. Отделка – из лиственницы и стекла. Стеклянные фрагменты – принципиальны для города, известного, прежде всего, своим стеклозаводом.
Дерево в отделке тоже здесь не случайно – первоначальный вариант проекта предусматривал строительство деревянного моста.
Архитекторов вдохновила местная история: в середине 1930-х на Бору запустили первую в стране промышленную монорельсовую дорогу. Деревянная эстакада проходила по местности с большими перепадами рельефа, по ней доставляли на Бор лес и торф. Дорога проработала шесть лет – до полного освоения лесного массива.
Монорельс 1935 года в Борском Волгоречье
Архивная фотография: представлена АБ ГОРА
В пояснении к проекту моста написано, что на монорельсовой дороге локомотивы были двухъярусными: сверху – кабина и мотор от трактора, под площадкой – ходовая часть. Так и деревянный мост мог бы воспроизводить образ монорельса – с кафе – довеском на нижней платформе под обзорной площадкой.
Первоначальный проект деревянного моста. Пешеходный мост в Борском Волгоречье
© АБ ГОРА
Но не случайно на защите своего проекта в финале архитектурного рейтинга «Золотая капитель» Горшунов включил в презентацию слайд с красными фигурами Матисса – «Танец» вокруг моста.
Пешеходный мост в Борском Волгоречье
© АБ ГОРА
Я решила, что это намек на высокое искусство, Стас не скромничает. Оказалось – визуализация суетливой атмосферы вокруг проекта моста, когда проявились разные интересанты.
Обсуждение долговечности, пожаро- и прочей безопасности радикально повлияли на проект. Захотелось не аллюзий на историю лесозаготовок, а что-нибудь этакое про светлое будущее. Тем более что уже шли разговоры про «нижегородский хайтек» – первый в России автомобильный мост из алюминия через реку Линду, недалеко от Бора. Так деревянный пешеходный мост перерисовали в алюминиевый.
Дерево в его отделке переходит и в вертикали кафе «Волгоречье» – оно не висит под мостом, а стоит в начале подъема на мост, рядом со скейтпарком. Вся территория благоустроена по единому проекту – до площади Георгия Победоносца: дорожки, малые формы, площадки. Прогулочная зона протянется и в другую сторону за мост – до канатной дороги.
Пешеходный мост в Борском Волгоречье
Фотография © Александр Ивасенко / предоставлена АБ ГОРА
Пешеходный мост в Борском Волгоречье
Фотография © Александр Ивасенко / предоставлена АБ ГОРА
Мост высоко оценило не только жюри «Золотой капители» в Новосибирске, но и нижегородцы, откровенно завидуя городу-спутнику. Конечно, не стоит ждать, что лифт для маломобильных граждан работает. Или что вокруг – ни окурков, ни мусора на берегу. Но качество выполненных работ на мосту и вблизи – образцовое.
Пешеходный мост в Борском Волгоречье
Фотография © Александр Ивасенко / предоставлена АБ ГОРА
Вблизи – принципиальное уточнение. Местные называют Бор большой деревней, и отчасти это справедливо – общественное здесь дробится на частные интересы в общие редко соединяется. Хотя подчас соединяется – к примеру, вот, строят музей Сталина. А Мухинское озеро – главный миф и основа города – благоустроили до полной утраты всего живого. Металлическую конструкцию – фрагмент того же павильона 1896 года, часть которого сохранилась на нижегородской Стрелке, сдали, хотя и знали про историю происхождения этой железяки. Юрасовское озеро (где открыли пляж и вейкпарк) теперь – в кольце дорог, летом этого года Роспотребнадзор признал его непригодным для купания. Историческое деревянное здание станции «Моховые горы» отреставрировали до неузнаваемости, превратив в пивной магазин. А в Волгоречье, напротив нового кафе – через дорогу – где еще стоят руины какого-то мелкого производства, вырос гигантский объем без окон и, кажется, без дверей. Говорят, кто-то построил эллинг. Но не говорят, почему кто-то разрешил построить такое. Впрочем, и к благоустройству Волгоречья есть вопросы: кто дает гарантию на чахлые маломеры, выданные за озеленение?
Поскольку значение моста для города Бор пока трудно измерить, а в знаки не всякий верит, предлагаю оценивать его как арт-объект. В нем есть все: выверенность пропорций и разбег линий. Теплота и отстраненность. Традиционный материал и новация. Он уместен, комфортен, притом – самодостаточен. Небанален и лишен избыточной декоративности. Помимо возможности движения вверх-вниз, вдоль и даже поперек, акцентирует ощущение подвешенности, зависания. И если этот мост символизирует что-то, то – попытку разглядеть перспективу: Нижний ли Новгород за рекой или другие дали. Он инсталлирован в Волгоречье для ментальной перезагрузки.
Пешеходный мост в Борском Волгоречье
Фотография © Александр Ивасенко / предоставлена АБ ГОРА
