Универмаг La Samaritaine – реконструкция
Фото © Jared Chulski. Предоставлено La Samaritaine, Société foncière
После долгих консультаций с городом группы LVMH миллиардера Бернара Арно, которой теперь полностью принадлежит универмаг, было определено будущее комплекса. Он перестает быть исключительно торговым, позднейшая, выходящая на Сену его часть превращается в отель, появляются этажи офисов, а общий «класс» заведения повышается: оно становится ориентировано исключительно на состоятельных посетителей.
Универмаг La Samaritaine – реконструкция
Фото © Jared Chulski. Предоставлено La Samaritaine, Société foncière
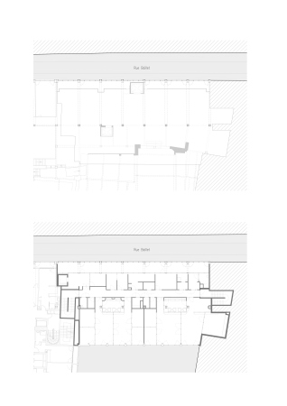
Противоположный речному корпус-квартал, выходящий на знаменитую улицу Риволи, разрешили снести как не представляющий особой исторической ценности, и вместо него бюро SANAA построило почти полностью новый корпус. Почти, потому что собственника все же обязали сохранить жилой дом сбоку: там теперь размещена часть из почти ста социальных квартир. Остальные, как и ясли (то и другое – проекты François Brugel Architectes Associés), находятся в соседнем, старейшем из специально построенных для La Samaritaine здании, вокруг атриума по проекту японских архитекторов, который назван Журден – в честь изначального автора проекта универмага. В своем здании они тоже создали атриум – Риволи. Туда выходят офисы (15 000 м2), занимающие верхние этажи, нижняя часть – торговая, она объединяет все части комплекса, кроме отеля – изначально тоже вмещавшего La Samaritaine здания в стиле ар деко, над которым Франц Журден сотрудничал с Анри Соважем, который и заканчивал работу в одиночку после смерти соавтора.
Универмаг La Samaritaine – реконструкция
Фото © Pierre-Olivier Deschamps, Agence VU′
Собственно универмаг теперь стал не просто «Самаритянкой» (он был назван в честь украшавшей расположенную на Сене насосную станцию начала XVII века статуи евангельской героини, исчезнувшей вместе со станцией еще в начале XIX века), а La Samaritaine Paris Pont-Neuf, чтобы отличать его от филиалов. Торговые площади (20 000 м2) оформлены студиями Yabu Pushelberg, Agence de création Malherbe Paris и Studio Ciguë.
Универмаг La Samaritaine – реконструкция
© SANAA
Превращением здания Соважа в отель занимался Эдуар Франсуа, а интерьеры оформлял Питер Марино. Гостиница сети Cheval Blanc откроется для постояльцев этой осенью: там 26 комнат и 46 номеров типа suite, включая главные апартаменты площадью 1000 м2.
Снаружи главным героем реконструкции стал стеклянный фасад корпуса SANAA (японские архитекторы выиграли международный конкурс на право заняться La Samaritaine) – три слоя с шелкографическими точками, что защищает интерьер от перегрева и одновременно обеспечивает там естественное освещение. Внешняя, напоминающая занавес волнистая поверхность состоит из 343 панелей размером 2,7 х 3,5 м и массой 600–1250 тонн. Каждая зафиксирована лишь в четырех точках, причем производили, наносили рисунок, изгибали и монтировали их фирмы из четырех разных стран.
Универмаг La Samaritaine – реконструкция
Фото © Jared Chulski. Предоставлено La Samaritaine, Société foncière
Однако новые интерьеры, включая открывающиеся за главным входом с улицы Риволи, гораздо скромней экстерьера: невысокие потолки и многочисленные эскалаторы. На их фоне тщательная реставрация, которой подверглись исторические части магазина, производит особенно сильное впечатление. Архитектор Франц Журден, в том числе в сотрудничестве с сыном Франсисом, автором знаменитой росписи с павлинами, богато оформил фасады и интерьеры в стиле модерн – с позолотой, разноцветной глазурью и множеством орнаментов.
Реставраторы, Lagneau Architectes, восстанавливали облик магазина по состоянию на 1932 год, когда его архитектурный комплекс уже сложился, а сам он переживал свой расцвет. Невозможно было по соображениям безопасности сохранить стеклянные полы в прежнем объеме, но 2300 полупрозрачных панелей все же вернули на пятый этаж, под знаменитую стеклянную кровлю 1907 года. Чтобы избежать там перегрева, для нее теперь использовали «умное» электрохромное стекло, которое темнеет на солнце. Перекрытия площадью 1000 м2 – самая крупная на сегодняшний день поверхность, остекленная этим материалом.
Универмаг La Samaritaine – реконструкция
Фото © Jared Chulski. Предоставлено La Samaritaine, Société foncière
Собственно проект при пятне застройки в 10 000 м2 охватывает 70 000 м2: эта площадь сопоставима с суммой всех выставочных залов расположенного совсем рядом Лувра, а по строительному объему La Samaritaine сравним с крупным вокзалом.
Универмаг La Samaritaine – реконструкция
Фото © Jared Chulski. Предоставлено La Samaritaine, Société foncière
Бюджет в 750 млн евро также охватил и пространство вокруг магазина. 10 000 м2 улиц и переулков сменили категорию с обычной на пешеходную или «смешанного использования», в том числе – 5000 м2 новой, закрытой для транспорта площади, созданной вместо выезда к Сене из тоннеля Пон-Неф.
Универмаг La Samaritaine – реконструкция
Фото © Jared Chulski. Предоставлено La Samaritaine, Société foncière
Универмаг La Samaritaine – реконструкция. Атриум Журден, куда выходят квартиры
Фото © Vladimir Vasilev
Универмаг La Samaritaine – реконструкция
Фото © Pierre-Olivier Deschamps, Agence VU′
Универмаг La Samaritaine – реконструкция
Фото © Pierre-Olivier Deschamps, Agence VU′
Универмаг La Samaritaine – реконструкция
Фото © Pierre-Olivier Deschamps, Agence VU′
Универмаг La Samaritaine – реконструкция
Фото © Jared Chulski. Предоставлено La Samaritaine, Société foncière
Универмаг La Samaritaine – реконструкция
Фото © Pierre-Olivier Deschamps, Agence VU′
Универмаг La Samaritaine – реконструкция
Фото © Jared Chulski. Предоставлено La Samaritaine, Société foncière
Универмаг La Samaritaine – реконструкция
Фото © Jared Chulski. Предоставлено La Samaritaine, Société foncière
Универмаг La Samaritaine – реконструкция
Фото © Jared Chulski. Предоставлено La Samaritaine, Société foncière
Универмаг La Samaritaine – реконструкция
Фото © Jared Chulski. Предоставлено La Samaritaine, Société foncière
Универмаг La Samaritaine – реконструкция. Исторический корпус с социальным жильем
Фото © Pierre-Olivier Deschamps, Agence VU′
Универмаг La Samaritaine – реконструкция. Исторический корпус с социальным жильем
Фото © Pierre-Olivier Deschamps, Agence VU′
Универмаг La Samaritaine – реконструкция
© SANAA
Универмаг La Samaritaine – реконструкция
© Cyrille Thomas
Универмаг La Samaritaine – реконструкция
© SANAA
Универмаг La Samaritaine – реконструкция
© SANAA
Универмаг La Samaritaine – реконструкция. Остекленные перекрытия в ходе работ
© SANAA
Универмаг La Samaritaine – реконструкция
© SANAA
Универмаг La Samaritaine – реконструкция
© SANAA
Универмаг La Samaritaine – реконструкция
© SANAA
Универмаг La Samaritaine – реконструкция
© SANAA
Универмаг La Samaritaine – реконструкция
© SANAA
