Два года назад мы изучали проекты рейтинга 2020–2021, и добрались до ардекошного KM-Tower и «нелинейного», хотя и штукатурного, ЖК Лайнер на Барминской улице. Место показалось, несмотря на близость к центру, пустынным, особенно по зимней ветреной погоде, и мы дальше вперед не пошли. А зря, поскольку сейчас там вырос и уже «оперился» очень привлекательный дом Residence Prime Максима Горева и бюро ГОРПРО. Он даже получил осенью диплом на Зодчестве, хотя, положа руку на сердце, могли бы дать и больше простого диплома.
Residence Prime
Фотография © Александр Ивасенко / предоставлена Проектная Компания «ГОРПРО»
Бюро это сравнительно новое, работает порядка пяти лет, а его название, так похожее на имена пары московских компаний, происходит не от «города», что, впрочем, тоже вероятно, а от фамилии основателя. Раньше он работал в СС Проект, где сделал довольно много домов, в том числе смелой яркой раскраски, а иногда и не менее смелой, даже причудливой формы, как например, поликлиника УВД «Шлем».
Но вернемся к дому. Он тоже яркий и сложный, но отличается от ряда предыдущих проектов собранностью и элегантностью. Стоит он на бровке склона, перепад высот 7 метров осмыслен через 2 этажа подземной парковки, общественного этажа над ней и, конечно, террасами, сглаживающими рельеф для комфорта людей, вокруг.
Residence Prime
Фотография © Александр Ивасенко / предоставлена Проектная Компания «ГОРПРО»
Residence Prime
Фотография © Андрей Ефимов / предоставлена Проектная Компания «ГОРПРО»
Ориентация участка – та, что у архитекторов считается неудобной: он вытянут строго в запада на восток, противоположность «наилучшей» меридиональной.
Residence Prime. Благоустройство
© Проектная Компания «ГОРПРО»
Зато дом «прорастает» из склона, к реке он обращен зауженным торцом и оттуда выглядит как небольшой и в какой-то момент даже тонкий белый объем с золотистой надстройкой. Зато если посмотреть сбоку, он – змея, даже стена с «головой» – башней, обращенной к городу. Это распространенный прием современной архитектуры, я мысленно его называю «дом-жираф», таких «жирафов» сейчас довольно много. Но Барминский «жираф» очень живой, он даже немного «виляет хвостом», обращая к северу пластичный дугообразный бок, а на «спине» несет нагромождение – впрочем, вполне регулярное, в шахматном порядке – золотистых террас. Они сгруппированы со стороны реки и по северному фасаду, как будто дом с одним характером поставлен поверх другого или даже прорастает из него в некоем пластическом симбиозе.
Residence Prime
Фотография © Александр Ивасенко / предоставлена Проектная Компания «ГОРПРО»
Террасы совершенно великолепны, особенно на закате. Они и золотые, как сейчас модно, и лепятся по бьяркеингельсовски, или мошесафдишному, – впрочем, прием, как и силуэт «жирафа», давно вошел в копилку идей, которые для современной архитектуры можно считать общими, лишь подлежащими авторской трактовке.
Residence Prime
Фотография © Андрей Ефимов / предоставлена Проектная Компания «ГОРПРО»
Residence Prime
Фотография © Андрей Ефимов / предоставлена Проектная Компания «ГОРПРО»
Residence Prime
Фотография © Андрей Ефимов / предоставлена Проектная Компания «ГОРПРО»
Северный фасад выгнут широкой дугой, а южный, наоборот, вогнут, и тут вместо террас – балконы, а еще выступы входных групп, которых в доме много, поскольку он – особенный «секционник»: в каждой секции всего лишь 2–3 квартиры, то есть его можно было бы понять и как скопление сблокированных «башен».
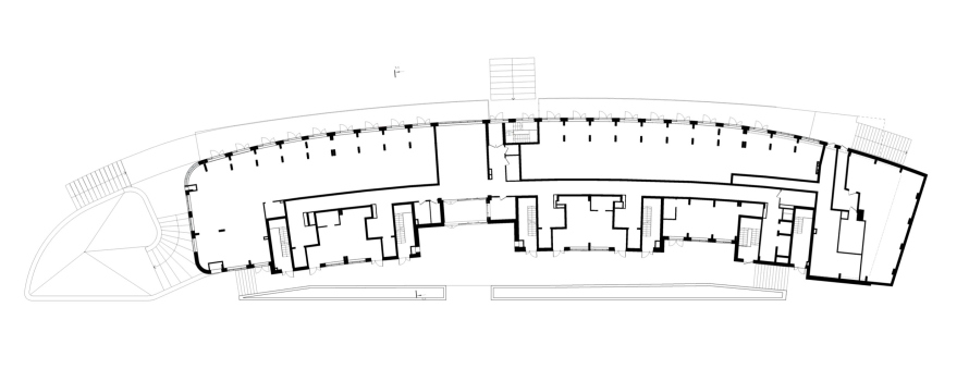
Residence Prime. План 1 этажа
© Проектная Компания «ГОРПРО»
Residence Prime
Фотография © Андрей Ефимов / предоставлена Проектная Компания «ГОРПРО»
Башня-«голова» – отдельная история, что подчеркнуто тонкой вертикальной разгранкой ее верхней части. Впрочем «со спины» на нее заходит, и не просто так, плоско, а с уступом-выемкой, с легкой чешуйчатостью пластин, золотистая поверхность – подчеркивая симбиотический характер данного «животного».
Дом скульптурен, а это значит, что собственно архитектурная работа тут проведена дотошно, старательно, последовательно. Можно было бы придраться к череде выступов входных групп, что-то в них есть от пресловутых «градусников», и в то же время выступы крупнее, основательнее, и не стеклянные – они больше напоминают крепостные контрфорсы, благо Кремль тут недалеко; ну или просто ребра жесткости: представим себе, что здание «согнули», и вот, его «силовой каркас» оказался на внутренней поверхности дуги.
Residence Prime
Фотография © Андрей Ефимов / предоставлена Проектная Компания «ГОРПРО»
Внешнюю, выгнутую дугу, отличает ритмичный паттерн окон и кондиционерных ящиков на белом фоне. Она обращена к центру города и кажется главным фасадом дома, тем более что мы ее видим в проезде по автостраде с Метромоста в город. В Нижнем такие перепады, что оценить, какой соседний дом будет виден следующим, непросто, но есть все основания полагать, что вскоре после дуги Residence Prime водитель увидит дома Маршал-Града, тоже дугообразные (кольцеобразные) и тоже покрытые паттерном, и что здесь выстроена некая последовательность.
Residence Prime
Фотография © Андрей Ефимов / предоставлена Проектная Компания «ГОРПРО»
Впрочем, глядя на дугу Residence Prime вместе с его башней на ум приходят другие аналогии: ЖК Лица и даже Дом на Мосфильмовской. Хотя здесь масштаб, конечно, поменьше, и сходство не буквальное, но подход кажется близким. Особенно – сочетание контрастного паттерна с черными ногами парадного торца, вырастающими из темного стилобата.
Отдельный интересный момент – как дом вписан в контекст; довольно тщательно. О Маршал Граде я уже сказала, но тут еще много всего. Если смотреть со стороны склона, то в перспективе видны близлежащие KM Towers и чуть более дальний ЖК Лайнер Бориса Тарасова. Первое впечатление – Residence салютует Лайнеру и зеркалирует его раскраску, но решает ее в более сложном, дорогом и объемном, ключе.
А KM Towers игнорирует как не-родного.
Residence Prime
Фотография © Александр Ивасенко / предоставлена Проектная Компания «ГОРПРО»
Решение, в общем-то, можно понять: между Лайнером и Residence выстраивается какое-то «взаимопонимание», подмигивание – они не только одной расцветки, но и вытянуты оба с запада на восток, то есть, в сущности, почти по одной линии, в один ряд. Родственники. Хотя более новый дом заметно качественнее и сложнее.
Но если бы все было так просто. Тут можно найти переклички и в более широкой перспективе – например, с собором Александра Невского на Стрелке: золотые террасы по цвету почти «попадают» в желтый оттенок фасадов пятишатрового собора, довольно редкий даже для XIX века и потому «фирменный» нижегородский, благодаря известности собора.
Residence Prime
Фотография © Андрей Ефимов / предоставлена Проектная Компания «ГОРПРО»
И это не все. Невозможно не увидеть и другие переклички – с бело-золотыми башнями Благовещенской слободы, которые предлагала в своем проекте «Остоженка». Пока дом проектировали и строили, башни были именно такими, в них присутствовал и другой элемент сходства – ступенчатые пластины. Осмелюсь предположить, эта перекличка, несколько более дальняя, была главной. Выросло бы на склонах два высотных комплекса: подальше и поближе, один несколько более угловатый, другой пластичнее, они бы обрамляли будущий IT-кампус с двух сторон.
Но «во время пути» башни Глоракса стали из бело-золотых красновато-стальными. А дом Максима Горева остался. Неисповедимы, как говорится, пути истории русской архитектуры, будь то старой или новой...
Однако и это тоже не все. Для того же заказчика, ГК Каркас Монолит, в 2022 году Горев спроектировал второй дом в 600 метрах к северу от первого, то есть рядом, через дорогу от башен Глоракса. Так вот, если смотреть на юг, в сторону Residence Prime, то он вторит его структуре, прежде всего в нем видно то же различие между «телом» и «головой», только оно спроецировано на другой тип объемов. А если смотреть со стороны Глоракса, то он красный – то есть во втором проекте была уже уловлена и озеркалирована смена цвета. Хотя, оговорюсь, кирпичные фасады с этой стороны могли стать реакцией и на промышленные здания XIX века независимо от цветовых размышлений соседнего девелопера. Сходство с KM Towers, а в перспективе или в проезде их видно, в этом проекте тоже более заметно.
Все это достаточно любопытно, перед нами очень оживленное развитие города, как это и бывает в Нижнем, подвижное и разнообразное, чуткое к окружению – что, вот удивительно, не исключает масштаба и смелости, яркости решений. На фоне несколько избыточной типизации московской архитектуры – не отдельных представителей, конечно, а всего в целом, en masse, – каждый такой дом как жемчужина.
Нижний ярус дома решен сложно из-за перепада высот, входы на разных уровнях, над 2 ярусами парковки общественный этаж, в него встроен детский центр. Квартиры разнообразные, напомню, всего по 2-3 на секцию, в нижних этажах по северному контуру – сплошная лоджия, как бывало в некоторых модернистских проектах, а сейчас довольно редко. Площадь квартир от 40 до 180 м2, причем многие уже выкуплены и объединены до 250 м2. Прайм он и есть прайм.

