Следующий этап «европеизации» Зареки – «Дом у озера», более камерный жилой комплекс. Он так же, как и «Европейский квартал», выходит к озеру Тихое, о котором мы расскажем подробнее ниже – девелопер проделал немалую работу, чтобы восстановить водоем и превратить его в жемчужину благоустройства.
ЖК «Дом у озера»
© Брусника / PETITDIDIERPRIOUX
Проект «Дома у озера» также создан при участии европейских архитекторов – на этот раз французов из бюро PETITDIDIERPRIOUX Architects, замеченных в числе победителей московского конкурса «Облик реновации». В соответствии с подходом «Брусники» перед ними стояла следующая задача: используя ряд типовых планировочных и конструкторских решений, создать узнаваемый комплекс, который также войдет в резонанс с окружением. Главная идея – добиться настроения загородной беспечности, причем за счет не только озера, которое будет хорошо видно из окон многих квартир, но и более тонких вещей – добрососедства, гуляющих во дворе детей, ужина на воздухе.
ЖК «Дом у озера». Макет
© Брусника / PETITDIDIERPRIOUX
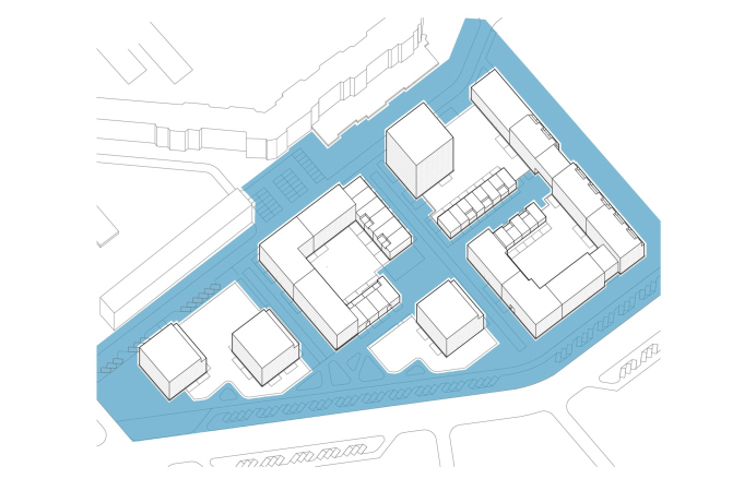
Настройка начинается на уровне генплана. «Дом», который здесь понимается скорее в общинном, нежели типологическом смысле, формируют корпуса разного характера – у каждого свои особенности и преимущества.
Доминанта комплекса – 17-этажная башня, которую планируют строить и сдавать первой. Ее объем за счет пластических решений визуально делится на две вертикальные части с узкой белой «прослойкой» между ними, причем каждая из трех частей понижается на один этаж относительно предыдущей – это позволяет решить некоторые инсоляционные задачи и дополнить большие квартиры террасами. Облицованные керамикой ручной формовки простенки вырастают из общего и более массивного за счет глухих поверхностей стилобата, к верхним этажам они постепенно расширяются, превращаясь в кульминационной точке в навершие в виде «короны».
ЖК «Дом у озера»
© Брусника / PETITDIDIERPRIOUX
Два секционных дома гусеницей заворачиваются вглубь квартала, но их масштаб по сравнению с соседней микрорайонной застройкой кажется меньше за счет террас, задающих ритм ниш и элегантного сочетания белой штукатурки со светлым кирпичом на фасадах. Считать этажи здесь в принципе как-то не приходит в голову – горизонтальная ориентация секций обозначена так же четко, как устремленность вверх соседней башни. Самый протяженный корпус выходит на озеро, по центру он прерывается сквозной аркой, которая соединяет дворовые пространства с территорией водоема.
ЖК «Дом у озера»
© Брусника / PETITDIDIERPRIOUX
ЖК «Дом у озера»
© Брусника / PETITDIDIERPRIOUX
Секционные дома замыкаются в кварталы благодаря «перемычкам» из таунхаусов, расположенных во дворе. Из их окон вид на озеро не открывается, однако преимуществом становятся отдельный вход и собственный кусочек земли в виде палисадника и заднего двора, деликатно отделенного от дворовых пространств зеленой изгородью и террасой с настилом – это пространство играет роль еще одной комнаты, где можно обедать, играть с детьми и просто отдыхать на свежем воздухе. Терраса также позволяет добавить в дома большие окна без ущерба приватности резидентов. Каждая секция таунхаусов будет облицована по-разному, что призвано усилить индивидуальный характер этого типа жилья.
ЖК «Дом у озера»
© Брусника / PETITDIDIERPRIOUX
Последняя типология – три компактные урбан-виллы, расположенные вдоль Урайской улицы. Их основной семиэтажный объем увенчан двухэтажными «домиками»-пентхаусами, столь же необычными для массовой застройки российских городов, как в свое время синий домик MVRDV для исторического центра Роттердама.
ЖК «Дом у озера»
© Брусника / PETITDIDIERPRIOUX
ЖК «Дом у озера»
© Брусника / PETITDIDIERPRIOUX
Все здания комплекса расположены на участке с учетом трех параметров: раскрытия видов на озеро, инсоляции и ветровых нагрузок. В каждой квартире есть неостекленная лоджия, а те из них, что обращены к озеру или на юг, имеют больший размер и ограждение, выполненное в технике «клаустра», которая придает фасаду ажурность, а внутреннему пространству – тень, приватность и умеренную прохладу, не закрывая при этом вид. Архитекторы называют этот элемент машрабией и развивают тему перфорированных поверхностей в лобби. Помимо клинкера ручной формовки и штукатурки на фасадах используются металл, дерево и бетон: каждый материал подчеркивает ту или иную особенность здания – будь то вид на озеро, расположение в центре квартала или на крыше здания.
ЖК «Дом у озера»
© Брусника / PETITDIDIERPRIOUX
Как и другие проекты застройщика, «Дом у озера» выделяется на фоне соседей: разнообразием морфотипов жилья и, соответственно, квартир, ненавязчивыми деталями, легко считываемым настроением и понятными сценариями, которые предлагает создаваемая среда.
О подходе к планировкам квартир стоит сказать отдельно: архитекторы реализуют в проекте «поэтажную стратегию», то есть размещают нестандартные помещения, согласуясь с логикой дома и квартала в целом. Например, в башне первые этажи помимо коммерческих помещений занимают квартиры с антресолями, в которых удобно размещать мастерские. Нижние жилые этажи занимают большие семейные квартиры – из них открывается обзор на игровые площадки, можно спокойно отпускать детей во двор и присматривать за ними. Верхние этажи занимают нестандартные квартиры со вторым уровнем или вторым светом, прогулочными террасами. Соотношение квартир по количеству комнат примерно равное, что соответствует запросу основного покупателя – комплекс рассчитан на семьи различного состава.
«Дом у озера» – тот случай, когда благоустройство играет с архитектурой на равных, а озеро превращается в гений места.
В 2019 «Брусника» провела ряд исследований: химического и микробиологического состава почвы и воды, состояния растений и животных, степени промерзания грунтов, толщины иловых отложений. Выяснилось, что когда-то озеро было намного больше, но сильно пострадало из-за массовой застройки, поскольку ослабилась связь с питающей рекой. В результате заболотились берега, сократилось биоразнообразие.
Озеро уже очистили от мусора и гниющих растений, после чего открылись донные родники – для этого потребовалось разделить водоем на две части и попеременно осушить каждую. Далее планируется увеличивать котлован водоема, чтобы глубина составила 2 метра, которые не дадут озеру промерзать целиком, и строить подпорные стены, защищающие берега от размывания. Дождевые сады на территории жилого комплекса будут фильтровать ливневые стоки и направлять их в озеро.
ЖК «Дом у озера». Генплан озера
© Novascape
На следующем этапе появится парк, концепцию которого разработало бюро Novascape. Решения благоустройства направлены, прежде всего, на развитие экосистемы и спокойное созерцание. Вдоль берега высадят ивы, вязы, тополя; плавучие биоплато помогут обогатить воду кислородом и станут безопасным местом гнездования птиц, а также кормовой базой для карпов, амуров, щук и судаков. Для людей появятся смотровые площадки, лежаки, амфитеатр со спуском к воде, а также пешеходный мост через самую широкую часть озера.
ЖК «Дом у озера». Озеро вид с верху
© Novascape
Благоустройство внутри квартала настроено все на ту же атмосферу загородной, немного даже дачной жизни. Дворики не нанизываются на регулярную сетку улиц, а разбросаны большими «полянами» по всей территории комплекса – это создает множество уголков и скрытых улочек. Общественные пространства напоминают укромные пьяцетты, зато по периметру «Дома у озера» устроены более оживленные променады, а также «карманные парки», которые защищают от ветра и шума. Через весь квартал тянется улица, ведущая к арке с выходом к озеру.
Полностью сдать «Дом у озера» планируют в 2025 году.
