Набережная. Севкабель ПОРТ / проект АБ «Хвоя»
Фотография © Григорий Соколинский
Проектом реорганизации территории занимаются архитекторы бюро «Хвоя». И вот на наши попытки познакомиться с проектом поближе они ответили примерно то, же что написано на сайте бюро: проект в развитии, это принципиально процесс. Поэтому показать можем только концепцию. Так что наш рассказ основан на материалах концепции и информации, найденной в публикациях о бурной тусовочной / общественной жизни комплекса.
«Мы начали работать над проектом по приглашению Леши Онацко, с которым до этого пытались делать парк Взморье, и которому просто понравились два наших бумажных проекта: каток на Мойке и реновация Яхт-клуба, – рассказывают архитекторы. – Что примечательно, оба эти проекта мы делали для собственного удовольствия и выставки Проекта Балтия».
Итак, территория, отведенная для кластера, расположена между рекой и Кожевенной линией: отделена примерно пятая часть, самый выгодный участок с видом и при воде. Рабочая часть оптимизированного производства к северу от улицы углубляется в город. Севкабель, надо сказать, строит новый завод в индустриальном парке Марьино под Петергофом.
На участке нового многофункционального пространства, заборы вокруг которого сняли прошедшей осенью, расположено несколько зданий: трехэтажное заводоуправление конца XIX века, при нем труба, из которой планируется выпускать цветной дым во время концертов, вытянуто вдоль Кожевенной линии. Рядом, в глубине участка вдоль заводоуправления – одноэтажный корпус того же времени, в заводское время предназначенный для производства кабельных катушек; его открыли первым, в 2017 как event-площадку – выставочный зал и место проведения фестивалей. В длинном кирпичном корпусе, вероятнее всего начала XX века, находился НИИ кабеля – он вместит офисы и творческие мастерские.
Кирпичные корпуса держат северный угол участка, два советских здания расположены южнее. Это огромный бетонный корпус «Б», в котором производили кабель, оттуда же перегружая его на подходившие по реке корабли по навесному переходу-мостику.
И здание администрации советского завода по Кожевенной линии, соединенное с кабельным корпусом еще одним «мостом» – закрытым навесным переходом. На его южном углу примостился миниатюрный остаток памятника архитектуры: башенка особняка Мессонье / Карла Симонса, основателя кабельного завода. Деревянный дом снесли около 2009 года и поставили на охрану в 2014; перспективы восстановления особняка и размещения в нем музея завода обсуждаются. В принципе интересно, как будет развиваться его судьба в процессе создания кластера.
Но вернемся к проекту. По контуру самого большого корпуса «Б» образовалась цепочка открытых общественных пространств. Первой благоустроили набережную – один из признаков современности, как известно набережные наше всё, да и вид с нее действительно феерический, на мост ЗСД, который теперь рифмуется с новым деревянным ограждением, его устроители определяют как самую длинную барную стойку в Петербурге. Между ребрами кабельного корпуса со стороны реки – они бетонные, фактурные и перекликаются с бруталистским Морвокзалом – разместили деревянные скамейки, перед ними деревянный помост, дальше трава. На траве расставили «вертикальные лежаки», по словам авторов они напоминают о привычке петербуржцев загорать, стоя у стен Петропавловской крепости. А вот ступеньки деревянного «пляжа», ведущие к воде, пока в планах.
Другим первоочередным вкраплением стали ворота на Кожевенной линии между кирпичным зданием XIX века и бетонным XX-го: четыре больших поворотных кортеновых пилона, подобных ламелям на втором этаже ЦДХ, – обозначают одновременно заводское прошлое и креативное настоящее территории.
Открытое пространство за особняком поделили на две неравные части: одна, чуть большая, отведена плоскостной парковке, другая меньшая, но зато примыкающая к реке, стала многофункциональной площадкой, здесь планируется трансформируемый амфитеатр, шезлонги, зимой каток. Здесь, под «ногой» кабельного корпуса, уже функционирует причал – особенная гордость архитекторов, поскольку он полностью оправдывает закрепленное за новым творческим пространством название «порт». Кораблик курсирует, новый водный маршрут работает.
Внутри территории между советскими корпусами образовалась внутренняя улица-бульвар. Ее вымостили геометрическими орнаментами, как будто положили под ноги ковер. Рисунок крупный, симметричный и контрастный, что живо отличает его от принятых в наше время изнеженных плавных градиентов. Вдоль «ковра» расставлены фонари-катушки, видимо вдохновленные инсталляциями-катушками, всё тут в них. Светят контекстуально-смысловые фонари довольно ярко, светом отраженным от их деревянных конструкций. Получаются крупные такие светляки, даже удивительно, что дерево может так светиться, какой-то здесь заключен парадокс. Кроме того, авторы напоминают нам – кабель, намотанный на такие вот катушки, помогает освещать Петербург, да и не только его. И вот еще что: «катушечные» светильники установлены на колесики, мобильны, их запросто можно переставлять и перегруппировывать.
Поворачивая на север, бульвар превращается в площадь – между торцом катушечного корпуса и зданием НИИ. Она расширяется в сторону реки и, согласно концепции, должна заканчиваться ступеньками к воде. Посреди площади некоторое время назад возвышался заводской артефакт – вытяжка из столярного цеха, он же цех катушек; теперь ее разобрали и архитекторы АБ «Хвоя» обещают «новый промышленный монумент» – но пока сохраняют интригу, не рассказывают, какой. В принципе роль скульптуры может исполнять что угодно. Это, к слову, тоже отличительный признак жанра: знаковая скульптура на территории промзоны, реорганизуемой в городское пространство, например в московском Станколите это чугунная колонна их тех, что завод отливал для восстановления Триумфальной арки Бове на Кутузовском проспекте.
Развитие зданий архитекторы сопровождают знаковыми вкраплениями – к примеру, первый из открытых для публики корпусов, катушечный цех, получил глубокий портал, украшенный «вдавленными» в стену лампами-кругами, сродни цитате из гробницы Эврисака во дворе РГБ. Или фрагменту какого-то техногенно-фантастического фильма. К тому же это еще один способ подачи света – не через дерево, а через металл.
В нескольких корпусах уже отрыты рестораны и разные другие необычные заведения, как например пивная мастерская, где можно сварить собственное пиво небольшими партиями. Видно, что раскруткой занимаются профессионалы. Но главным пространством нового кластера все же станет кабельный корпус, самый большой, тот самый, на кровлю которого провели конкурс. Внутри – исключительно просторное трехъярусное пространство, высота нижнего яруса 10,5 м, верхних – по 5 м. Брутально-роскошный интерьер не планируют обременять постоянными перегородками, задуманный здесь временный ритейл – выводок небольших магазинов – архитекторы разместили в группах контейнеров разной конфигурации, напоминающих объемный тетрис и компоновку ячеек Стройкома Моисея Гинзбурга. Гибкий подход позволит подстраивать помещения под арендаторов – объективно говоря, не вполне свободно, но все же наполнение подвижно.
Одновременно авторы образно подчеркивают непостоянность наполнения и инаковость прежней функции здания, что, признаем, довольно тонко – получается в некотором роде эстетизированный парафраз постсоветского рынка, сюжет сродни экспозиции института «Стрелка» на венецианской биеннале 2014 года. Ну и конечно, контейнеры – прямая принадлежность порта. Что при названии Порт Севкабель получается исключительно контекстуальным решением.
Большие окна корпуса в нижнем, десятиметровом ярусе архитекторы предлагают превратить в поворотные двери, чтобы можно было свободно проходить из бульвара на набережную. Сложно сказать, хорошо ли это в питерском климате да еще и у реки, но решение красивое. Свободное пространство посреди зала превращается площадь под крышей, этакий аналог подземного перехода, но только очень большого – не зря тут нарисована тусовка с гитарой.
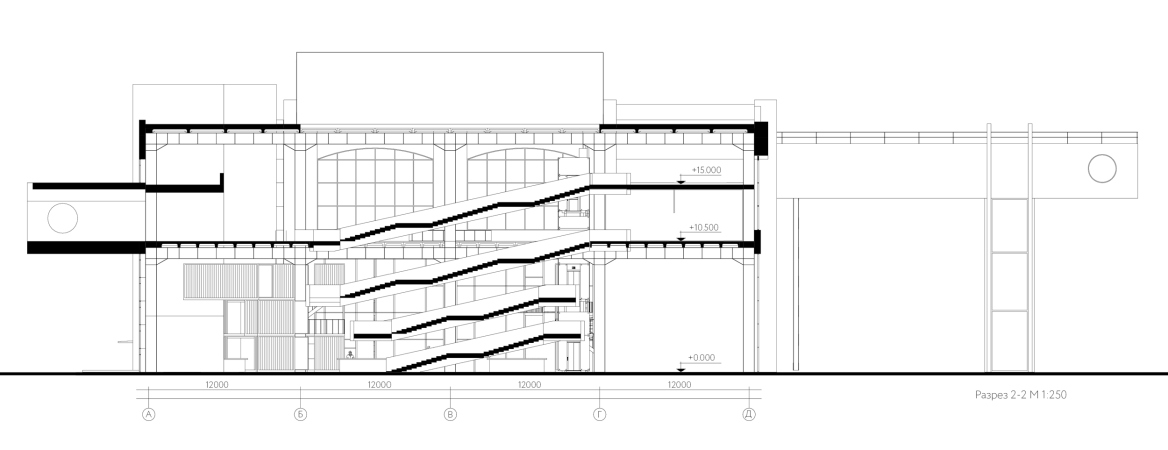
Но главный пространственный аттракцион – лестница, которую архитекторы встраивают в пространство корпуса-ангара. Крупная, бетонная, с пологими маршами, – в нижнем ярусе их поместилось целых три – гигантская объемная лента, как принято говорить, организует интерьер. Но на самом деле она его держит, работает аттактором и – сейчас будет опять про биеннале – напоминает все те лестницы в небо, которые раз в два года разные прогрессивные архитекторы выстраивают в Кордери Арсенала. Эффект сродни: крупные металлические колонны-двутавры, распахнутые окна-двери, огромная лестница, позволяющая наблюдать пространство сверху в разных ракурсах. Для ее освещения архитекторы «Хвои» сооружают на кровле корпуса большой стеклянный колпак – уже упомянутый нами в рассказе о проекте кровли DNK ag (кстати, кажется, два архбюро неплохо поладили в одном здании, что само по себе примечательно).
Во втором ярусе лестница, становясь чуть меньше – она так и развивается, наподобие зиккурата, постепенно уменьшается кверху и приводит посетителей к упомянутому выше мостику на ноге, через который когда-то передавали кабель на корабли. Торец навесного перехода планируется застеклить, оттуда будет открываться прекрасный, да еще и утепленный, а значит, комфортный, вид на реку. В «ногу», которая опирается на набережную, как мы помним, рядом с причалом и кассами, встроят металлическую лестницу – таким образом возникает маршрут: «транзитный многоуровневый проход от главного входа до причала», поясняют архитекторы.
Здесь возникает некая сумма разнообразных пространств и маршрутов с разным уровнем проникновения внутрь кластера и взаимодействия с рекой. Можно посидеть около городской улицы на террасе, можно, миновав массивные пилоны, попасть на бульвар и площадь, поучаствовать в фестивале, пуститься в изучение предложений резидентов; загорать или выпивать (вспоминаем барную стойку) на набережной, и наконец, отправиться на прогулку по воде. Один маршрут цепляется за другой, с появлением лестниц особенно заметно, что они, скажем так, «наматываются» друг на друга – круг бульвара и набережной на спираль центральной лестницы, да и сама лестница наматывает на себя пространство, как пресловутый кабель на катушку. В чем можно увидеть глубокое переживание темы и специфики территории: все же продукция завода со времени основания отвечала за связь и свет: Siemens & Halske запустили в Петербурге первые трамваи, осветили электричеством Невский проспект и Зимний дворец, – поэтому, видимо, теперь здесь так много разных светильников, даже разных способов осмысления света. Пространство с таким бэкграундом просто обязано быть светлым и связным. Пока получается.
