Описание предоставлено архитекторами
Сейчас приход в честь святителя Иоанна Златоуста в Петергофе размещается в маленьком храме, устроенном в грузовых контейнерах. При этом имеет большой участок земли, близ студенческого академического городка, построенного в 1970-е годы в духе постконструктивизма. Этот контекст задал определенный формат проекту.
Согласованный вариант. Храмовый комплекс в честь святителя Иоанна Златоуста г. Петергоф
© Мастерская «ПРОХРАМ»
Согласованный вариант. Храмовый комплекс в честь святителя Иоанна Златоуста г. Петергоф
© Мастерская «ПРОХРАМ»
Предварительный вариант. Храмовый комплекс в честь святителя Иоанна Златоуста г. Петергоф
© Мастерская «ПРОХРАМ»
Было необходимо запроектировать целый ряд сложных процессуальных взаимосвязей, обусловленных не только богослужебной, но и социальной, образовательной адаптивной функцией. Стояла задача учесть помещения, ориентированные на образовательный процесс и на работу с детьми, молодежью и студентами. Создать реабилитационный центр для работы с зависимыми, отдельным блоком запроектировать культурный центр с библиотекой и кафе, привлекательный для студентов и педагогов, а также в проекте учесть выставочные площадки для возможных экспозиций. Непосредственно храмовых пространств в проекте не более 15%.
Архитектура храмового комплекса отражает синтез нескольких традиций. Неорусский стиль с отсылкой к русскому модерну выбран для сакральных построек: основного храма, расположенном на северо-востоке участка малого храма и крестильного храма с монументальной башней-колокольней. Вторая традиция – советский конструктивизм. Обращение к нему обусловлено средой.
Согласованный вариант. Храмовый комплекс в честь святителя Иоанна Златоуста г. Петергоф
© Мастерская «ПРОХРАМ»
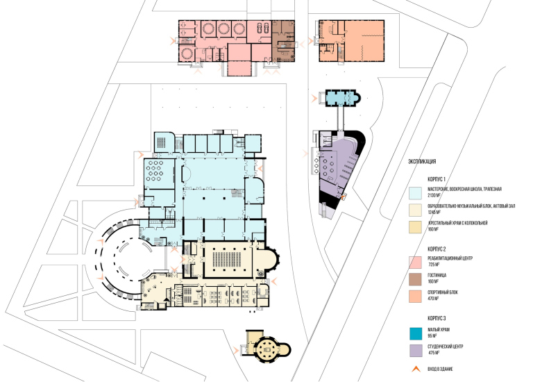
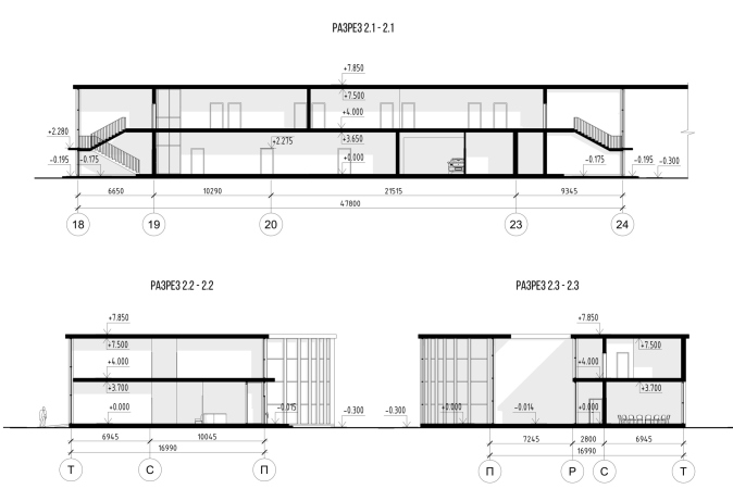
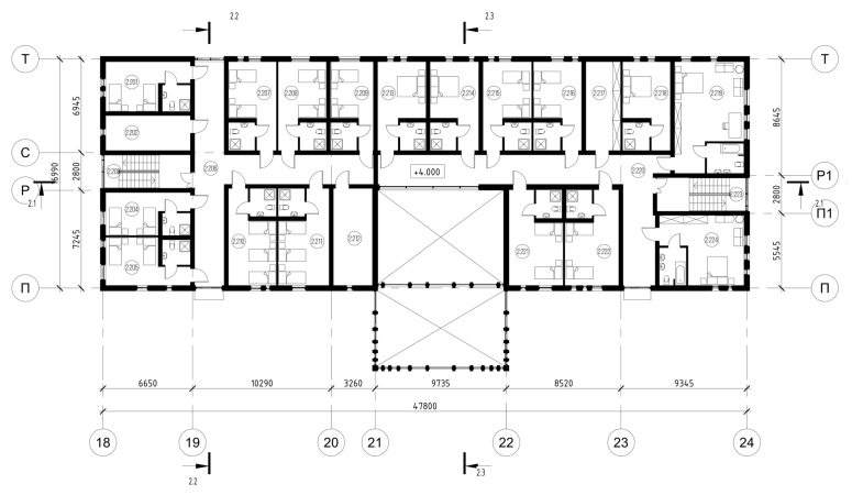
Комплекс включает три корпуса. Самый большой – приходской блок с храмом. Его первый этаж занимают учебные кабинеты, актовый зал и мастерские с выходом во внутренний дворик, объединенный с большим атриумом. На западе перед входом в актовый зал расположен открытый круглый внутренний двор, по первому и второму этажу обрамленный галереей. Скаты кровель данной тектонической конструкции устроены так, что дождевая вода, скатывающаяся с них, попадает внутрь круглого двора на специально устроенные клумбы.
Согласованный вариант. Храмовый комплекс в честь святителя Иоанна Златоуста г. Петергоф
© Мастерская «ПРОХРАМ»
Согласованный вариант. Храмовый комплекс в честь святителя Иоанна Златоуста г. Петергоф
© Мастерская «ПРОХРАМ»
Согласованный вариант. Храмовый комплекс в честь святителя Иоанна Златоуста г. Петергоф
© Мастерская «ПРОХРАМ»
Согласованный вариант. Храмовый комплекс в честь святителя Иоанна Златоуста г. Петергоф
© Мастерская «ПРОХРАМ»
Приход активно занимается социальной деятельностью, в связи с этим предусмотрена развитая система социального служения с возможностью проживания и прохождения адаптации людей, нуждающихся в социально-медицинской помощи.
Согласованный вариант. Храмовый комплекс в честь святителя Иоанна Златоуста г. Петергоф
© Мастерская «ПРОХРАМ»
Согласованный вариант. Храмовый комплекс в честь святителя Иоанна Златоуста г. Петергоф
© Мастерская «ПРОХРАМ»
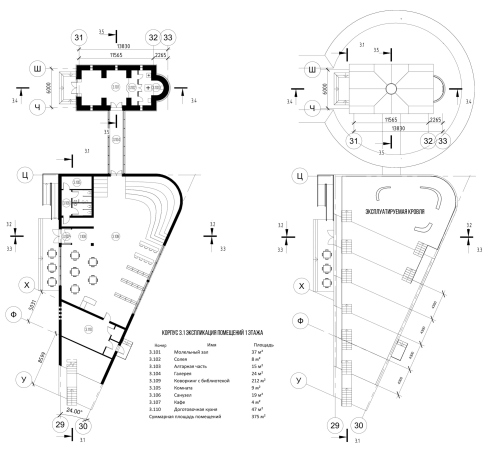
Также запроектирован небольшой храм, представляющий собой трехчастное пространство с крестовым сводом на подпружных арках по центру и скатной кровлей по сторонам. Фасады украшены каменными барельефами, керамическими вставками и полосой из цветных стеклянных блоков с подсветкой. С улицы малый храм обрамлен кругом, выполненным из кортена, представляющим собой интересный тектонический элемент, привлекающий внимание.
Согласованный вариант. Храмовый комплекс в честь святителя Иоанна Златоуста г. Петергоф
© Мастерская «ПРОХРАМ»
Храм соединен со студенческим центром, состоящим из библиотеки и кафе. Внутри с севера вдоль стены устроены длинные сиденья в виде амфитеатра, что позволяет посетителям работать, а также пользоваться библиотекой. Данный блок соединен со зданием храма длинным коридором, который может быть выполнен в виде инсталляции за счет интерьерных решений, что соединяет «храм знаний» (библиотеку) и общественное пространство южнее с храмом Божиим.
Согласованный вариант. Храмовый комплекс в честь святителя Иоанна Златоуста г. Петергоф
© Мастерская «ПРОХРАМ»
Согласованный вариант. Храмовый комплекс в честь святителя Иоанна Златоуста г. Петергоф
© Мастерская «ПРОХРАМ»
Первый вариант проекта храмового комплекса в честь Иоанна Златоуста получил одобрение в архитектурном сообществе, а также был награжден «Золотой капителью» на одноименном конкурсе.
После переработки проекта, у него появились некоторые атрибуты в виде трех барабанов с главками, на центральном нефе базилики. Было акцентировано внимание на колокольне, ставшей еще большей доминантой комплекса ввиду появления высокого шатра, также с главкой. Подобным образом также был незначительно переработан малый храм, расположенный на северо-востоке участка.
Согласованный вариант. Храмовый комплекс в честь святителя Иоанна Златоуста г. Петергоф
© Мастерская «ПРОХРАМ»
Однако данные изменения были решены в ключе отсылки к северному модерну, присущему началу XX века и неорусскому стилю храмостроения в духе Санкт-Петербурга. Остальные блоки комплекса остались практически без изменений.
Согласованный вариант. Храмовый комплекс в честь святителя Иоанна Златоуста г. Петергоф
© Мастерская «ПРОХРАМ»


