RSS
Согласованный вариант. Храмовый комплекс в честь святителя Иоанна Златоуста г. Петергоф
© Мастерская «ПРОХРАМ»

Храмовый комплекс в честь святителя Иоанна Златоуста г. Петергоф

информация:

  • статус
    в процессе реализации
  • даты
    11.2023 — 11.2024
  • region= area= address=Петергоф, ул. Ульяновская country_t=Россия city_t=Санкт-Петербург
    место
    Санкт-Петербург Петергоф, ул. Ульяновская
  • координаты
    59.878859, 29.824336
  • функция
    Культовый / Церковь
  • теги
    send.project
  • площадь застройки
    6 586 м2
  • общая площадь
    7 640 м2
  • строительный объем
    47 625 м3
Дмитрий Остроумов
Мастерская «Прохрам»

авторский коллектив

Автор: Дмитрий Остроумов
Архитекторы: Дмитрий Остроумов, Виктория Мокрозуб, Кристина Васина, Елена Остроумова, Анастасия Кошевая
3D-визуализатор: Кристина Васина, Евгений Белякович


партнеры, заказчики, смежники

Заказчик: Прот. Антоний Прилипко

награды:

    Проект получил награду «Золотая капитель» на одноименном конкурсе в Новосибирске в 2024 году.
Согласованный вариант. Храмовый комплекс в честь святителя Иоанна Златоуста г. Петергоф
© Мастерская «ПРОХРАМ»

Архи.ру об этом объекте:

24.12.2025

Юлия Тарабарина. Дмитрий Остроумов: «Говоря языком алхимии, мы участвуем в процессе «трансмутации Вселенной»

Крайне необычный и нетипичный получился разговор с Дмитрием Остроумовым. Почему? Хотя бы потому, что он не только архитектор, специализирующийся на строительстве православных храмов. И не только – а это редкая редкость – сторонник развития современной стилистики в ее, пока все еще крайне консервативной, сфере. Дмитрий Остроумов магистр богословия. Так что, помимо истории и специфики бюро, мы говорим о понятии храма, о каноне и традиции, о живом и о вечном, и даже о Русском Логосе.

Мастерская Прохрам имеет офисы в Москве и Петербурге и специализируется на храмовой архитектуре: церковных зданиях, комплексах, интерьерах и выставках. Работает комплексно, привлекая коллег смежных специальностей стеклодувов, мозаичистов, иконопи...   читать дальше

другие тексты Архи.ру:

Согласованный вариант. Храмовый комплекс в честь святителя Иоанна Златоуста г. Петергоф
© Мастерская «ПРОХРАМ»

история проекта:

Обратился настоятель в честь свят. Иоанна Златоуста г. Петергоф, Протоиерей Антоний Прилипко.

Сейчас приход в честь святителя Иоанна Златоуста в Петергофе существует в маленьком храме, устроенном в маленьких грузовых контейнерах, переоборудованных под храм. При этом имеет большой участок земли, близ студенческого академического городка., построенного в 70-е годы в духе архитектуры постконструктивизма, что и обусловило определенный контекст задающий формат проектированному храмовому комплексу. Необходимо было запроектировать целый ряд сложных процессуальных взаимосвязей, обусловленных не только богослужебной, но и социальной, образовательной адаптивной функцией. Стояла задача учесть в проекте помещения, ориентированные на образовательный процесс и на работу с детьми, молодежью и студентами. Создать реабилитационный центр для работы с зависимыми, отдельным блоком запроектировать культурный центр с библиотекой и кафе, привлекательный для студентов и педагогов, а также в проекте учесть выставочные площадки для возможных экспозиций. Тем самым непосредственно храмовых пространств в проекте не более 15%.

Первый вариант проекта храмового комплекса в честь Иоанна Златоуста получил одобрение в архитектурном сообществе, а также был награжден «Золотой капителью» на одноименном конкурсе. Однако после презентации, единоличным решением правящего митрополита было отправить проект на доработку ввиду того, что он не совсем соответствует стилистическим особенностям РПЦ. Было настоятельно рекомендовано включить в проектируемые здания луковичные главки, кокошники и привычные архитектурные цитаты, присущие классическим храмам РПЦ.

После переработки проекта, у него появились некоторые атрибуты в виде трех барабанов с главками, на центральном нефе базилики. Было акцентировано внимание на колокольне, ставшей еще большей доминантой комплекса ввиду появления высокого шатра, также с главкой. Подобным образом также был незначительно переработан малый храм, расположенный на северо-востоке участка. Однако данные изменения были решены в ключе отсылки к северному модерну, присущему началу 20 века и неорусскому стилю храмостроения в духе Санкт-Петербурга. Остальные блоки комплекса остались практически без изменений.

описание:

В обновленном варианте проекта храмовый комплекс выполнен в синтезе нескольких традиций. Во-первых, это неорусский стиль с отсылкой к русскому модерну, что отражено в сакральных постройках: основном храме, малом храме, расположенном на северо-востоке участка, и крестильном храме с монументальной башней-колокольней.
Вторая традиция, к которой отсылает архитектура, – это советский конструктивизм. Ее использование обусловлено средой, в которой предполагается строительство комплекса, построенной именно в традициях конструктивизма.

Комплекс представляет собой три корпуса. Самый большой корпус – это приходской блок с храмом. Первый этаж блока занят приходскими помещениями, в частности, на юге на первом этаже расположены учебные кабинеты, актовый зал, севернее которого расположены мастерские с выходом во внутренний дворик, объединенный с большим атриумом.

На западе перед входом в актовый зал и выше в храм расположен открытый круглый внутренний двор, обрамленный галереей по первому этажу и закрытым экспозиционным пространством, также в виде галереи, на втором уровне. Скаты кровель данной тектонической конструкции устроены так, что дождевая вода, скатывающаяся с них, попадает внутрь круглого двора на специально устроенные клумбы.

Приход занимается активной социальной деятельностью, в связи с этим предусмотрена развитая система социального служения с возможностью проживания и прохождения адаптации людей, нуждающихся в социально-медицинской работе.

Также запроектирован небольшой храм, представляющий собой трехчастное пространство с крестовым сводом на подпружных арках по центру и скатной кровлей по сторонам. Фасады украшены каменными барельефами, керамическими вставками и полосой из цветных стеклянных блоков с подсветкой. Храм соединен со студенческим центром, состоящим из библиотеки и кафе. Внутри с севера вдоль стены устроены длинные сиденья в виде амфитеатра, что позволяет посетителям работать, а также пользоваться библиотекой. Данный блок соединен созданием храма длинным коридором, который может быть выполнен в виде инсталляции за счет интерьерных решений, что соединяет «храм знаний» (библиотеку) и общественное пространство южнее с храмом Божиим (с самим малым храмом). С улицы данный храм обрамлен кругом, выполненным из картена, представляющим собой интересный тектонический элемент, привлекающий внимание.
Согласованный вариант. Храмовый комплекс в честь святителя Иоанна Златоуста г. Петергоф
© Мастерская «ПРОХРАМ»
Согласованный вариант. Храмовый комплекс в честь святителя Иоанна Златоуста г. Петергоф
© Мастерская «ПРОХРАМ»
Согласованный вариант. Храмовый комплекс в честь святителя Иоанна Златоуста г. Петергоф
© Мастерская «ПРОХРАМ»
Согласованный вариант. Храмовый комплекс в честь святителя Иоанна Златоуста г. Петергоф
© Мастерская «ПРОХРАМ»
Согласованный вариант. Храмовый комплекс в честь святителя Иоанна Златоуста г. Петергоф
© Мастерская «ПРОХРАМ»
Согласованный вариант. Храмовый комплекс в честь святителя Иоанна Златоуста г. Петергоф
© Мастерская «ПРОХРАМ»
Согласованный вариант. Храмовый комплекс в честь святителя Иоанна Златоуста г. Петергоф
© Мастерская «ПРОХРАМ»
Согласованный вариант. Храмовый комплекс в честь святителя Иоанна Златоуста г. Петергоф
© Мастерская «ПРОХРАМ»
Согласованный вариант. Храмовый комплекс в честь святителя Иоанна Златоуста г. Петергоф
© Мастерская «ПРОХРАМ»
Согласованный вариант. Храмовый комплекс в честь святителя Иоанна Златоуста г. Петергоф
© Мастерская «ПРОХРАМ»
Согласованный вариант. Храмовый комплекс в честь святителя Иоанна Златоуста г. Петергоф
© Мастерская «ПРОХРАМ»
Согласованный вариант. Храмовый комплекс в честь святителя Иоанна Златоуста г. Петергоф
© Мастерская «ПРОХРАМ»
Согласованный вариант. Храмовый комплекс в честь святителя Иоанна Златоуста г. Петергоф
© Мастерская «ПРОХРАМ»
Согласованный вариант. Храмовый комплекс в честь святителя Иоанна Златоуста г. Петергоф
© Мастерская «ПРОХРАМ»
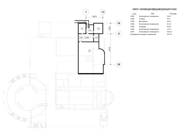
Согласованный вариант. Храмовый комплекс в честь святителя Иоанна Златоуста г. Петергоф. Корпус 1.План на отм.-3.950
© Мастерская «ПРОХРАМ»
Согласованный вариант. Храмовый комплекс в честь святителя Иоанна Златоуста г. Петергоф. Корпус 1. План на отм 0.000
© Мастерская «ПРОХРАМ»
Согласованный вариант. Храмовый комплекс в честь святителя Иоанна Златоуста г. Петергоф. Корпус 1. План на отм. +4.000
© Мастерская «ПРОХРАМ»
Согласованный вариант. Храмовый комплекс в честь святителя Иоанна Златоуста г. Петергоф. Корпус 1. Фасад западный
© Мастерская «ПРОХРАМ»
Согласованный вариант. Храмовый комплекс в честь святителя Иоанна Златоуста г. Петергоф. Корпус 1. Фасад южный
© Мастерская «ПРОХРАМ»
Согласованный вариант. Храмовый комплекс в честь святителя Иоанна Златоуста г. Петергоф. Корпус 1. Фасад восточный
© Мастерская «ПРОХРАМ»
Согласованный вариант. Храмовый комплекс в честь святителя Иоанна Златоуста г. Петергоф. Корпус 1. Фасад северный
© Мастерская «ПРОХРАМ»
Согласованный вариант. Храмовый комплекс в честь святителя Иоанна Златоуста г. Петергоф. Корпус 1. Храм. Фасад западный, фасад восточный
© Мастерская «ПРОХРАМ»
Согласованный вариант. Храмовый комплекс в честь святителя Иоанна Златоуста г. Петергоф. Корпус 1. Храм. Разрез 1.1
© Мастерская «ПРОХРАМ»
Согласованный вариант. Храмовый комплекс в честь святителя Иоанна Златоуста г. Петергоф. Корпус 1. Храм. Разрез 1.2
© Мастерская «ПРОХРАМ»
Согласованный вариант. Храмовый комплекс в честь святителя Иоанна Златоуста г. Петергоф. Корпус 1. Крестильный храм с колокольней
© Мастерская «ПРОХРАМ»
Согласованный вариант. Храмовый комплекс в честь святителя Иоанна Златоуста г. Петергоф. Корпус 1. Крестильный храм с колокольней. Фасады
© Мастерская «ПРОХРАМ»
Согласованный вариант. Храмовый комплекс в честь святителя Иоанна Златоуста г. Петергоф. Корпус 1. Крестильный храм с колокольней. Фасады
© Мастерская «ПРОХРАМ»
Согласованный вариант. Храмовый комплекс в честь святителя Иоанна Златоуста г. Петергоф. Корпус 1. Крестильный храм с колокольней. Разрезы
© Мастерская «ПРОХРАМ»
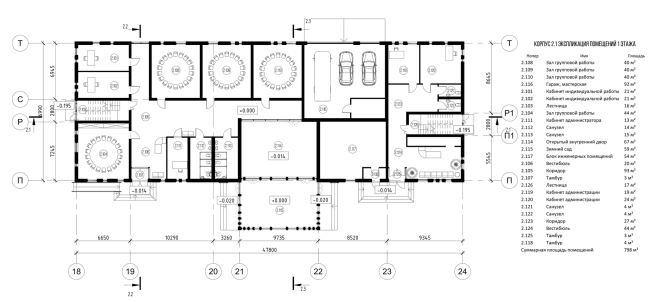
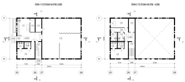
Согласованный вариант. Храмовый комплекс в честь святителя Иоанна Златоуста г. Петергоф. Корпус 2.1 Реабилитационный центр и гостиница. План на отм. 0.000
© Мастерская «ПРОХРАМ»
Согласованный вариант. Храмовый комплекс в честь святителя Иоанна Златоуста г. Петергоф. Корпус 2.1 Реабилитационный центр и гостиница. План на отм. +4.000.
© Мастерская «ПРОХРАМ»
Согласованный вариант. Храмовый комплекс в честь святителя Иоанна Златоуста г. Петергоф. Корпус 2.1 Реабилитационный центр и гостиница. Фасады
© Мастерская «ПРОХРАМ»
Согласованный вариант. Храмовый комплекс в честь святителя Иоанна Златоуста г. Петергоф. Корпус 2.1 Реабилитационный центр и гостиница. Разрезы
© Мастерская «ПРОХРАМ»
Согласованный вариант. Храмовый комплекс в честь святителя Иоанна Златоуста г. Петергоф. Корпус 2.2 Спортивный комплекс. Планы
© Мастерская «ПРОХРАМ»
Согласованный вариант. Храмовый комплекс в честь святителя Иоанна Златоуста г. Петергоф. Корпус 2.2 Спортивный комплекс. Фасады
© Мастерская «ПРОХРАМ»
Согласованный вариант. Храмовый комплекс в честь святителя Иоанна Златоуста г. Петергоф. Корпус 2.2 Спортивный комплекс. Разрезы
© Мастерская «ПРОХРАМ»
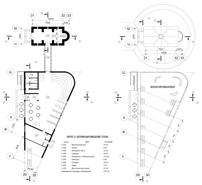
Согласованный вариант. Храмовый комплекс в честь святителя Иоанна Златоуста г. Петергоф. Корпус 3. Студенческий центр и малый храм. Планы
© Мастерская «ПРОХРАМ»
Согласованный вариант. Храмовый комплекс в честь святителя Иоанна Златоуста г. Петергоф. Корпус 3. Студенческий центр и малыйхрам. Фасады
© Мастерская «ПРОХРАМ»
Согласованный вариант. Храмовый комплекс в честь святителя Иоанна Златоуста г. Петергоф. Корпус 3. Студенческий центр и малый храм. Разрезы
© Мастерская «ПРОХРАМ»
Согласованный вариант. Храмовый комплекс в честь святителя Иоанна Златоуста г. Петергоф. Корпус 3. Храм малый. Фасад западный. Фасад восточный
© Мастерская «ПРОХРАМ»
Согласованный вариант. Храмовый комплекс в честь святителя Иоанна Златоуста г. Петергоф. Корпус 3. Храм малый. Разрезы
© Мастерская «ПРОХРАМ»
Согласованный вариант. Храмовый комплекс в честь святителя Иоанна Златоуста г. Петергоф.
© Мастерская «ПРОХРАМ»
Предварительный вариант. Храмовый комплекс в честь святителя Иоанна Златоуста г. Петергоф
© Мастерская «ПРОХРАМ»
Предварительный вариант. Храмовый комплекс в честь святителя Иоанна Златоуста г. Петергоф
© Мастерская «ПРОХРАМ»
Предварительный вариант. Храмовый комплекс в честь святителя Иоанна Златоуста г. Петергоф
© Мастерская «ПРОХРАМ»
Предварительный вариант. Храмовый комплекс в честь святителя Иоанна Златоуста г. Петергоф
© Мастерская «ПРОХРАМ»
Предварительный вариант. Храмовый комплекс в честь святителя Иоанна Златоуста г. Петергоф
© Мастерская «ПРОХРАМ»
Предварительный вариант. Храмовый комплекс в честь святителя Иоанна Златоуста г. Петергоф
© Мастерская «ПРОХРАМ»
Предварительный вариант. Храмовый комплекс в честь святителя Иоанна Златоуста г. Петергоф
© Мастерская «ПРОХРАМ»
Предварительный вариант. Храмовый комплекс в честь святителя Иоанна Златоуста г. Петергоф
© Мастерская «ПРОХРАМ»
Предварительный вариант. Храмовый комплекс в честь святителя Иоанна Златоуста г. Петергоф
© Мастерская «ПРОХРАМ»
Предварительный вариант. Храмовый комплекс в честь святителя Иоанна Златоуста г. Петергоф
© Мастерская «ПРОХРАМ»
Предварительный вариант. Храмовый комплекс в честь святителя Иоанна Златоуста г. Петергоф
© Мастерская «ПРОХРАМ»
Предварительный вариант. Храмовый комплекс в честь святителя Иоанна Златоуста г. Петергоф
© Мастерская «ПРОХРАМ»
Предварительный вариант. Храмовый комплекс в честь святителя Иоанна Златоуста г. Петергоф
© Мастерская «ПРОХРАМ»
Предварительный вариант. Храмовый комплекс в честь святителя Иоанна Златоуста г. Петергоф
© Мастерская «ПРОХРАМ»
Предварительный вариант. Храмовый комплекс в честь святителя Иоанна Златоуста г. Петергоф
© Мастерская «ПРОХРАМ»
Предварительный вариант. Храмовый комплекс в честь святителя Иоанна Златоуста г. Петергоф
© Мастерская «ПРОХРАМ»
Предварительный вариант. Храмовый комплекс в честь святителя Иоанна Златоуста г. Петергоф
© Мастерская «ПРОХРАМ»
Предварительный вариант. Храмовый комплекс в честь святителя Иоанна Златоуста г. Петергоф
© Мастерская «ПРОХРАМ»
Предварительный вариант. Храмовый комплекс в честь святителя Иоанна Златоуста г. Петергоф
© Мастерская «ПРОХРАМ»
Предварительный вариант. Храмовый комплекс в честь святителя Иоанна Златоуста г. Петергоф
© Мастерская «ПРОХРАМ»
Предварительный вариант. Храмовый комплекс в честь святителя Иоанна Златоуста г. Петергоф
© Мастерская «ПРОХРАМ»

Архитекторы – партнеры Архи.ру:

  • Марина Егорова
  • Вера Бутко
  • Евгений Новосадюк
  • Александра Кузьмина
  • Павел Андреев
  • Андрей Михайлов
  • Евгений Подгорнов
  • Ростислав Цайзер
  • Александр Асадов
  • Никита Явейн
  • Николай Переслегин
  • Всеволод Медведев
  • Полина Воеводина
  • Игорь Членов
  • Андрей Романов
  • Екатерина Кузнецова
  • Юлия Солдатенкова
  • Татьяна Зульхарнеева
  • Александр Котенков
  • Михаил Давыдов
  • Мария Ахременкова
  • Даниил Лоренц
  • Георгий Трофимов
  • Григориос Гавалидис
  • Валерий Каняшин
  • Константин Ходнев
  • Юлия Тряскина
  • Наталия Шилова
  • Евгений Зеленов
  • Александр Самарин
  • Зураб Басария
  • Борис Воскобойников
  • Дмитрий Ликин
  • Андрей Гнездилов
  • Григорий Мустафин
  • Владимир Плоткин
  • Сергей Скуратов
  • Ерлан Бекмухамедов
  • Игорь Шварцман
  • Наталья Сидорова
  • Николай Кикава
  • Сергей Труханов
  • Сергей Никешкин
  • Елена Пучкова
  • Юлий Борисов
  • Сергей Переслегин
  • Дмитрий Остроумов
  • Андрей Асадов
  • Дмитрий Буш
  • Олег Мединский
  • Антон Надточий
  • Станислав Белых
  • Михаил Канунников
  • Иван Кожин
  • Анастасия Абашева
  • Юлиана Княжевская
  • Энди Сноу
  • Алексей Орлов
  • Александр Скокан
  • Сергей Чобан
  • Виталий Лутц
  • Раис Баишев
  • Степан Липгарт
  • Дмитрий Сухов
  • Олег Шапиро
  • Владислав Андреев
  • Антон Яр-Скрябин
  • Сергей Кузнецов
  • Илья Машков
  • Василий Крапивин
  • Тимур Абдуллаев
  • Екатерина Абдуллаева
  • Маргарита Авдышева
  • Левон Айрапетов
  • Александр Аношкин
  • Алексей Афоничкин
  • Владислав Бек-Булатов
  • Антон Белов
  • Татьяна Бузулукова
  • Петр Васильев
  • Данило Вукосавлевич
  • Алина Георгиевская
  • Павел Гордеев
  • Илья Гринберг
  • Никита Демидов
  • Никита Дергунов
  • Наталья Жилкина
  • Алексей Зародов
  • Екатерина Зырина
  • Алексей Ильин
  • Дарья Ильина
  • Олег Карлсон
  • Алексей Кибкало
  • Денис Кувшинников
  • Анна Куликова
  • Алексей Курков
  • Данил Куров
  • Мария Кутай
  • Евгений Кутай
  • Иван Кычкин
  • Антон Ладыгин
  • Дмитрий Лапин
  • Борис Левянт
  • Илья Левянт
  • Катерина Левянт
  • Валерий Лукомский
  • Антон Лукомский
  • Екатерина Ляпунова
  • Иса Магомедов
  • Сергей Марков
  • Елена Мерцалова
  • Николай Миловидов
  • Станислав Михаловский
  • Сергей Мичурин
  • Олеся Могилевская
  • Филипп Никандров
  • Мария Николаева
  • Дмитрий Овчаров
  • Сергей Пергаев
  • Виктор Перов
  • Алексей Полищук
  • Роман Пономарёв
  • Валерия Преображенская
  • Виктория Раубо
  • Василий Рыбаков
  • Николай Рыбаков
  • Мария Салех
  • Александр Стариков
  • Илья Уткин
  • Елисей Чакан
  • Бориша Чорович
  • Олег Шурыгин
  • Дмитрий Шурыгин

Проект из каталога (случайный выбор)

Гольф и яхт-клуб «Пестово»
Дмитрий Петров, 2005 – 2006
Гольф и яхт-клуб «Пестово»

Постройки и проекты (новые записи):

  • Деловое пространство «ПЛЭЙН»
  • Porta
  • Детский сад на 200 мест в Жилино-1
  • Архитектурная концепция кластера Ломоносов-2
  • Клубный дом в 1-м Казачьем переулке
  • Частный дом в Ленинградской области
  • IT-кластер TravelLine в Йошкар-Оле
  • Гостиничный комплекс Cosmos Selection Derbent 5
  • Офис компании АльфаСтрахование

Новости российской архитектуры:

Курган памяти
08.05.2026

Курган памяти

Никита Явейн
Баня по-царски
07.05.2026

Баня по-царски

Ольга Смоленская
«Заря» над волнами
07.05.2026

«Заря» над волнами

Дарья Виноградова
Белый конгломерат
07.05.2026

Белый конгломерат

Александр Томашенко, Андрей Горелов, Василий Сошников, Иван Колманок, Николай Фугаров, Владимир Плоткин
Между фантазией и реальностью: ПАСП & РОСТ
06.05.2026

Между фантазией и реальностью: ПАСП & РОСТ

Андрей Тютерев, Владимир Плоткин