Описание предоставлено архитекторами
Строительство храма приурочено к 800-летию крещения карелов. Заказчик попросил запроектировать храм, отражающий типологию традиционной деревянной архитектуры русского севера, но в то же время решенный в современном ключе с использованием каркасной системы и вентфасада.
Храм в Карелии
© Мастерская «ПРОХРАМ»
Храм в Карелии
© Мастерская «ПРОХРАМ»
Участок расположен близ поселка Куркиёки на Ладожских шхерах. Предполагается, что его территория станет подворьем монастыря с пасекой и организованной жизнью небольшого количества насельников. Доступ будет организован как с воды для приезжающих на прогулочных катерах, так и с материковой части. Для храма выбрана самая высокая точка, на которой расположена выступающая из земли скала.
Храм в Карелии
© Мастерская «ПРОХРАМ»
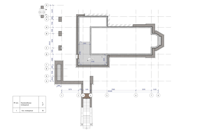
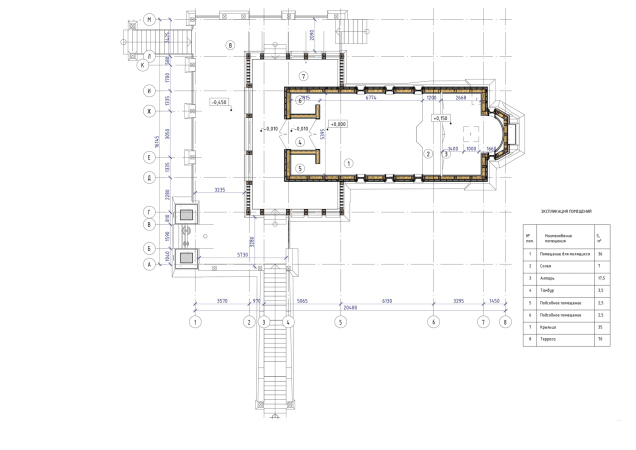
Аскетичная архитектура храма сочетает черты древних церквей Русского Севера и современных каркасных зданий. За счет высокого цоколя, облицованного грубым камнем, храм вырастает из скалы, тем самым становясь продолжением ландшафта. Перепад высот позволяет в цокольном этаже устроить трапезную, в интерьер которой интегрирована скала.
Храм в Карелии
© Мастерская «ПРОХРАМ»
Храм в Карелии
© Мастерская «ПРОХРАМ»
Храм в Карелии
© Мастерская «ПРОХРАМ»
Здание будет строиться по технологии каркасного дома на бетонном основании. В качестве утеплителя используется эковата, широко применяемая в этом районе. В отделке фасада использованы каменные декоративные элементы, а также деревянный планкен по типу вентфасада.


