Жилой комплекс в 8-м жилом массиве
© Electric Architects
Район Нор-Норк, где строится, точнее, реконструируется детсад, находится к северо-востоку и востоку от центра Еревана. Он сформировался в 1960 – 1980-е согласно схеме, зафиксированной генпланом 1971 года. Его части, называемые «массивами» и различающиеся номерами – 1-й, 2-й и так далее, застроены по микрорайонному принципу типовыми жилыми домами и сопутствующей инфраструктурой.
Жилой комплекс в 8-м жилом массиве
© Electric Architects
К объектам этой инфраструктуры принадлежит двухэтажное типовое здание детского сада в одном из дворов микрорайона на Минской улице (8-й жилой массив). В свое время городские власти выписали сооружение из-за его аварийного состояния из собственного фонда, и с тех пор оно пустовало. В наши дни его приобрела инженерная компания, для которой этот проект стал первым опытом в девелопменте.
Жилой комплекс в 8-м жилом массиве
© Electric Architects
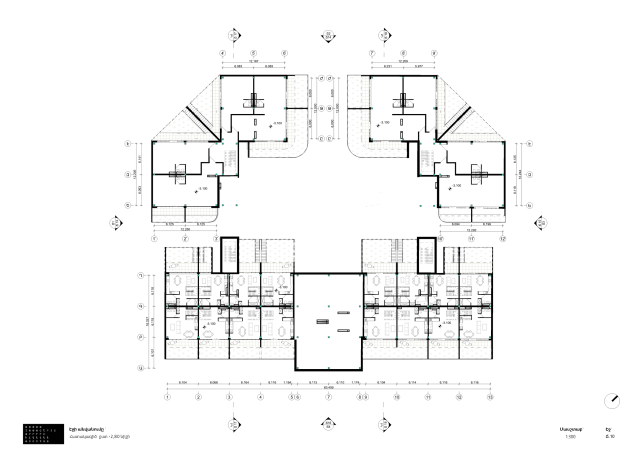
Исходя из экономических соображений, инвестор решил сохранить здание, превратив в многоквартирный дом, что стало для Electric Architects своего рода вызовом. Их поиски оптимального сценария адаптации к жилой функции здания, на первый взгляд неподходящего для такой цели, привели к вполне логичным решениям. Развитие в горизонтальном направлении было практически невозможным: ему препятствовало ограниченная площадь участка и нецелесообразность размещения жилых помещений по такой схеме. Поэтому архитекторы расширили площади сооружения за счет увеличения его высоты, не выходя за границы существующего участка.
Оставаясь в рамках параметров АПЗ (аналога российского ГПЗУ), согласно которому высота нового здания не должна была превышать 16 метров, архитекторам удалось увеличить высоту здания с двух до четырех этажей, также они реорганизовали цокольный (подвальный) уровень. В результате у здания фактически целых 6 этажей, хотя де-юре добавлено только две надземных. Это стало возможным благодаря тонкой работе с нормативами. Так, последний этаж оформлен в качестве антресольного, который, согласно этим нормативам, не считается самостоятельным этажом. Аналогично архитекторы использовали цоколь: его новые жилые части выступают в качестве нижнего яруса в квартирах-дуплексах, где есть внутренние лестницы между первым и цокольным этажами.
Жилой комплекс в 8-м жилом массиве
© Electric Architects
«Официальное» количество этажей – четыре – дало возможность сэкономить ценную площадь здания в пользу размещения жилых помещений. В частности, удалось избежать реализации лифтов и дополнительных незадымляемых лестничных клеток, а также подземной автостоянки. Устройство антресольного уровня позволило не продолжать существующие лестничные клетки еще на этаж. Вместо подземного гаража вокруг здания в границах участка организована наземная парковка на 80 машиномест. Так как подземный паркинг в 4-этажном доме по нормативам не требовался, получилось полноценно использовать подвальный этаж (цоколь) как жилые и коммерческие пространства. Все эти решения в итоге повлияли на сравнительно низкую рыночную стоимость квартир и определили таким образом успех инвестиционного проекта.
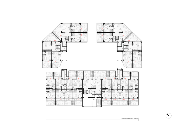
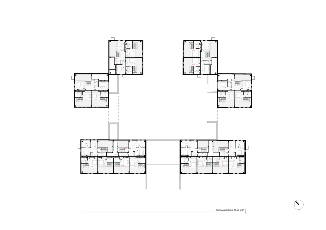
Планировки
Здание детского сада изначально состояло из шести блоков, возведенных под углом в 45 градусов к оси север-юг. Такое расположение относительно сторон света позволило всем будущим квартирам получить достаточно часов естественного освещения, благодаря чему во всех блоках удалось разместить максимальное количество – 107 – квартир (однокомнатных, дуплексов, с антресольным уровнем и т. д.) и студий.
Реконструкция получилось довольно деликатной: демонтировав только имевшиеся перегородки, Electric Architects расположили квартиры строго в границах существующего контура здания, минимально задействуя коридорную систему в общей планировке этажей. В нее удачно интегрированы существующие четыре лестницы, благодаря чему для функционирования всего комплекса потребовалось добавить только одну лестничную клетку – у главного входа в южном блоке. Она соединяет этажи с первого по четвертый, а первоначальные лестницы также обеспечивают связь коммерческих зон цоколя с надземными этажами. Добавленный третий этаж повторяет планировку предыдущего, второго, этажа: они типовые. Последний, четвёртый, этаж имеет также и антресольный ярус.
Зонирование подвального этажа учитывает расположение блоков по сторонам света. Так, северные и северо-западные блоки подвального этажа вмещают коммерческие помещения, а южные и юго-восточные – нижние уровни квартир-дуплексов.
Полноценное функционирование подвального этажа удалось обеспечить благородя устройству рвов по внешнему и внутреннему периметру здания: солнечный свет проникает во всех помещения как с уличной стороны, так и из внутреннего двора. Рвы предполагается озеленить для создания визуального комфорта и из экологических соображений.
Фасады
Несмотря на кажущуюся смелость – учитывая контекст – оформления фасадов, такое решение также продиктовано экономическими соображениями. Изначально предполагалось облицевать комплекс туфовыми панелями по технологии вентилируемого фасада. Однако средств на облицовку всего здания не хватало, и архитекторы решили покрыть туфом только уличную часть фасада, а внутренний двор оштукатурить и покрасить в белый цвет. Так создан эффектный контраст городского и приватного, «домашнего» лица дома, его внешний облик подчеркнут, а двор кажется более светлым. Вынужденный изначально прием в итоге оказался выигрышным: он осовременил образ здания, а также позволил разделить функциональные зоны, выделив цветовым решением сад во дворе.
В итоге получилось уместное, тактичное преображение заброшенного здания среди однотонной бледно-желто-розовой застройки. Двускатные кровли жилого комплекса стали необходимым акцентом на фоне 9-этажных панельных домов с их плоскими крышами. Стремление Electric Architects оставаться с окружением в единой материальной гамме отразилась в применении родственного облицовочного материала: панели соседних 9-этажек (квадратных в плане) также покрыты туфом оранжевых оттенков.
* * *
Адаптация под новые нужды дворовых пространств, включая объекты социальной инфраструктуры, в постсоветское время составляет отдельную тему. Проект Electric Architects – пример комплексного подхода к этой проблематике, что делает его если не уникальным для постсоветского ереванского контекста, то одним из весьма немногих. Здесь удачный тандем инвестора и архитектора дал в результате необычное решение для распространенной проблемы и более чем актуальный проект доступного жилья.
Здание детского сада как островок располагалось в «раме» из панельных 9-этажек. Продолжая эту градостроительную логику, архитекторы подошли к сооружению как к «оазису» посреди двора, хотя неизбежно поменялись функция и сама суть здания: из общественного, открытого сооружения оно стало приватным, закрытым. «Оазисом» по сути стал внутренний двор жилого комплекса с садом, схожим с самой маленькой куклой внутри матрешки: теперь это заключительный парцель в системе советского/постсоветского микрорайона.
Следует отметить, что любовь к наследию и внимание к контексту характерны для Electric Architects. В их портфолио немало деликатных реконструкций. В частности, хочется отметить ресторан ggh на улице Руставели в Гюмри, где, кроме общих реставрационных работ, есть изящная отсылка к контексту: люстры выполнены в форме знаменитого «Железного фонтана» – одного из символов города.
