Апартаменты Tatlin, 2021
Фотография © Дмитрий Чебаненко / предоставлена пресс-службой Москомархитектуры
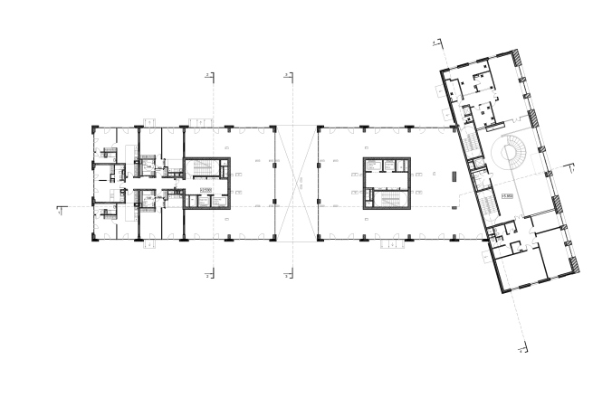
Для здания был отведен участок советской АТС, одной из трех построенных в Москве по типовому проекту инженера В.В. Патека в конце 1920-х годов. Здание не имело статуса ОКН и по закону могло быть снесено с сохранением облика фасада, выходящего на Бакунинскую. Но авторы проекта предложили компромиссное решение: сохранить не только фасад, но и всю фасадную часть, несколько метров в глубину от красной линии улицы. А остаток АТС, параллелепипед, вытянутый в глубину участка, снести и заменить на похожий объем, надстроив его сверху современным зданием, подчеркнув различие объемов в память об историческом здании. В общем-то достаточно ответственное решение, не чуждое, с другой стороны, смелой игры с формой.
Апартаменты Tatlin. Первоначальный вариант проекта
© Architects of Invention
Однако архсовет Москвы в 2016 году, в целом одобрив идею, не согласился с ее компромиссностью и настоял на сохранении здания конструктивистской АТС целиком, несмотря на отсутствие охранного статуса. В таком виде, с условием сохранения всей АТС, проект был утвержден. Между тем чуть позже внутренний объем все же снесли, что вызвало достаточно бурные, но в тот момент уже бесполезные протесты градозащитников. История описана нами здесь и представляет собой достаточно шаблонный сюжет, хоть пьесу пиши, да нет Мольера.
Здание Телеграфа на улице Бакунинская № 5. Существующее положение
Предоставлено Architects of Invention
Здание Телеграфа на улице Бакунинская № 5. Историческая фотография
Предоставлено Architects of Invention
Так или иначе, а здание построено и выглядит достаточно эффектно. В разномастный строй Бакунинской улицы оно внесло акцент, яркий во всех отношениях.
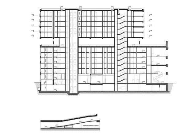
Восстановлена историческая красно-серая покраска фасада, часть здания за ним, как и планировалось, отреставрирована, внутри разместился фитнес и ресторан. Объем, снесенный во дворе, заменен на похожий. Под ним нашлось место для одноярусной подземной парковки (собственно, она и стала одной из причин сноса). Над ним расположился овальный стеклянный этаж с всесезонным зимним садом для жителей, включающим и детскую площадку, выше – новый объем-«балка».
Реконструкция здания под гостиничный комплекс на Бакунинской улице. Согласованный вариант проекта, 2016. В сопоставлении прочитывается различие проектного и реализованного решения
Проектная организация: «Архитектурное бюро АИ», заказчик: «Бакунинская»
Фасад АТС перестал быть «стертым» и малозаметным в общем строе улицы и занял подобающее ему место. Восстановление красного цвета лопаток, похожих на праздничные транспаранты, сделало здание АТС 1927-1928 годов постройки более заметным и как будто несколько менее классичным. Возможно, теперь стала очевиднее правота Сергея Чобана, который отнес здание к ленинградскому направлению конструктивизма – раньше, в бледно-розовом тоне, оно казалось скорее тяготеющим к постконструктивизму 1930-х. Теперь же, с «красными транспарантами» на фасаде, сильнее ощущается «пролетарская классика».
Не хватает только надписей: вместо «телефона» был обещан Tatlin, но пока нет и его, отчего аттики кажутся несколько необоснованными. Впрочем, заголовок комплекса, может быть, еще появится на своем месте и тогда уже будет путать начинающих историков архитектуры, заставляя задуматься, при чем же тут Владимир Евграфович Татлин. Самые дотошные, надо думать, быстро выяснят, что, строго говоря, и ни при чем.
Верхний ярус – пример смелого вторжения новой архитектуры в трехмерное пространство здания конца 1920-х. Скос его торца интерпретирует угол, заданный в плане предшествующего здания: «ножка» Т-образного плана была поставлена под углом к уличной части здания, эта особенность и сейчас сохранена в плане нового объема.
Здание Телеграфа на улице Бакунинская № 5. Исходное состояние
Предоставлено Architects of Invention
Но если историческое здание, расправив вдоль улицы симметричные крылья, лишь «помахивало хвостиком» в глубине участка, то остроугольный торец Tatlin Apartments в прямом и переносном смысле «заостряет» малозаметную особенность объемного построения, представляя ее городу во всей красе, делая динамику поворота частью пластического решения. Здание как будто складывается-раскладывается на глазах, что надо признать любимой темой как авангарда, так и их позднейших последователей деконструктивистов.
Надо отметить еще несколько особенностей. Новый объем отлично перекликается с окружением, в котором среди особняков периода эклектики уверенной поступью заявляют о себе крупные постройки послевоенного модернизма. Металлической фактурой и остроугольной формой он напоминает о промышленном прошлом района Бауманской, а может быть, даже о соседстве Технического университета МГТУ. Как и о промышленной функции бывшей АТС как таковой.
В то же время если рассматривать верхний объем безотносительно низа, он кажется похожим на приморский санаторий – форма смелая и чистая, но узнаваемая. Оригинальность возникает именно в сопоставлении с «краснознаменной базой» здания АТС, новая форма нуждается в старой как в обосновании своей оригинальности.
Причем нижний исторический фасад кажется по сравнению с верхним несколько неуверенным, как из-за простой штукатурной отделки, так и благодаря центричной не-авангардной композиции. Он этакий недодворец. Металл и острые грани подчеркивают как большую современность и технологичность нового объема, так и некоторую известную дешевизну нашего авангарда 1920-х. Тут надо согласиться с Сергеем Чобаном: надстройка выявила не самые блестящие качества старой постройки, хотя проявила их честно.
Со своей стороны замечу, что, вероятно, если бы речь шла не о проекте АТС 1920-х повторного применения, а о шедевре авангарда, пластически более смелом и сильном, то настроить его помешал бы не только охранный статус (который в таком, рассматриваемом нами гипотетически, случае, все же должен был бы быть), но и сама форма. Очень эффектный, яркий, уникальный авангард никто и не посмел бы надстроить, то есть может быть и посмел, но не сложилось бы с точки зрения формы, не пошло бы и не склеилось.
А тут верхний ярус как будто «подтягивает» нижний под звание «Татлина».
Так что перед нами своего рода эксперимент по «возгонке» авангардных свойств исторической постройки, в которой их, в сущности, не так уж много. Как таковой – он может быть понят как характерный для нашего времени. Особенно в свете известного лозунга «Москва – город будущего». Вполне подойдет.
Еще подробнее о проекте здесь.


