Новое здание призвано не только создать оптимальные условия для сохранения наследия на площади в 3000 м², но и сформировать архитектурный символ, новую точку притяжения для культурного туризма в Волховском районе. В историческом здании «Дома Шварца» должен разместиться художественный музей, продолжив тем самым культурные традиции, заложенные меценатом А.Р. Томиловым в XIX веке.
Проект SLOI Architects предлагает образную игру с темой деревянного зодчества. Образ трехъярусного «ковчега» с его цельными фасадами из бруса и живописными лестницами-сенями – это не то, чтобы стилизация, а скорее поиск аутентичного архитектурного языка, который говорит о преемственности, но при этом отвечает требованиям современности.
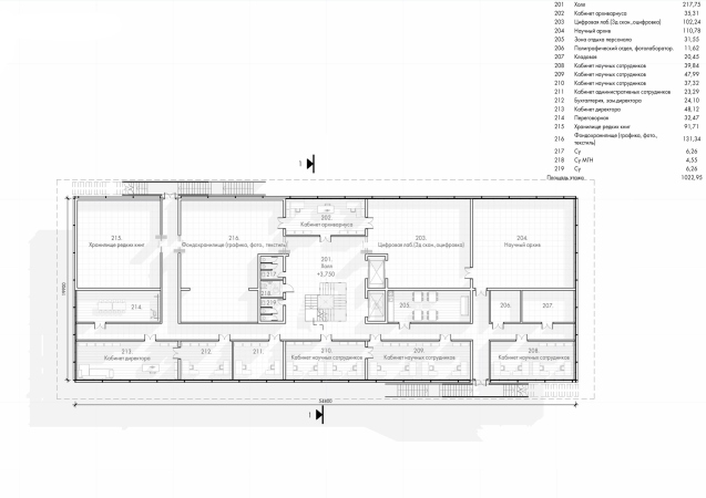
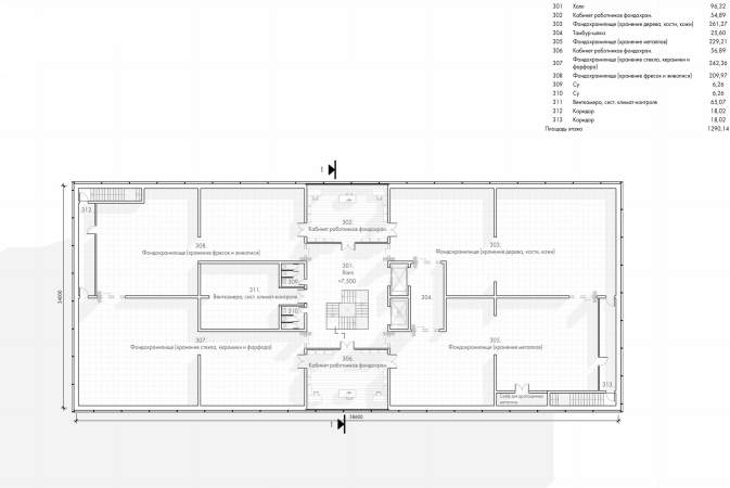
Проектом предусмотрено трехэтажное здание, где помимо фондохранилищ (1010 м²), размещены экспозиционный зал (200 м²), зона приема коллекций, реставрационные мастерские, научный архив и административные помещения.
Описание предоставлено архитекторами
Образ фондохранилища – деревянный ковчег, одиноко расположившийся посреди открытого пространства поля. «Ковчег» состоит из трех ярусов, постепенно увеличивающихся в размере. Чтобы здание привлекало к себе внимание и воспринималось со всех ракурсов как знаковый объект, все фасады решены цельно. Только на последнем этаже запроектирована скатная кровля с вертикальной лентой фонаря, что создает живописный силуэт и устремление вверх.
Фасады выполнены из бруса пятигранного профиля, который соединяется разными способами в зависимости от функционального назначения пространств за ними. Вдоль длинных сторон, по диагонали друг от друга, запроектированы лестницы, которые выполняют роль как эвакуационных путей, так и выставочных пространств. Они подчеркивают протяженный ярусный характер здания. Образ вынесенной лестницы созвучен историческим образцам деревянного зодчества, где разнообразные многоуровневые крыльца – сени – формировали облик изб, хором и церквей.
Форма в этом предложении играет более важную роль, чем материал. Это значит, что предложенное решение по фасадам – одно из потенциально возможных. Важно, чтобы это был деревянный фасад.
Проект стал для бюро возможностью погрузиться в деревянное зодчество России. Для градостроительной политики это может являться одной из важных задач в отношении поиска аутентичности, архитектурного языка, который позволит говорить не только о своеобразии градостроительного ландшафта, но и о преемственности и связи с культурным наследием, принадлежащим Ленинградской области.
Этот процесс диалога с историей и культурой не противоречит задачам, которые ставит перед собой современная архитектура – технологичность, доступность архитектурного языка разным поколениям, устойчивость.

 
            
            
         
                            
 
                             
                                         
                                         
                                         
                                         
                                         
                                         
                                         
                                         
                                         
                                         
                                                                        
                                                                     
                                                                        
                                                                     
                                                                        
                                                                     
                                                                        
                                                                     
                                                                        
                                                                     
                                                                        
                                                                     
                                                                        
                                                                     
                                                                        
                                                                     
                                                                        
                                                                     
                                                                        
                                                                     
                                                                        
                                                                     
                                                                        
                                                                     
                                                                        
                                                                     
                                                                        
                                                                     
                                                                        
                                                                     
                                                                        
                                                                     
                                                                        
                                                                     
                                                                        
                                                                     
                                                                        
                                                                     
                                                                        
                                                                     
                                                                        
                                                                     
                                                                        
                                                                     
                                                                        
                                                                     
                                                                        
                                                                     
                                                                        
                                                                     
                                                                        
                                                                     
                                                                        
                                                                     
                                                                        
                                                                     
                                                                        
                                                                     
                                                                        
                                                                     
                                                                        
                                                                     
                                                                        
                                                                     
                                                                        
                                                                     
                                                                        
                                                                     
                                                                        
                                                                     
                                                                        
                                                                     
                                                                        
                                                                     
                                                                        
                                                                     
                                                                        
                                                                     
                                                                        
                                                                     
                                                                        
                                                                     
                                                                        
                                                                     
                                                                        
                                                                     
                                                                        
                                                                     
                                                                        
                                                                     
                                                                        
                                                                     
                                                                        
                                                                     
                                                                        
                                                                     
                                                                        
                                                                     
                                                                        
                                                                     
                                                                        
                                                                     
                                                                        
                                                                     
                                                                        
                                                                     
                                                                        
                                                                     
                                                                        
                                                                     
                                                                        
                                                                     
                                                                        
                                                                     
                                                                        
                                                                     
                                                                        
                                                                     
                                                                        
                                                                     
                                                                        
                                                                     
                                                                        
                                                                     
                                                                        
                                                                     
                                                                        
                                                                     
                                                                        
                                                                     
                                                                        
                                                                     
                                                                        
                                                                     
                                                                        
                                                                     
                                                                        
                                                                     
                                                                        
                                                                     
                                                                        
                                                                     
                                                                        
                                                                     
                                        