Посольство Эстонии в Латвии. Главный фасад
Фотография © Tõnu Tunnel / предоставлена Архип
Авторам удалось найти баланс между интересами различных сторон. Ведомство по контролю за памятниками архитектуры и искусства Латвии настаивало на сохранении советского фасада, считая его ценным примером позднего модернизма, тогда как эстонский МИД стремился получить современное и выразительное здание. Мнения членов Рижского исторического совета менялись от заседания к заседанию. Ранее представленные проекты перестройки от таких архитекторов, как Зайга Гайле и Ингурдс Лаздиньш, согласование не прошли. Идея от бюро Архип (United Riga Architects) оказалась более успешной. Как отметил глава исторического совета Андрис Кронбергс, оценивая работу Евгения Леонова и его коллег: «Это было невозможно, абсолютно невозможно, но вы это сделали».
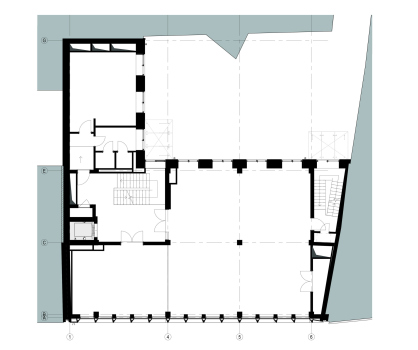
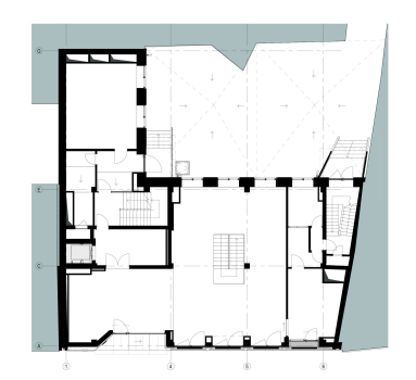
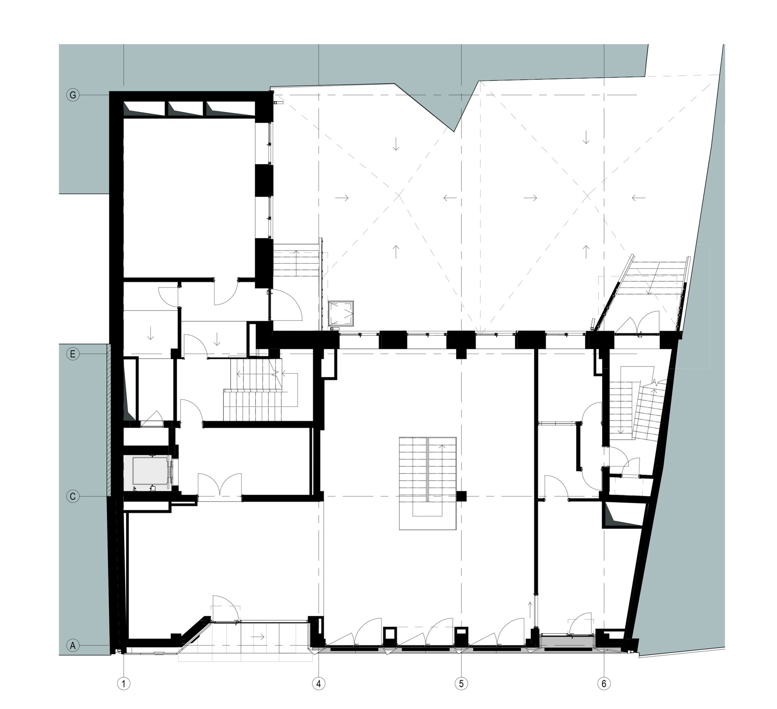
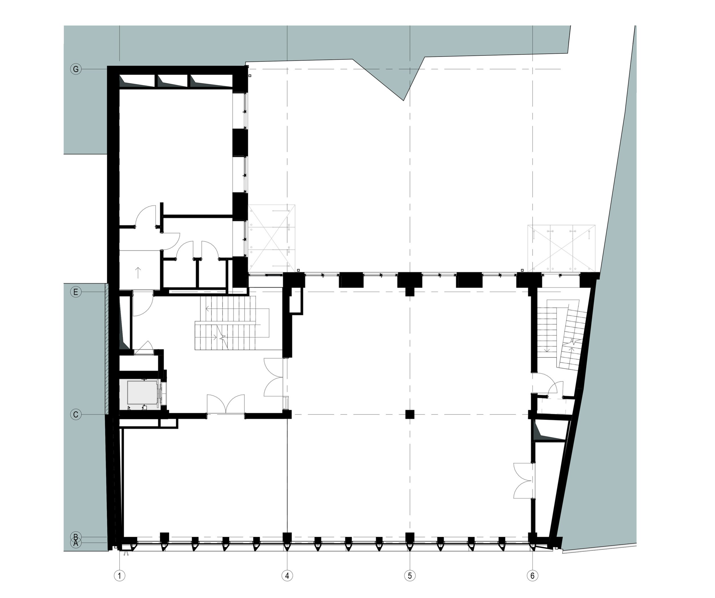
Здание включает посольство, консульство, выставочные пространства e-Estonia и официальную резиденцию посла с квартирой.
Архитектурной особенностью проекта является стеклянный фасад с большими окнами-витринами. Общим геометрическим рисунком фасад повторяет своего советского предшественника, но совершенно в ином, современном ключе. Окна обрамлены сильно выступающими карнизами и ламелями сложной трехмерной формы, вырезанными из цельных каменных блоков, что стало первым примером трехмерной резки массивов камня в фасадной отделке в странах Балтии. Все ламели различаются по профилю и установлены таким образом, что при движении вдоль фасада создается впечатление набегающей волны.
Камень для облицовки выбран не случайно. Это Каарма – серый известняк с голубоватым оттенком, который считается национальным символом Эстонии, и это подчеркивает статус и функцию объекта.
Посольство Эстонии в Латвии. Главный фасад
Фотография © Tõnu Tunnel / предоставлена Архип
Стекла у здания тоже непростые: они украшены архитектурным орнаментом в виде черного градиента, выполненного в технике halftone.
Посольство Эстонии в Латвии. Главный фасад
Фотография © Tõnu Tunnel / предоставлена Архип
Планировка здания проста и функциональна: на цокольном и первом этажах размещены выставочные залы e-Estonia и консульский отдел, второй этаж занимает офисная зона и трансформируемое пространство для проведения мероприятий, а верхние этажи отведены под официальную резиденцию посла и его служебную квартиру с террасой.
Архитектурный образ строится на контрасте стекла и камня. Простота геометрии компенсируется глубокой проработкой деталей. Цветовая гамма нейтральна – серый и черный в сочетании с прозрачным стеклом, что отражает современный деловой характер объекта и не вступает в конфликт с окружением.
Здание деликатно вписано в историческую застройку, высота и рисунок фасада соответствуют масштабу улицы, в вечернее время архитектонику подчеркивает дизайнерская подсветка.
Посольство Эстонии в Риге – пример того, как можно переосмыслить модернизм средствами современной архитектуры. Здание, с одной стороны, представляет собой образец международного офисного стиля, а с другой – воплощает национальную идентичность Эстонии. Архитекторам удалось согласовать – причем дважды! – проект со всеми инстанциями и при этом сохранить до конца авторскую концепцию.
