Трубная металлургическая компания ТМК, основанная в России в 2001 году, специализируется прежде всего на производстве стальных труб для нефтегазовой промышленности. Она входит в тройку мировых лидеров своей отрасли, объединяет около 20 компаний на двух континентах, имеет офис в Хьюстоне, поставляет продукцию в 80 стран.
Примеры труб, выпускаемых ТМК, на выставке в вестибюле здания в Сколково. Научно-технический центр ТМК в Сколково
Фотография: Ю.Тарабарина, Архи.ру
Новое представительское здание ТМК, объединенное с ее исследовательскими стендами и лабораториями, расположено недалеко от Минского шоссе, в северной части научно-исследовательского района Сколково D4, территория которого пока еще мало освоена. Через дорогу от ТМК построен исследовательский центр компании «Сибур Инновации», которая занимается полимерами, а на соседнем участке строится здание международной роботостроительной компании FANUC. С противоположной стороны, на въезде, начала функционировать парковка; в остальном территория D4 пока пустует, так что ТМК – один из ее первых «поселенцев».
Борис Левянт, руководитель ABD architects
«Ключевая особенность здания – его многофункциональность. Оно объединяет цех с крупногабаритным оборудованием для испытаний продукции металлопроката, исследовательские лаборатории, офисную и представительскую части, конференц-зал. Согласовывать и проходить экспертизу пришлось многократно. В целом мы довольны результатом, на мой взгляд, проект достаточно успешный».
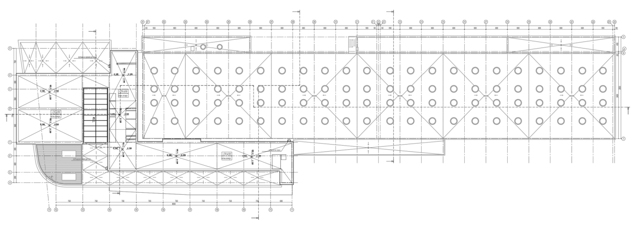
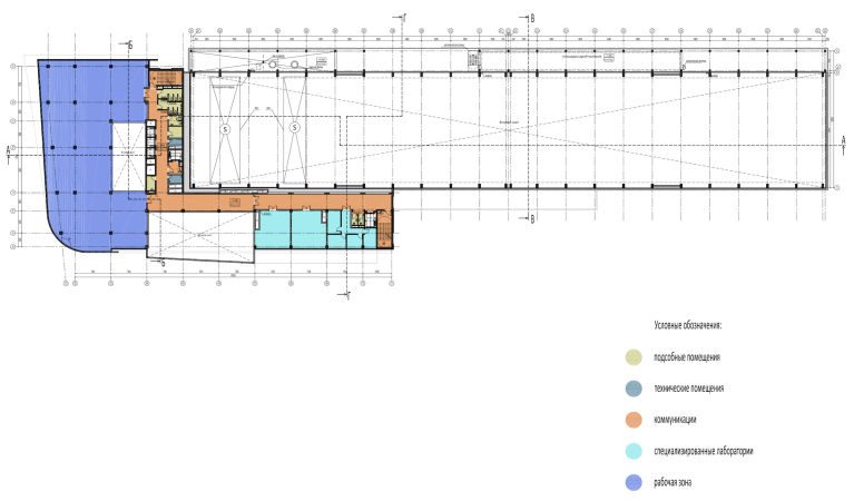
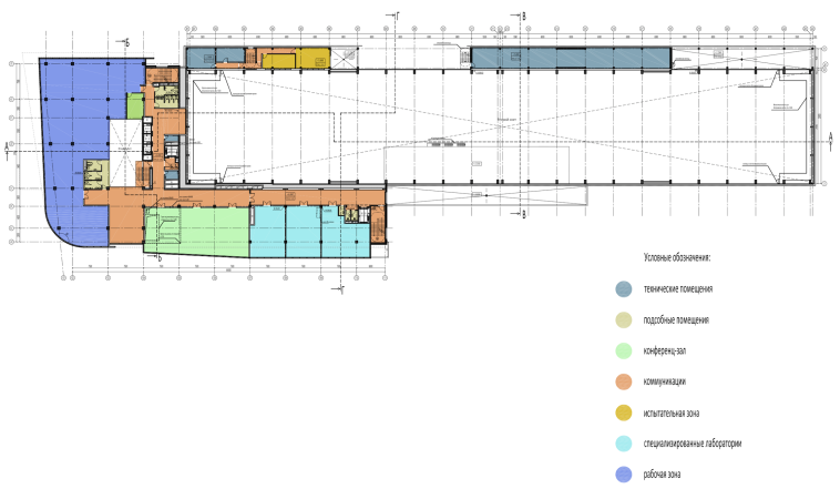
Здание занимает узкий протяженный участок между Большим Бульваром и улицей Вильгельма Рентгена, отделяющей территорию иннограда от новопостроенного ЖК «Славянка», достаточно характерного примера замкадовского строительства, чье присутствие в качестве сценического задника возвращает наблюдателя из заоблачных мыслей об инновациях к реальности. Впрочем, от соседства можно и абстрагироваться. Итак, новый научно-технический центр состоит из двух частей: длинного прямоугольника испытательного полигона и небольшого почти кубического объема офисно-представительской части.
Научно-технический центр в Сколково
Фотограф © Даниил Анненков/предоставлено ABD architects
Первый, технический корпус предназначен для экспериментальных исследований и представляет собой ангар с цельным внутренним пространством высотой около 15 м. Стенды, предназначенные для испытания металлических труб на прочность, отчасти углублены в землю; продуман механизм, закрывающий их большими плитами. Поскольку два корпуса состыкованы между собой, предусмотрена возможность наблюдать за испытаниями труб и их результатами через стеклянную стену представительской части комплекса, располагая эффектным обзором всего ангара сверху. Но два здания разделяет деформационный шов, и фундаменты также отдельные, поскольку испытания проводятся прежде всего с целью исключить разрывы труб и нагрузки применяются внушительные.
Внутреннее пространство технического корпуса через окно в представительском здании. Научно-технический центр ТМК в Сколково
Фотография: Ю.Тарабарина, Архи.ру
Испытательный стенд в техническом корпусе. Научно-технический центр ТМК в Сколково
Фотография: Ю.Тарабарина, Архи.ру
Фасады технического корпуса декорированы панелями светло-серого прорезного металла, которые, с одной стороны, подчеркивают его инженерно-исследовательское назначение, – хотя бы потому, что за ажурным экраном хорошо видны несущие его конструкции и темная изнанка внутренних стен. С другой стороны, горизонтальные прорези издали похожи на ленточные окна, что позволило визуально структурировать объем, избежав чрезмерного техницизма в восприятии. Иными словами, издали промышленный ангар выглядит как здание с окнами. Настоящих окон на фасадах испытательного корпуса, однако, нет – его пространство получает естественный свет сверху через множество небольших проемов, равномерно распределенных на плоской кровле: они планировались круглыми, а получились квадратными.
Научно-технический центр в Сколково. Общий вид со стороны бульвара
© ABD architects
Круги, впрочем, сохранились в благоустройстве, также спроектированном ABD architects. Циркульные газоны с деревьями и без рассыпаны строго по сетке, но различие диаметров делает их живописным горохом. Если бы окна испытательного корпуса оставались круглыми, при взгляде сверху, с коптера или «из космоса» возникал бы эффект плавного «растворения» здания в пространстве.
Научно-технический центр в Сколково
Фотограф © Даниил Анненков/предоставлено ABD architects
Репрезентативный объем штаб-квартиры обращен к Большому бульвару. Он выше на три этажа и похож на стеклянную «голову» перед металлическим «хвостом» – эффект особенно ощущается благодаря выступу эркера, в котором размещены VIP-апартаменты руководства, с выходами на террасы эксплуатируемой кровли с двух сторон. Северо-западный угол штаб-квартиры, обращенный ко въезду, расширен кверху и слегка заострен, стеклянная поверхность обращенного к бульвару западного фасада деликатно, но заметно изогнута. Второй угол, юго-западный, напротив, скруглен – стеклянный объем в этой части продолжен в глубину вдоль технического корпуса. Стыковка двух разнофункциональных зданий, таким образом, наделяет его двумя «лицами»: на въезде, где острый угол оттеняет соседство испытательного ангара, акцентирована техногенность, а взгляду со стороны иннограда предстает граненый изгиб, чья внешность в большей степени городская, чем промышленная.
Научно-технический центр в Сколково
Фотограф © Даниил Анненков/предоставлено ABD architects
Важная составляющая образности представительской части – штриховка подсветки полос межэтажных перекрытий, подобная другому офисному проекту ABD architects, БЦ Принципал плаза на проспекте 60-летия Октября. Рисунок светящихся полос основан на равномерном чередовании, подобном плетению ткани: три элемента светятся, один нет, – он складывается в крупные зигзаги и служит своего рода световым скелетом, организующим по вечерам неравномерное свечение прозрачных фасадов.
В тот же зигзагообразный ритм вписаны вентиляционные щели, забранные мелкой металлической решеткой. Золотистой решеткой, следуя той же зигзагообразной логике, планировалось покрыть и часть окон. Но в итоговом варианте решетки заменили шелкографией с изображением облаков: изнутри рисунок виден при близком рассмотрении, а снаружи создает, скорее, эффект разнотоновых стекол.
Шелкография на окнах, взгляд изнутри. Научно-технический центр ТМК в Сколково
Фотография: Ю.Тарабарина, Архи.ру
Интерьер представительской части объединен вокруг высокого узкого атриума с лестницей, разделенной ярко-оранжевой перегородкой: фирменные цвета компании черный и красно-оранжевый. Вскоре в пространстве атриума планируется вывесить арт-объект, изображающий гигантскую каплю раскаленного металла, но, конечно, выполненную из легкого материала. Другой предмет искусства – а представители компании ТМК подчеркивают ее заинтересованность в поддержке искусства и художников, – воспроизведенная на стекле вестибюля увеличенная картина художника первой половины XX века Ивана Слюсарева с видом Златоустовского завода, одного из старейших уральских металлургических производств.
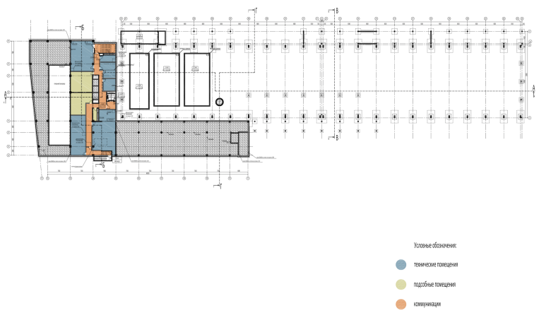
Интерьеры решены нейтрально и технично. Исследовательские лаборатории выходят в коридор стеклянными стенами – это иллюстрирует открытость процесса в духе современной концепции live и, кроме того, позволяет проводить экскурсии, не прерывая работы специалистов. Здание технологично во многих отношениях: на пресс-показе было озвучено, что 40% бюджета здания, в целом составившего 5 млрд рублей, ушло на собственно строительство, еще 40% было потрачено на исследовательское оборудование испытательных стендов и лабораторий, 5% на мебель и интерьеры, и 15% на мультимедийное оборудование, в том числе для видеоконференций, так как компания объединяет множество представительств и производств в разных частях света. Интерьер в офисной части – им, как и медийным оснащением, занималась компания Pridex – решен как модифицированный open space: рабочие места выстроены своего рода «змейкой», которая обеспечивает сотрудникам некоторую степень приватности. Решение потолка также гибридно: он не зашит и не раскрыт полностью – конструкции и коммуникации прикрыты множеством панелей-лепестков, которые, с одной стороны, отражают свет и работают на ощущение определенной степени уюта, но, с другой стороны, не «срезают» высоту, оставляя настоящий потолок доступным для взгляда.
Согласно правилам Сколково, здание должно получить сертификат энергоэффективности, что было предусмотрено проектом ABD architects и поддержано последующими проектировщиками. Максим Неретин, представитель Aurora Group, выполнявшей функцию генпроектировщика и разработчика РД, рассказывает: «Был подписан договор на сопровождение проекта сертифицированной компанией, которая осуществляла подсчёт баллов для получения сертификата LEED. Также она консультировала по вопросам проектирования и реализации проекта с целью получения сертификата. В настоящий момент, когда здание построено, договор с данным консультантом все ещё является действующим. Сейчас осуществляется финальный подсчёт баллов. В первой половине следующего года Aurora Group планирует получить целевой сертификат LEED Silver».


