Ресторан пришвартован в самом центре, недалеко от горадминистрации и главного ростовского собора – ХХС войска Донского, также построенного по проекту Константина Андреевича Тона. Набережная тщательно, по-версальски так, благоустроена: скамейки с высокими спинками, фонари отраженного света, множество стриженых кустарников. Крайне ухожена, в духе современных тенденций. Название ресторана тоже по современным правилам простое и даже хипстрерское, «Рис». Соответственно он выглядит снаружи: белые межэтажные «плиты» (на самом деле панели на металлическом каркасе), обозначают белизну риса, деревянные вертикали, вероятно, намекают на палочки, которыми его едят на Востоке. Бело-голубые полосатые стены на торцах откликаются на водную, читай морскую, хотя здесь, конечно, речную, тематику. Вход по трапу на второй этаж.
Плавучий ресторан на набережной реки Дон
                © Архитектурная студия «Новая РАСА»
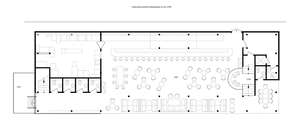
        От набережной ресторан отгораживается глухими стенами, с этой стороны расположены технические помещения, к реке же максимально открыт террасой. В проекте предполагалось множество фонтанных струй из-под ног первого этажа, но этот замысел, по-видимому, не реализован.
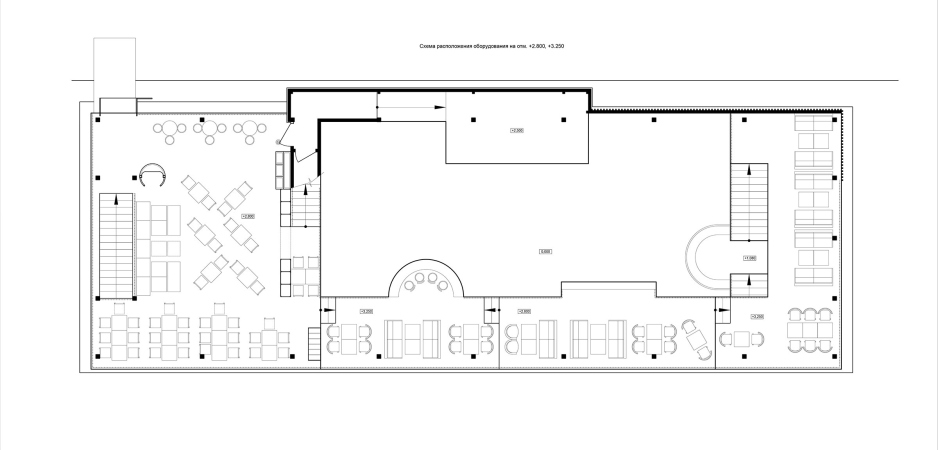
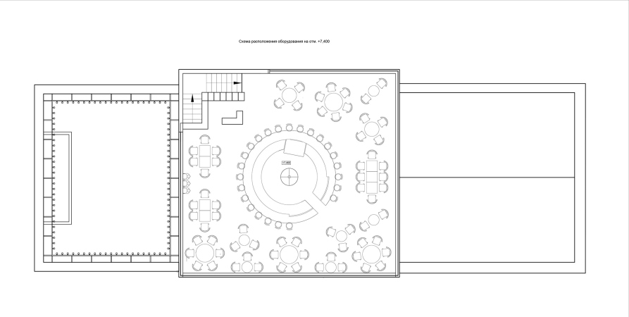
Яруса три, основной едва над уровнем воды, второй составляют балконы, над водой для посетителей, напротив, у внутренней стены для диджея. Терраса на кровле занимает где-то треть прямоугольного плана, оставляя небо над головами части сидящих внутри.
Интерьер же, напротив, исключительно пышен – скорее в духе образности сети «Грабли», с свисающими с потолка цветами и множеством фактур и подсветки. Балкон диджея украшает надпись: «весь мир ест рис», откликаясь на нее стены по соседству украшает силуэт небоскреба Крайслер и контуры высотных городов. Энергетика интерьера выплескивается наружу по вечерам – в виде яркой разноцветной подсветки (если днем ресторан похож на пристань и немного на корабль, то ночью на новогоднюю елку), а также, надо думать, и громкой музыкой.

 
            
            
         
                            
 
                                         
                                         
                                         
                                         
                                         
                                         
                                         
                                         
                                         
                                         
                                         
                                         
                                         
                                         
                                         
                                         
                                         
                                         
                                         
                                         
                                         
                                         
                                         
                                                                        
                                                                     
                                                                        
                                                                     
                                                                        
                                                                     
                                                                        
                                                                     
                                                                        
                                                                     
                                                                        
                                                                     
                                                                        
                                                                     
                                                                        
                                                                     
                                                                        
                                                                     
                                                                        
                                                                     
                                                                        
                                                                     
                                                                        
                                                                     
                                                                        
                                                                     
                                                                        
                                                                     
                                                                        
                                                                     
                                                                        
                                                                     
                                                                        
                                                                     
                                                                        
                                                                     
                                                                        
                                                                     
                                                                        
                                                                     
                                                                        
                                                                     
                                                                        
                                                                     
                                                                        
                                                                     
                                                                        
                                                                     
                                                                        
                                                                     
                                                                        
                                                                     
                                                                        
                                                                     
                                                                        
                                                                     
                                                                        
                                                                     
                                                                        
                                                                     
                                                                        
                                                                     
                                                                        
                                                                     
                                                                        
                                                                     
                                                                        
                                                                     
                                                                        
                                                                     
                                                                        
                                                                     
                                                                        
                                                                     
                                                                        
                                                                     
                                                                        
                                                                     
                                                                        
                                                                     
                                                                        
                                                                     
                                                                        
                                                                     
                                                                        
                                                                     
                                                                        
                                                                     
                                                                        
                                                                     
                                                                        
                                                                     
                                                                        
                                                                     
                                                                        
                                                                     
                                                                        
                                                                     
                                                                        
                                                                     
                                                                        
                                                                     
                                                                        
                                                                     
                                                                        
                                                                     
                                                                        
                                                                     
                                                                        
                                                                     
                                                                        
                                                                     
                                                                        
                                                                     
                                                                        
                                                                     
                                                                        
                                                                     
                                                                        
                                                                     
                                                                        
                                                                     
                                                                        
                                                                     
                                                                        
                                                                     
                                                                        
                                                                     
                                                                        
                                                                     
                                                                        
                                                                     
                                                                        
                                                                     
                                                                        
                                                                     
                                                                        
                                                                     
                                                                        
                                                                     
                                         
                                                                        
                                                                     
                                                                        
                                                                    