Описание предоставлено архитекторами
Участок для строительства двух жилых домов VILLA K и VILLA E расположен на Камчатке и состоит из трех лотов, принадлежащих двум собственникам. Со всех сторон участок окружен лесом из деревьев лиственных пород. Рельеф выраженный, имеет уклон в юго-восточном направлении и характеризуется абсолютными высотными отметками поверхности порядка 50–40 метров в Тихоокеанской системе высот.
В соответствии с техническим заданием заказчиков предусмотрено строительство двух индивидуальных жилых домов с отдельно стоящими гаражами, павильоном летней кухни, спортплощадкой и частным банкетным залом. Проектом предполагается обеспечить подъезд к участкам с восточной стороны, организовав один въезд и общую разворотно-парковочную площадку размером 25×20 м, с которой возможен доступ в помещения гаражей и квартир персонала, размещенных на втором этаже гаражей. Симметрично фланкирующие площадку строения гаражей рассчитаны на хранение двух автомобилей и до 4–6 единиц мототехники (мотоциклов, квадроциклов, снегоходов) каждый. Напротив въездов в гаражи возможна гостевая парковка до 10 автомобилей.
Загородный жилой дом на Камчатке. Схема генерального плана
                © Архитекторы Гикало Купцов
        Жилые дома ориентированы относительно основной проектной оси север-юг, объемы остальных строений повернуты на 21 градус параллельно границам участков. Дома размещены ближе к центру каждого из участков, что обусловлено стремлением обеспечить максимально приватное, обособленное существование, сохранив по возможности имеющиеся деревья – преимущественно камчатские березы. При этом они расположены таким образом, чтобы не закрывать лучшие виды на окружающую природу, обеспечивая оптимальный для всех помещений режим инсоляции.
Все проектируемые строения расположены на участке так, что составляют единый архитектурный ансамбль, объединенный также общей стилистикой и материалами отделки.
VILLA K. Загородный жилой дом на Камчатке
                Фотография © Лина Самигуллина / предоставлена Архитекторы Гикало Купцов
        VILLA K. Загородный жилой дом на Камчатке
                Фотография © Лина Самигуллина / предоставлена Архитекторы Гикало Купцов
        VILLA K
В основе объемно-планировочного решения VILLA K – обеспечение максимальной приватности, наилучших видов на окружающий ландшафт и защита от неблагоприятных юго-восточных ветров. При этом меньший по площади участок и наличие расположенного южнее и ниже по склону соседнего дома определили конфигурацию плана дома и посадку его на участке.
VILLA K. Загородный жилой дом на Камчатке
                Фотография © Лина Самигуллина / предоставлена Архитекторы Гикало Купцов
        VILLA K. Загородный жилой дом на Камчатке
                Фотография © Лина Самигуллина / предоставлена Архитекторы Гикало Купцов
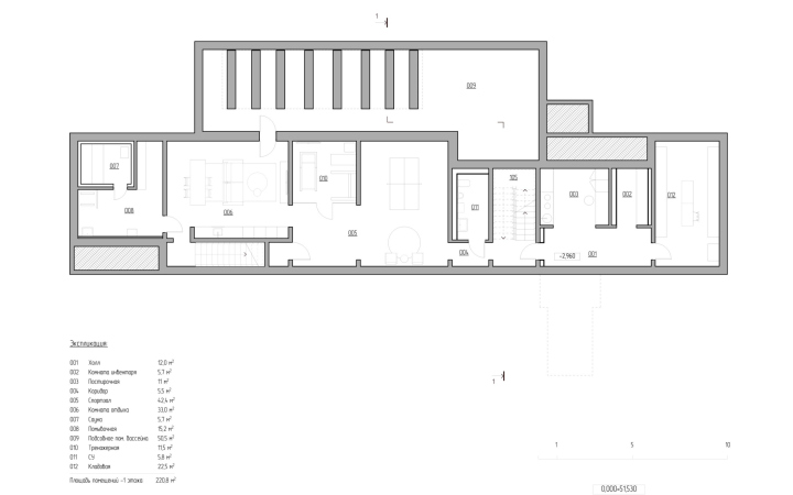
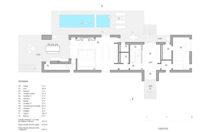
        Для обеспечения наилучших видов все жилые помещения дома обращены на запад (на сопку), компонуясь перпендикулярно основной коммуникационной оси дома, вытянутой с севера на юг. Исключение составляет общее пространство гостиной-кухни-столовой, которое открывается на юг высоким витражом, задействуя весь незанятый соседним домом сегмент южной перспективы. На западном фасаде размещена терраса с открытым бассейном с термальной водой, под которой в цокольном этаже запроектированы технические помещения. Из цокольного этажа на первый ведут две лестницы. Одна приходит непосредственно в гостиную, другая – в прихожую.
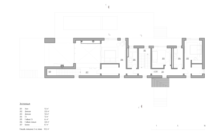
На первом этаже жилого дома расположены помещения холла, коридора, санузла и общее пространство кухни-столовой-гостиной с камином. Отсюда обеспечены выходы на террасу с бассейном с термальной водой и летней кухней, предназначенную для приготовления и приема пищи на свежем воздухе. Также на первом этаже размещена гостевая спальня, имеющая отдельный санузел. Первый этаж связан со вторым двухмаршевой лестницей. Второй этаж – приватный. Там размещены 3 спальни – 2 детских и главная со своими гардеробной и ванной комнатами, а также балконом в общее пространство, с которого можно спуститься вниз непосредственно к террасе с летней кухней и бассейном.
Вытянутый объем VILLA K накрыт простой односкатной кровлей, которая, преломляясь с южного торца, образует характерный двухсветный п-образный портал, создающий запоминающийся архитектурный образ дома.
Фундаменты всех проектируемых строений – монолитные железобетонные. Наружные стены и перекрытия VILLA K – железобетонные. Кровли – скатные, стропила из деревоклееного бруса, материал покрытия – патинированная медь. Террасы – дощатый настил из термодревесины по лагам. В отделке стен использован керамогранит, термодревесина и патинированная медь.
Источником тепла для отопления домов и гаражей служит геотермальная энергия.
Навес над тандыром
От въездной площадки к домам ведут широкие пешеходные дорожки с настилами из термодревесины. Такие же дорожки связывают жилые дома друг с другом, а также с павильоном летней кухни с навесом для тандыра, расположенным на большем из участков, со спортплощадкой и павильоном банкетного зала.Навес над тандыром построен на участке с частным жилым домом VILLA Е, в непосредственной близости с павильоном летней кухни. Квадратный в плане 4,5×4,5 м и высотой 9 м, навес визуально разделен по вертикали на две части: периметральную деревянную колоннаду из бревна с экранами из нержавеющей стали высотой 3 метра и венчающую ее четырехскатную кровлю 6-метровой высоты из дерево-клееного бруса, снаружи покрытую зеленой патинированной медью, а изнутри – красной.
На дощатом настиле в зоне отдыха располагаются три скамьи и барная стойка из гранита. В зоне приготовления, мощеной брусчаткой, установлен тандыр в гранитном кольце. Тандыр фланкирован с двух сторон газовыми грилями для мяса и рыбы. Шатровая крыша выполняет роль дымосборника и одновременно навеса от осадков.
Навес – это храм еды: ешь, молись, люби! Тандыр становится жертвенником, барная стойка – алтарем, а скамьи – своеобразным генуфлекторием. Шатер в нашем случае работает как маяк в ночи, а свет, проникающий через ламели вентзонта, призывает к себе адептов чревоугодия дарами Камчатки с охоты и рыбалки.
Навес над тандыром
                Фотография © Александр Купцов
        Навес над тандыром
                Фотография © Александр Купцов
        Навес над тандыром
                Фотография © Александр Купцов
        
 
            
            
         
                            
 
                             
                             
                             
                             
                             
                             
                             
                             
                             
                             
                             
                             
                            
 
                             
                             
                             
                             
                             
                             
                             
                             
                             
                             
                             
                             
                                         
                                         
                                         
                                         
                                         
                                         
                                         
                                         
                                         
                                         
                                         
                                         
                                         
                                         
                                         
                             
                             
                             
                             
                             
                             
                                                                        
                                                                     
                                                                        
                                                                     
                                                                        
                                                                     
                                                                        
                                                                     
                                                                        
                                                                     
                                                                        
                                                                     
                                                                        
                                                                     
                                                                        
                                                                     
                                                                        
                                                                     
                                                                        
                                                                     
                                                                        
                                                                     
                                                                        
                                                                     
                                                                        
                                                                     
                                                                        
                                                                     
                                                                        
                                                                     
                                                                        
                                                                     
                                                                        
                                                                     
                                                                        
                                                                     
                                                                        
                                                                     
                                                                        
                                                                     
                                                                        
                                                                     
                                                                        
                                                                     
                                                                        
                                                                     
                                                                        
                                                                     
                                                                        
                                                                     
                                                                        
                                                                     
                                                                        
                                                                     
                                                                        
                                                                     
                                                                        
                                                                     
                                                                        
                                                                     
                                                                        
                                                                     
                                                                        
                                                                     
                                                                        
                                                                     
                                                                        
                                                                     
                                                                        
                                                                     
                                                                        
                                                                     
                                                                        
                                                                     
                                                                        
                                                                     
                                                                        
                                                                     
                                                                        
                                                                     
                                                                        
                                                                     
                                                                        
                                                                     
                                                                        
                                                                     
                                                                        
                                                                     
                                                                        
                                                                     
                                                                        
                                                                     
                                                                        
                                                                     
                                                                        
                                                                     
                                                                        
                                                                     
                                                                        
                                                                     
                                                                        
                                                                     
                                                                        
                                                                     
                                                                        
                                                                     
                                                                        
                                                                     
                                                                        
                                                                     
                                                                        
                                                                     
                                                                        
                                                                     
                                                                        
                                                                     
                                                                        
                                                                     
                                                                        
                                                                     
                                                                        
                                                                     
                                                                        
                                                                     
                                                                        
                                                                     
                                                                        
                                                                     
                                                                        
                                                                     
                                                                        
                                                                     
                                                                        
                                                                     
                                                                        
                                                                     
                                                                        
                                                                     
                                                                        
                                                                     
                                         
                                                                        
                                                                     
                                                                        
                                                                    