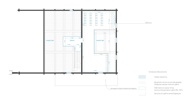
Концепция реставрации и приспособления ОКН Муниципального значения «Усадьба С.В. Катюшина вт.пол XIX в. «Лабаз» под общественное пространство арт-резиденции. Визуализация 1 этапа благоустройства
© APRELarchitects
Концепция реставрации и приспособления ОКН Муниципального значения «Усадьба С.В. Катюшина вт.пол XIX в. «Лабаз» под общественное пространство арт-резиденции
информация:
-
статус
в процессе реализации -
даты
03.2024 / 09.2024 -
место
Юрьевец въезд Весниных, 8 -
координаты
57.316459, 43.109010 -
функция
Культурный / Музей -
теги
send.project -
общая площадь
224 м2 -
этажность
2

Наталья Бавыкина
Natalya Bavykina / Россия
Алексей Фатькин
РоссияAPRELarchitects
APRELarchitects / Россияавторский коллектив
Наталья Бавыкина, Алексей Фатькин, Дарья Андреева, Анастасия Маркина
Соавтор идеи архитектурной концепции: Центр территориального развития
Генеральный директор: София Познанская
Концепции искусственного освещения: ZenLight
Дарья Чиримисина
партнеры, заказчики, смежники
Заказчик: Автономная некоммерческая организация «Центр территориального развития»
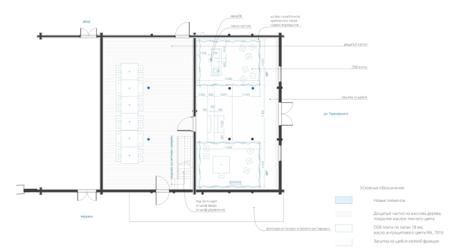
Концепция реставрации и приспособления ОКН Муниципального значения «Усадьба С.В. Катюшина вт.пол XIX в. «Лабаз» под общественное пространство арт-резиденции. Визуализация 2 этапа благоустройства
© APRELarchitects
Архи.ру об этом объекте:
Алёна Кузнецова. АрхиWOOD-16: со вкусом к жизни
В этом году премия получила рекордное количество заявок: одних только загородных домов в длинном списке было 44. Однако вновь обошлось без яркого гран-при, было учреждено лишь два специальных приза в небольших номинациях. Отмеченные наградами проекты – все до одного, от усадьбы до вышки сотовой связи – говорят о желании отдыха, эскапизма и радости: уехать от большого города, смотреть на воду и деревья, сделать что-то руками и никуда не торопиться.
В этом году премия АрхиWOOD прошла в 16-й раз, приняв рекордные 327 заявок. Среди них было много прелюбопытного: не совсем типичные для дерева типологии – например, аэропорт, вышка сотовой связи или пивоварня; не затертые локации – от Болдино до Буря... читать дальшедругие тексты Архи.ру:
Арт-лабаз
Концепция реставрации и приспособления ОКН Муниципального значения «Усадьба С.В. Катюшина вт.пол XIX в. «Лабаз» под общественное пространство арт-резиденции. Визуализация интерьера зоны ресепшена на 1 этапе
© APRELarchitects
история проекта:
В 2025 году город Юрьевец отметит свое 800-летие, указ о праздновании подписал Президент В.В. Путин. В связи с этим в рамках синхронизации программ по благоустройству территории и ситуационных событий города было принято решение об открытии арт-резиденции. Выбранным для её размещения местом стал сохранившийся деревянный лабаз на территории усадьбы С.В. Катюшина, где располагается дом-музей архитекторов Весниных. Лабаз, находящийся в центре города Юрьевец, является ценным объектом деревянного зодчества хозяйственного назначения, в хорошей степени сохранности. В настоящее время объект не используется.
В 2023 году было принято решение об организации в малом городе Юрьевце Арт-резиденции, и Центр территориального развития обратился к архитектурному бюро АПРЕЛЬ с предложением разработать архитектурную концепцию реставрации и приспособления объекта культурного наследия муниципального значения под общественное пространство арт-резиденции.
описание:
Предложенная архитектурная концепция основана на интерпретации конструктивистского наследия братьев Весниных. В её основу легли имеющиеся общие черты, среди которых можно выделить простоту и лаконичность, утилитарность и проявление конструкции. Минималистичная и геометричная форма объектов и мебели заключают в себе одновременно дух утилитарной простоты и эстетику конструктивизма. Вся конструкция представляет собой визуально единый объект, переходящий с первого уровня на второй в виде настилов, балконов и ограждений.
Работа с объектом велась по двум основным направлениям: проект благоустройства территории, а также концепция интерьера самого объекта ( в рамках архитектурного задания на выполнение проекта реставрации и приспособления объекта культурного наследия).