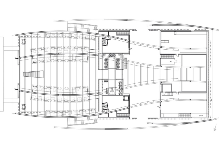
В центре постройки находится внутренний двор, закрытый от солнца и дождя антресольным этажом. Туда привозят собранный виноград, откуда он попадает в расположенный на том же уровне цех-бродильню с чанами. Они были заказаны в Италии и имеют изящную криволинейную форму, сужающуюся кверху, что способствует выходу газов при брожении. Облик цеха не нарушают многочисленные трубы: вся инфраструктура скрыта в самих чанах. В подвальном ярусе на бетонных подставках по проекту Портзампарка размещены бочки. Чаны и бочки расставлены по кривым линиям, что подчеркивает сложный план здания.
На антресольном этаже расположен дегустационный зал с длинным столом из кориана. Оттуда можно попасть на крышу винодельни, частью занятую деревянной террасой, частью — садом с голубыми полевыми цветами, дикими травами и кустарниками. Свет в интерьер здания попадает сквозь широкие балюстрады террасы с прозрачными стеклянными поверхностями.
К самому замку Шеваль-Блан постройка Портзампарка обращена торцом, и, при взгляде оттуда, почти теряется между зеленью виноградников и зеленью сада на своей крыше.
Н. Ф.
Винодельня Шато Шеваль-Блан © Milena Chessa / Le Moniteur.fr
Винодельня Шато Шеваль-Блан © Milena Chessa / Le Moniteur.fr
Винодельня Шато Шеваль-Блан © Milena Chessa / Le Moniteur.fr
Винодельня Шато Шеваль-Блан © Milena Chessa / Le Moniteur.fr
Винодельня Шато Шеваль-Блан © Milena Chessa / Le Moniteur.fr
Винодельня Шато Шеваль-Блан © Milena Chessa / Le Moniteur.fr
Винодельня Шато Шеваль-Блан © Milena Chessa / Le Moniteur.fr
Винодельня Шато Шеваль-Блан © Milena Chessa / Le Moniteur.fr
Винодельня Шато Шеваль-Блан © Milena Chessa / Le Moniteur.fr
Винодельня Шато Шеваль-Блан © Milena Chessa / Le Moniteur.fr
Винодельня Шато Шеваль-Блан © Milena Chessa / Le Moniteur.fr
Винодельня Шато Шеваль-Блан © Milena Chessa / Le Moniteur.fr
Винодельня Шато Шеваль-Блан © Milena Chessa / Le Moniteur.fr
Винодельня Шато Шеваль-Блан © Milena Chessa / Le Moniteur.fr
Винодельня Шато Шеваль-Блан © Milena Chessa / Le Moniteur.fr
Винодельня Шато Шеваль-Блан © Milena Chessa / Le Moniteur.fr
Винодельня Шато Шеваль-Блан © Milena Chessa / Le Moniteur.fr
Винодельня Шато Шеваль-Блан © Atelier Christian de Portzamparc
Винодельня Шато Шеваль-Блан © Atelier Christian de Portzamparc
Винодельня Шато Шеваль-Блан. План антресольного этажа © Atelier Christian de Portzamparc
Винодельня Шато Шеваль-Блан © Atelier Christian de Portzamparc
Винодельня Шато Шеваль-Блан © Atelier Christian de Portzamparc
