Размещено на портале Архи.ру (www.archi.ru)

06.07.2011

Бетонные волны в виноградниках

Объект:
Винодельня Шато Шеваль-Блан
Адрес:
Франция, None, Сент-Эмильон.

Близ Бордо открылось новое здание винодельни Шато Шеваль-Блан, спроектированное Кристианом де Портзампарком.

Винодельня Шато Шеваль-Блан © Milena Chessa / Le Moniteur.fr
Винодельня Шато Шеваль-Блан © Milena Chessa / Le Moniteur.fr
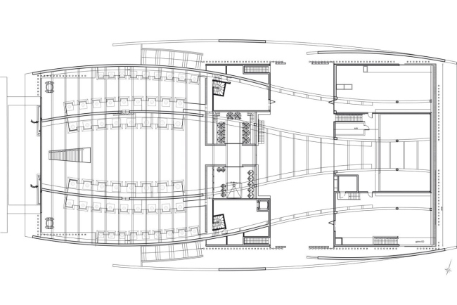
Вина Шеваль-Блан относятся к лучшим в знаменитом винодельческом регионе Сент-Эмильон, поэтому хозяева этого производства смогли позволить себе пригласить знаменитого архитектора — вполне в соответствии с модой на «винную архитектуру» последних десяти лет. Новое сооружение включает в себя как цеха для брожения и выдержки вина, так и элегантные общественные зоны. Вытянутый объем постройки своим криволинейным силуэтом вторит холмам окружающей местности, измененной руками человека: виноградники там существуют с древнеримской эпохи.

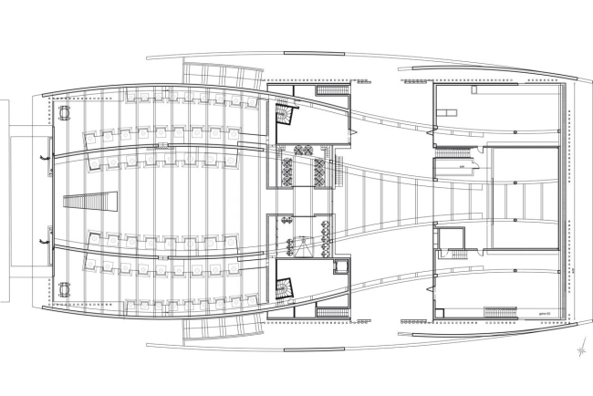
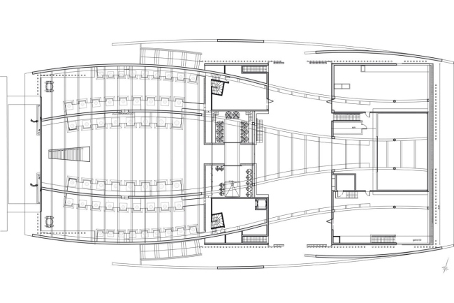
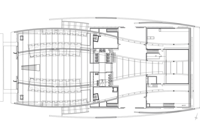
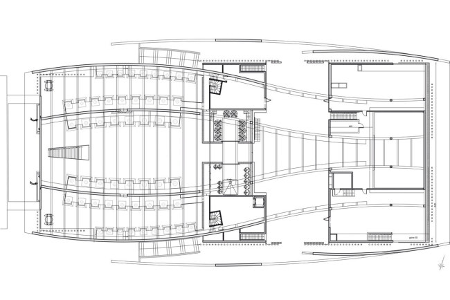
В центре постройки находится внутренний двор, закрытый от солнца и дождя антресольным этажом. Туда привозят собранный виноград, откуда он попадает в расположенный на том же уровне цех-бродильню с чанами. Они были заказаны в Италии и имеют изящную криволинейную форму, сужающуюся кверху, что способствует выходу газов при брожении. Облик цеха не нарушают многочисленные трубы: вся инфраструктура скрыта в самих чанах. В подвальном ярусе на бетонных подставках по проекту Портзампарка размещены бочки. Чаны и бочки расставлены по кривым линиям, что подчеркивает сложный план здания.

На антресольном этаже расположен дегустационный зал с длинным столом из кориана. Оттуда можно попасть на крышу винодельни, частью занятую деревянной террасой, частью — садом с голубыми полевыми цветами, дикими травами и кустарниками. Свет в интерьер здания попадает сквозь широкие балюстрады террасы с прозрачными стеклянными поверхностями.

К самому замку Шеваль-Блан постройка Портзампарка обращена торцом, и, при взгляде оттуда, почти теряется между зеленью виноградников и зеленью сада на своей крыше.

Н. Ф.
Винодельня Шато Шеваль-Блан © Milena Chessa / Le Moniteur.fr
Винодельня Шато Шеваль-Блан © Milena Chessa / Le Moniteur.fr
Винодельня Шато Шеваль-Блан © Milena Chessa / Le Moniteur.fr
Винодельня Шато Шеваль-Блан © Milena Chessa / Le Moniteur.fr
Винодельня Шато Шеваль-Блан © Milena Chessa / Le Moniteur.fr
Винодельня Шато Шеваль-Блан © Milena Chessa / Le Moniteur.fr
Винодельня Шато Шеваль-Блан © Milena Chessa / Le Moniteur.fr
Винодельня Шато Шеваль-Блан © Milena Chessa / Le Moniteur.fr
Винодельня Шато Шеваль-Блан © Milena Chessa / Le Moniteur.fr
Винодельня Шато Шеваль-Блан © Milena Chessa / Le Moniteur.fr
Винодельня Шато Шеваль-Блан © Milena Chessa / Le Moniteur.fr
Винодельня Шато Шеваль-Блан © Milena Chessa / Le Moniteur.fr
Винодельня Шато Шеваль-Блан © Milena Chessa / Le Moniteur.fr
Винодельня Шато Шеваль-Блан © Milena Chessa / Le Moniteur.fr
Винодельня Шато Шеваль-Блан © Milena Chessa / Le Moniteur.fr
Винодельня Шато Шеваль-Блан © Milena Chessa / Le Moniteur.fr
Винодельня Шато Шеваль-Блан © Milena Chessa / Le Moniteur.fr
Винодельня Шато Шеваль-Блан © Milena Chessa / Le Moniteur.fr
Винодельня Шато Шеваль-Блан © Milena Chessa / Le Moniteur.fr
Винодельня Шато Шеваль-Блан © Milena Chessa / Le Moniteur.fr
Винодельня Шато Шеваль-Блан © Milena Chessa / Le Moniteur.fr
Винодельня Шато Шеваль-Блан © Milena Chessa / Le Moniteur.fr
Винодельня Шато Шеваль-Блан © Milena Chessa / Le Moniteur.fr
Винодельня Шато Шеваль-Блан © Milena Chessa / Le Moniteur.fr
Винодельня Шато Шеваль-Блан © Milena Chessa / Le Moniteur.fr
Винодельня Шато Шеваль-Блан © Milena Chessa / Le Moniteur.fr
Винодельня Шато Шеваль-Блан © Milena Chessa / Le Moniteur.fr
Винодельня Шато Шеваль-Блан © Milena Chessa / Le Moniteur.fr
Винодельня Шато Шеваль-Блан © Milena Chessa / Le Moniteur.fr
Винодельня Шато Шеваль-Блан © Milena Chessa / Le Moniteur.fr
Винодельня Шато Шеваль-Блан © Milena Chessa / Le Moniteur.fr
Винодельня Шато Шеваль-Блан © Milena Chessa / Le Moniteur.fr
Винодельня Шато Шеваль-Блан © Atelier Christian de Portzamparc
Винодельня Шато Шеваль-Блан © Atelier Christian de Portzamparc
Винодельня Шато Шеваль-Блан © Atelier Christian de Portzamparc
Винодельня Шато Шеваль-Блан © Atelier Christian de Portzamparc
Винодельня Шато Шеваль-Блан. План антресольного этажа © Atelier Christian de Portzamparc
Винодельня Шато Шеваль-Блан. План антресольного этажа © Atelier Christian de Portzamparc
Винодельня Шато Шеваль-Блан © Atelier Christian de Portzamparc
Винодельня Шато Шеваль-Блан © Atelier Christian de Portzamparc
Винодельня Шато Шеваль-Блан © Atelier Christian de Portzamparc
Винодельня Шато Шеваль-Блан © Atelier Christian de Portzamparc