|
Административное здание WoodHub по проекту C. F. Møller в Оденсе стало самой большой деревянной офисной постройкой в Дании.
За алюминиевыми фасадами WoodHub красно-коричневых оттенков, напоминающих о характерных для Оденсе и Дании в целом кирпичных сооружениях, скрывается «начинка» из инженерного дерева: опоры из клееной древесины и перекрытия из перекрестно-клееного дерева (CLT). Архитекторы C. F. Møller обошлись без балок, что позволило сделать планировку по-настоящему гибкой и подходящей для возможных в будущем изменений функции.

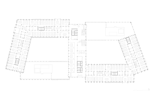
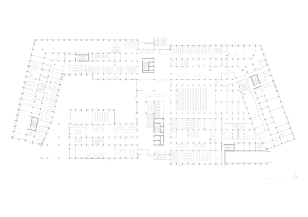
Пока же в здании с площадью наземных уровней 31 тыс. м2 разместились 1600 служащих нескольких госучреждений. Их кабинеты расположены в двух С-образных крыльях высотой от трех до шести этажей, обращенных на запад и восток, а по центру помещен 7-этажный корпус с переговорными. Первый этаж занят, помимо прочего, конференц-залом, столовой и центром приема граждан. Понижающаяся по мере удаления от центральной части высота WoodHub помогает согласовать здание с окружением, хотя среда вокруг достаточно нейтральна: это прилегающая к небольшой гавани Оденсе территория современной застройки.

Архитекторы подчеркивают, что выведенная в интерьер деревянная конструкция создает комфортную атмосферу за счет запаха, теплоты, тактильной фактуры дерева. Использование древесины не только позволило «замуровать» захваченный деревьями при их жизнедеятельности CO2 (который иначе, при естественной гибели растений, выделяется обратно в атмосферу), но и сократить углеродный след постройки на 5400 тонн по сравнению с обычным офисным зданием (это показатель за весь прогнозируемый срок службы в 50 лет).

Фасады выполнены из вторично использованного алюминия, не требующего особого ухода. Ниши затеняют оконные проемы (их размер в каждом случае определен в зависимости от ориентации постройки), что позволило обойтись без механических жалюзи. Административное здание WoodHubФото © Rasmus Hjortshøj
Административное здание WoodHubФото © Rasmus Hjortshøj
Административное здание WoodHubФото © Rasmus Hjortshøj
Административное здание WoodHubФото © Rasmus Hjortshøj
Административное здание WoodHubФото © Rasmus HjortshøjАдминистративное здание WoodHubФото © Rasmus HjortshøjАдминистративное здание WoodHubФото © Rasmus HjortshøjАдминистративное здание WoodHubФото © Rasmus Hjortshøj
Административное здание WoodHubФото © Rasmus HjortshøjАдминистративное здание WoodHubФото © Rasmus HjortshøjАдминистративное здание WoodHubФото © Rasmus HjortshøjАдминистративное здание WoodHubФото © Rasmus HjortshøjАдминистративное здание WoodHubФото © Rasmus HjortshøjАдминистративное здание WoodHubФото © Rasmus HjortshøjАдминистративное здание WoodHubФото © Rasmus HjortshøjАдминистративное здание WoodHubФото © Rasmus HjortshøjАдминистративное здание WoodHubФото © Rasmus HjortshøjАдминистративное здание WoodHubФото © Rasmus HjortshøjАдминистративное здание WoodHubФото © Rasmus HjortshøjАдминистративное здание WoodHubФото © Rasmus HjortshøjАдминистративное здание WoodHubФото © Rasmus Hjortshøj
Административное здание WoodHubФото © Rasmus HjortshøjАдминистративное здание WoodHubФото © Rasmus HjortshøjАдминистративное здание WoodHubФото © Rasmus HjortshøjАдминистративное здание WoodHubФото © Rasmus HjortshøjАдминистративное здание WoodHubФото © Rasmus HjortshøjАдминистративное здание WoodHubФото © Rasmus HjortshøjАдминистративное здание WoodHubФото © Rasmus HjortshøjАдминистративное здание WoodHubФото © Rasmus HjortshøjАдминистративное здание WoodHubФото © Rasmus HjortshøjАдминистративное здание WoodHubФото © Rasmus HjortshøjАдминистративное здание WoodHubФото © Rasmus HjortshøjАдминистративное здание WoodHubФото © Rasmus HjortshøjАдминистративное здание WoodHubФото © Rasmus HjortshøjАдминистративное здание WoodHubФото © Rasmus HjortshøjАдминистративное здание WoodHubФото © Rasmus HjortshøjАдминистративное здание WoodHub© C.F. Møller ArchitectsАдминистративное здание WoodHub© C.F. Møller ArchitectsАдминистративное здание WoodHubФото © Peter Sikker RasmussenАдминистративное здание WoodHubФото © Peter Sikker RasmussenАдминистративное здание WoodHubФото © Peter Sikker RasmussenАдминистративное здание WoodHubФото © Peter Sikker RasmussenАдминистративное здание WoodHub© C.F. Møller ArchitectsАдминистративное здание WoodHub© C.F. Møller ArchitectsАдминистративное здание WoodHub© C.F. Møller ArchitectsАдминистративное здание WoodHub© C.F. Møller ArchitectsАдминистративное здание WoodHub© C.F. Møller ArchitectsАдминистративное здание WoodHub© C.F. Møller ArchitectsАдминистративное здание WoodHub© C.F. Møller ArchitectsАдминистративное здание WoodHub© C.F. Møller ArchitectsАдминистративное здание WoodHub© C.F. Møller ArchitectsАдминистративное здание WoodHub© C.F. Møller ArchitectsАдминистративное здание WoodHub© C.F. Møller ArchitectsАдминистративное здание WoodHub© C.F. Møller ArchitectsАдминистративное здание WoodHub© C.F. Møller Architects
|