Детский образовательный и спортивный центр «Парк де Лож»
Фотография © Charles Bouchaid /предоставлена FE Consulting
Детский образовательный и спортивный центр «Парк де Лож»
Фотография © Sergio Grazia /предоставлена FE Consulting
Детский образовательный и спортивный центр «Парк де Лож»
Фотография © Charles Bouchaid /предоставлена FE Consulting
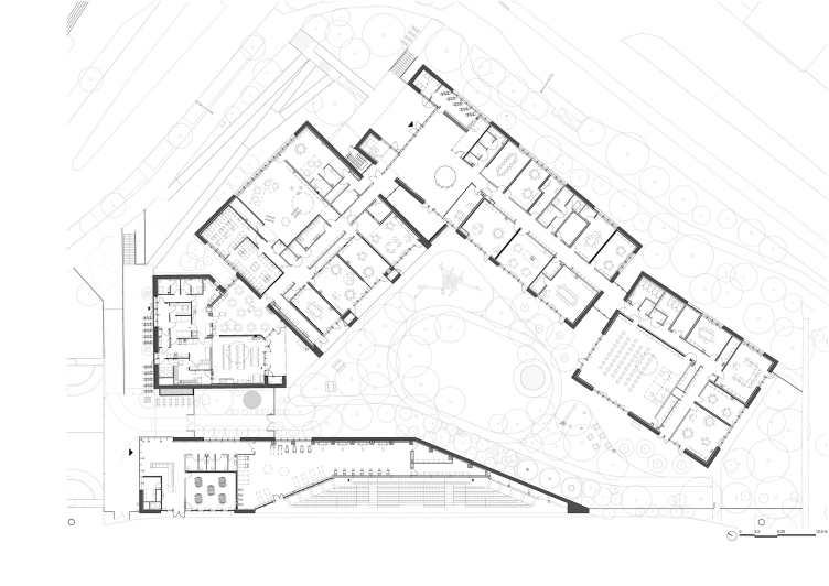
Четыре корпуса, соединенные остекленными переходами, занимают детский сад, начальная школа, центр дневного пребывания, а также кафетерий-столовая. Они встроены в рельеф по внешнему краю углового участка, став естественной преградой от дороги. В сторону же стадиона и зеленой зоны центр раскрывается протяженным объемом крытых трибун на 300 мест.
Детский образовательный и спортивный центр «Парк де Лож»
Фотография © Charles Bouchaid /предоставлена FE Consulting
Детский образовательный и спортивный центр «Парк де Лож»
Фотография © Sergio Grazia /предоставлена FE Consulting
Детский образовательный и спортивный центр «Парк де Лож»
Фотография © Sergio Grazia /предоставлена FE Consulting
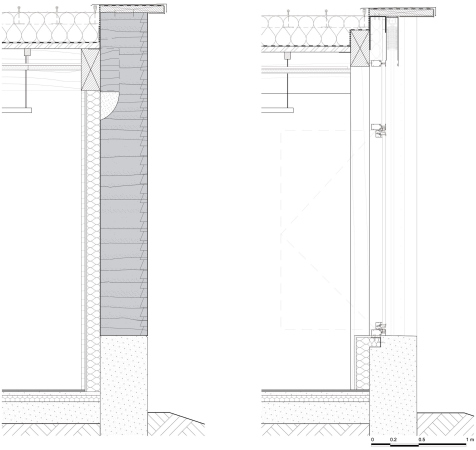
Основания всех построек выполнены из текстурированного бетона с низким углеродным следом, в конструкциях и внутренней отделке использовано в основном дерево, а для стен несколько неожиданно выбрали прессованную землю. Всего понадобилось 665 м3 почвы, извлеченной во время прокладки тоннелей метро Большого Парижа. Получилось всего около 1330 м2 землебитных стен толщиной 50 см; в качестве теплоизоляционного материала использовали конопляное волокно. Как отмечают архитекторы, такие стены сохраняют хорошую воздухопроницаемость и помогают детям, многие из которых всю жизнь проводят в городской среде, почувствовать себя ближе к природе.
Детский образовательный и спортивный центр «Парк де Лож»
Фотография © Sergio Grazia /предоставлена FE Consulting
Детский образовательный и спортивный центр «Парк де Лож»
Фотография © Sergio Grazia /предоставлена FE Consulting
Этим же целям отвечает и хорошая естественная освещенность даже в зимний период (ее обеспечили за счет грамотной ориентации объемов), и окна ближе к уровню земли (чтобы детям было удобнее в них смотреть; при этом остекление в них специально установлено глубже для защиты от солнца), и продуманная естественная вентиляция летом, и обилие зелени вокруг – высаженные на территории дубы, вязы, ясени и клены должны превратиться со временем в настоящий лес с полянкой игровой площадки. Наконец, еще одним элементом «устойчивой» повестки стали кровли, закрытые 15-20 см грунта, который способствует лучшей теплоизоляцией и помогает водоотведению. Интересно, что и здесь, как и, например, в их же проекте начальной школы Les Violettes, архитекторы HEMAA создали несколько непривычную линию кровель с обратным изгибом и приподнятыми углами.
Детский образовательный и спортивный центр «Парк де Лож»
© HEMAA
Детский образовательный и спортивный центр «Парк де Лож»
© HEMAA
Детский образовательный и спортивный центр «Парк де Лож»
© HEMAA
