Офисное здание Brainergy Hub
© HENN
Brainergy Park планирует привлечь компании с такой же специализацией. Для них хотят создать квази-природный ландшафт с искусственным озером для сбора дождевой воды. На его берегу и расположится «хаб» по проекту HENN: его центральная роль отражена в необычном, по сравнению с остальными запланированными корпусами, облике и высоких «зеленых» показателях – авторы надеются получить сертификат DGNB Gold.
Офисное здание Brainergy Hub
© HENN
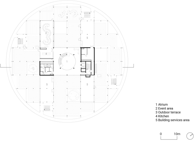
Круглая 4-этажная постройка диаметром 73 м на 300 рабочих мест получит гибридный каркас из дерева и бетона, причем деревянная стоечно-балочная система будет открыта в интерьер, где большинство поверхностей покроют деревянными панелями. Снаружи здание окольцуют три балкона, играющие рекреационную и коммуникационную роль: вместе с внешними лестницами они обеспечат быстрый доступ в любой офис. Главная лестница расположится в центральном атриуме, предусмотрены также четыре зеленых двора, обеспечивающие освещение.
Офисное здание Brainergy Hub
© HENN
Помимо офисов разного типа, включая коворкинг прямо в атриуме, задуманы помещения для обычных и кратких совещаний, а также «гостиные» для неформального обмена идеями и отдыха. На первом этаже расположатся общие для всего бизнес-парка конференц-залы, кофейня и кафетерий, а также зона для презентации идей и совместной работы и консультационный центр для старт-апов. На меньшем по площади четвертом этаже устроят пространство для мероприятий с террасой на крыше.
Офисное здание Brainergy Hub
© HENN
Модульная планировка позволит легко разместить в здании компании разного размера; мебель тоже будет модульной, напоминающей об объеме постройки округлой или сегментарной формой. Суперграфика от штутгартской студии Büro Uebele поможет сориентироваться даже при первом визите, как и окраска интерьеров в основные цвета в зависимости от расположения помещения.
В здании предусмотрено широкое использование естественного освещения наряду с внешней защитой от перегрева; солнечные батареи установят на крыше и балконах, дождевую воду планируют собирать и использовать. Высокоэффективные вентиляционные блоки встроят в фасады. Постройку подключат к городской системе отопления, но предусмотрены также и тепловые насосы.
Офисное здание Brainergy Hub
© HENN
