Дом Staggered Cabin
Фото © Joe Fletcher
Постройка площадью 110 м2 на высоте 1800 м над уровнем моря вдохновлена норвежскими и калифорнийскими образцами – как традиционными хижинами Сьерра-Невады, так и так называемыми домиками с А-каркасом (A-frame), придуманными, кстати, работавшим на юго-западе США архитектором норвежского происхождения – Хенриком Хелкандом Буллом (сам Каспер Морк-Улнес родился в Норвегии).
Дом Staggered Cabin
Фото © Joe Fletcher
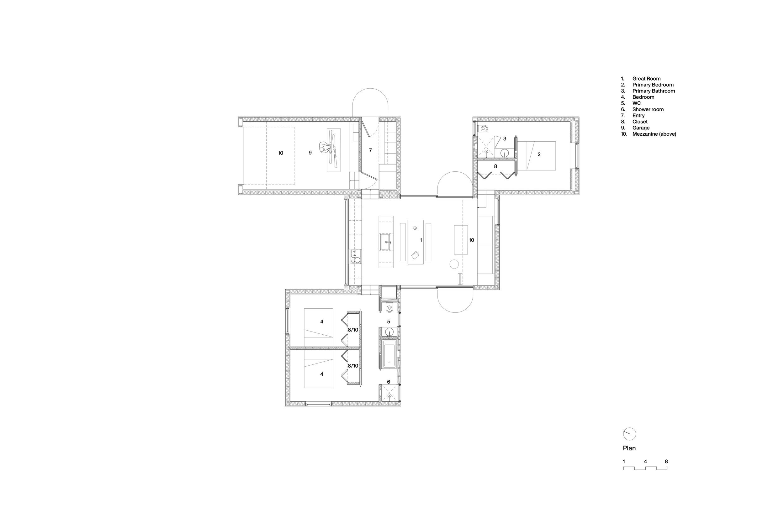
Дом состоит из четырех «павильонов», которые ступенями расставлены по склону: как по вертикали, вслед за рельефом, так и друг относительно друга. Три корпуса (три спальни и гараж) объединены центральным, с общей комнатой: кухней-гостиной-столовой. У всех шедовые, односкатные кровли, которые позволили устроить антресольные этажи над гаражом (кладовку) и над гостиной (домашний офис, куда ведет почти вертикальная лестница). В детской в пространстве под крышей создан «дом на дереве» и небольшой скалодром.
Дом Staggered Cabin
Фото © Joe Fletcher
Разделение основного объема на части позволило проще вписать его в лесистый участок, сократив вмешательство до минимума. Вокруг растут сосны Жеффрея и лежат валуны; водонепроницаемого мощения здесь мало, а срубленные в ходе стройки деревья по местным эко-правилам остались на месте: для превращения в перегной или же в виде «лесной» мебели.
Дом Staggered Cabin
Фото © Joe Fletcher
Дом обшит темной древесиной туи гигантской, хорошо сочетающейся с окружением; металлические кровли со стоячим вальцем снабжены снегоудерживающими устройствами, и снег улучшает их изоляцию зимой. Тающий снег и дождевая вода направляются с крыш на участки для впитывания в почву, чтобы не усиливать потоки, текущие по склону в озеро.
Дом Staggered Cabin
Фото © Joe Fletcher
В интерьере широко использованы массив древесины и фанера из дугласовой пихты; спроектированная архитекторами встроенная мебель позволяет эффективнее использовать помещения. Сквозь панорамные окна можно любоваться лесом и даже наблюдать за дикими животными, включая койотов и медведей.
