Социальный жилой комплекс на улице Нолле, 29
Фото © Frédéric Delangle
Гараж был плотно обстроен; если бы его пришлось сносить, помимо вреда для окружающей среды и неудобств для горожан, в новом здании пришлось бы большинство квартир ориентировать на север, чтобы избежать ситуации «окна в окна» с соседними домами. Поэтому архитекторы NZI предложили максимально сохранить части гаража, расположение которого никто не оспаривал. Они «вырезали» его серединную часть, превратив в зеленый внутренний двор шириной 14 м: именно туда выходят квартиры, ни одна из которых в итоге не обращена на север.
Социальный жилой комплекс на улице Нолле, 29
Фото © Frédéric Delangle
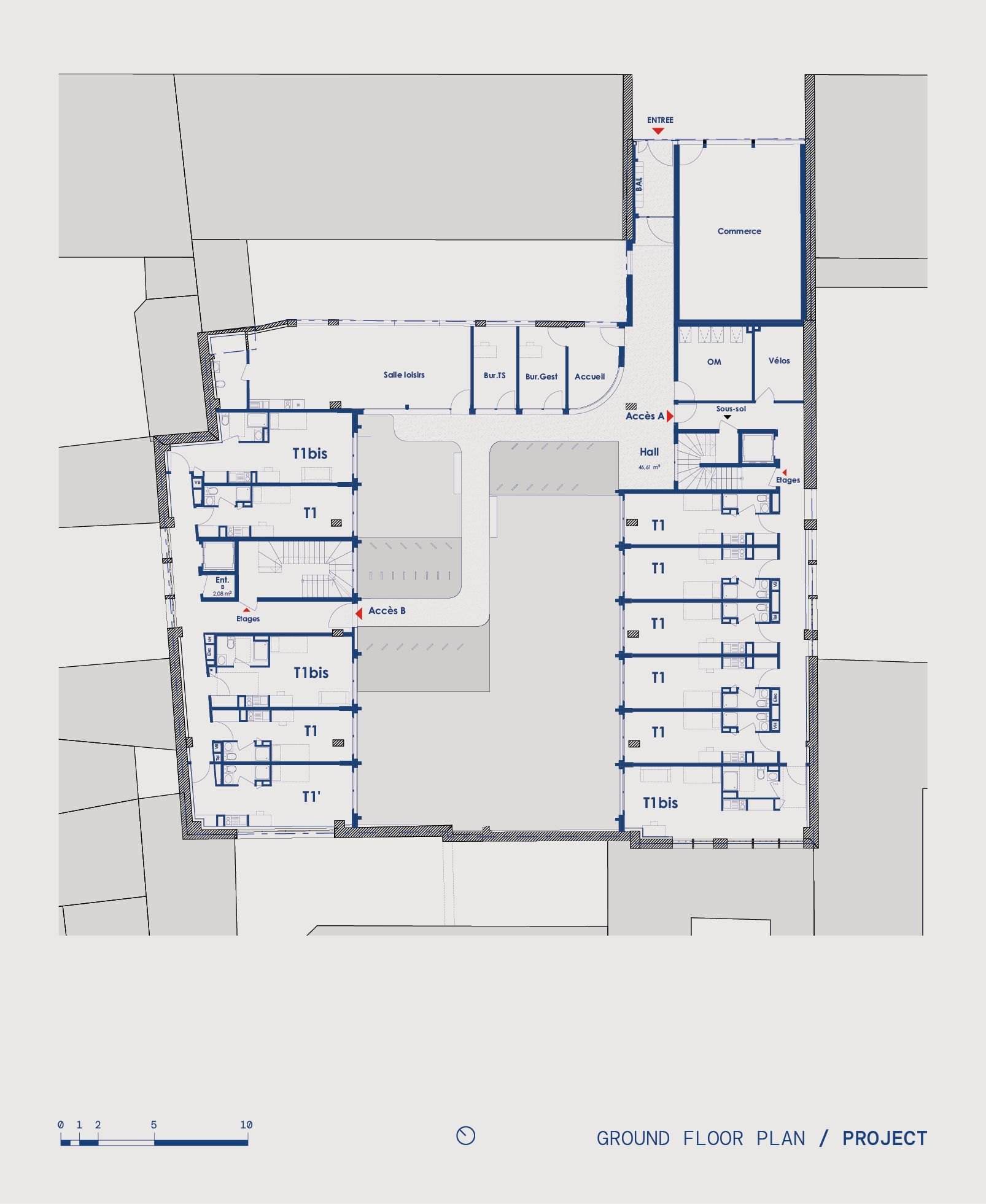
Здесь 83 квартиры типа T1 с вариантами: это не совсем студии по французским правилам, так как кухня здесь более-менее отделена от жилой зоны, а иногда имеется ниша-альков или антресольный уровень. Их площадь составляет 18, 21 или 33 м2. 5 % квартир – безбарьерные (все они расположены на первом этаже).
Социальный жилой комплекс на улице Нолле, 29
Фото © Frédéric Delangle
Для жильцов предусмотрен соединяющий два корпуса одноэтажный бытовой блок под зеленой кровлей (30 см почвы): он вмещает прачечную, общую кухню, офис домоуправления и помещение для собраний и других мероприятий. Сюда можно попасть с улицы через отдельный от «жилого» вход, со стороны города устроена и стойка администратора. У выходящей на Нолле части гаража был подвал, ныне вмещающий технические помещения, кладовки и раздевалки. Во дворе установлены лавочки и стойки для велосипедов. Лестнично-лифтовые узлы получили естественное освещение, как и большинство других общих зон.
Социальный жилой комплекс на улице Нолле, 29
Фото © Frédéric Delangle
Изначальную бетонную конструкцию дополнили панелями из перекрестно-клееной древесины (CLT) и древесностружечной изоляцией. На выбор этих материалов, помимо соображений экологичности, повлиял их небольшой вес. Асбестовую и черепичную кровлю заменили на алюминиевую со стоячим вальцем, исторические стены покрыли минеральной штукатуркой.
Социальный жилой комплекс на улице Нолле, 29
Фото © Frédéric Delangle
Новые фасады, обращенные во двор, обшиты кассетами с покрытием из анодированного алюминия: это сдержанный по виду и неприхотливый с точки зрения обслуживания материал, что важно для социального жилья. Большие окна от солнца защищают алюминиевые жалюзи и выступающие межэтажные карнизы. Новый ЖК полностью вписан в прежние габариты гаража. Здесь 2450 м2 общей площади, включая 1765 м2 жилой. Бюджет проекта составил 9 млн евро.
