Международное мореходное училище в Свеннборге (SIMAC)
                Фотография © Rasmus Hjortshøj / предоставлена C.F. Møller Architects
        Международное мореходное училище в Свеннборге (SIMAC)
                Фотография © Rasmus Hjortshøj / предоставлена C.F. Møller Architects
        Авторы проекта, архитекторы сразу двух датских бюро – C.F. Møller Architects и EFFEKT, характеризуют свой проект как «простой и честный» и называют его «маяком для образовательных учреждений будущего». Образ вполне буквален, так как проницаемая оболочка здания в темное время светится изнутри и действительно оказывается световым пространственным ориентиром. При этом своей строгой геометрией постройка ясно отсылает к окружающим кранам, грузовым контейнерам, складам и индустриальному наследию в целом.
Международное мореходное училище в Свеннборге (SIMAC)
                Фотография © Rasmus Hjortshøj / предоставлена C.F. Møller Architects
        Международное мореходное училище в Свеннборге (SIMAC)
                Фотография © Rasmus Hjortshøj / предоставлена C.F. Møller Architects
        Создать образ позволила несущая бетонная конструкция в виде объемной решетки с пролетом 7,2 м, оставленная полностью открытой. Такое решение, во-первых, позволило сэкономить строительные материалы, во-вторых, обеспечило максимальную гибкость планировки в расчете на возможные изменения учебного процесса. В-третьих, она уничтожает барьеры между интерьером и городом, так как и прохожие снаружи, и студенты изнутри видят практически одинаковую картинку.
Международное мореходное училище в Свеннборге (SIMAC)
                Фотография © Rasmus Hjortshøj / предоставлена C.F. Møller Architects
        Международное мореходное училище в Свеннборге (SIMAC)
                Фотография © Rasmus Hjortshøj / предоставлена C.F. Møller Architects
        Международное мореходное училище в Свеннборге (SIMAC)
                Фотография © Rasmus Hjortshøj / предоставлена C.F. Møller Architects
        Международное мореходное училище в Свеннборге (SIMAC)
                Фотография © Rasmus Hjortshøj / предоставлена C.F. Møller Architects
        Международное мореходное училище в Свеннборге (SIMAC)
                Фотография © Rasmus Hjortshøj / предоставлена C.F. Møller Architects
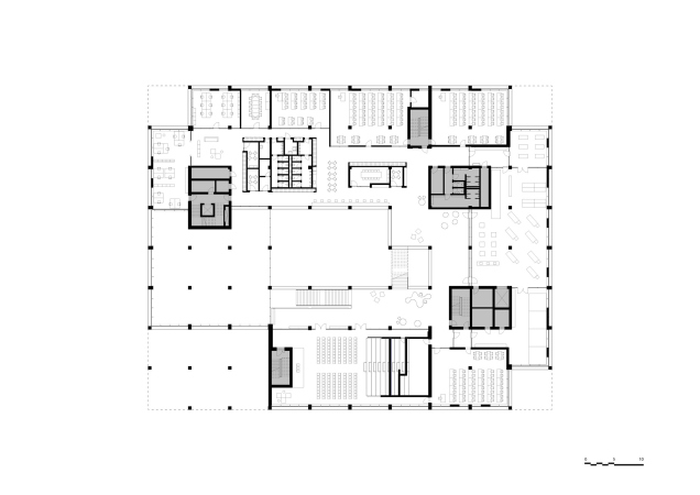
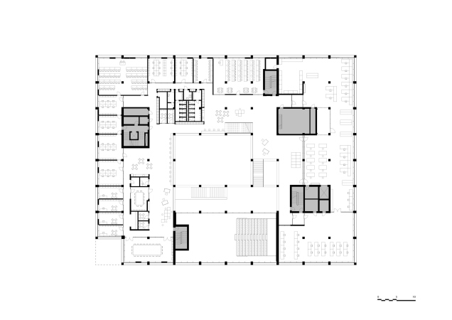
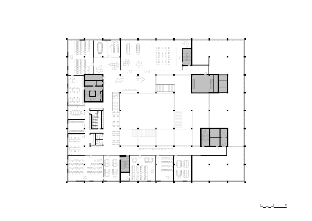
        Интеграция в городскую ткань подчеркнута и пространственной композицией. Со всех четырех углов в здании убраны опоры и созданы двухуровневые крытые зоны, в равной мере принадлежащие и городу, и зданию. Центром же стал просторный атриум высотой 20 м, вокруг которого размещены функциональные зоны, сгруппированные в четыре двухэтажных блока. Туда они выходят остеклением, что делает все учебные процессы предельно открытыми и стимулирует неформальное общение. Наконец, широкая лестница соединяет все уровни и ведет посетителя на открытую для всех желающих видовую террасу на самом верху. Окружающий ландшафт, также благоустроенный C.F. Møller и EFFEKT, должен стать частью общерайонного проекта озеленения, который позволит защитить грунт на всей территории будущего жилого района от интенсивных дождей.
Международное мореходное училище в Свеннборге (SIMAC)
                Фотография © Rasmus Hjortshøj / предоставлена C.F. Møller Architects
        Международное мореходное училище в Свеннборге (SIMAC)
                Фотография © Rasmus Hjortshøj / предоставлена C.F. Møller Architects
        За счет остекления в интерьерах обеспечено естественное освещение. В отделке, особенно в качестве напольного покрытия, использованы надежные, долговечные материалы. Кроме административных помещений, столовой и аудиторий в здании имеются лаборатории для развития практических навыков: студенты могут изучить работу огромного корабельного двигателя и других систем, освоить методы сварки. И даже причал перед фасадом также стал неотъемлемой частью обучающей среды.
Международное мореходное училище в Свеннборге (SIMAC)
                © C.F. Møller Architects & EFFEKT
        Международное мореходное училище в Свеннборге (SIMAC)
                © C.F. Møller Architects & EFFEKT
        Международное мореходное училище в Свеннборге (SIMAC)
                © C.F. Møller Architects & EFFEKT
        Международное мореходное училище в Свеннборге (SIMAC)
                © C.F. Møller Architects & EFFEKT
        Международное мореходное училище в Свеннборге (SIMAC)
                © C.F. Møller Architects & EFFEKT
        Международное мореходное училище в Свеннборге (SIMAC)
                © C.F. Møller Architects & EFFEKT
        
 
                         
            
            
         
                            
 
                             
                                         
                                         
                                         
                             
                             
                                         
                                         
                                         
                                         
                                         
                             
                             
                                         
                                         
                                         
                             
                             
                                         
                                         
                                         
                             
                             
                             
                                         
                                         
                                         
                                         
                                         
                             
                             
                             
                                         
                                         
                                         
                                         
                                         
                                         
                                         
                                         
                                         
                                         
                             
                             
                                         
                                         
                                         
                                         
                                         
                                         
                             
                     
                                                                        
                                                                     
                                                                        
                                                                     
                                                                        
                                                                     
                                                                        
                                                                     
                                                                        
                                                                     
                                                                        
                                                                     
                                                                        
                                                                     
                                                                        
                                                                     
                                                                        
                                                                     
                                                                        
                                                                     
                                                                        
                                                                     
                                                                        
                                                                     
                                                                        
                                                                     
                                                                        
                                                                     
                                                                        
                                                                     
                                                                        
                                                                     
                                                                        
                                                                     
                                                                        
                                                                     
                                                                        
                                                                     
                                                                        
                                                                     
                                                                        
                                                                     
                                                                        
                                                                     
                                                                        
                                                                     
                                                                        
                                                                     
                                                                        
                                                                     
                                                                        
                                                                     
                                                                        
                                                                     
                                                                        
                                                                     
                                                                        
                                                                     
                                                                        
                                                                     
                                                                        
                                                                     
                                                                        
                                                                     
                                                                        
                                                                     
                                                                        
                                                                     
                                                                        
                                                                     
                                                                        
                                                                     
                                                                        
                                                                     
                                                                        
                                                                     
                                                                        
                                                                     
                                                                        
                                                                     
                                                                        
                                                                     
                                                                        
                                                                     
                                                                        
                                                                     
                                                                        
                                                                     
                                                                        
                                                                     
                                                                        
                                                                     
                                                                        
                                                                     
                                                                        
                                                                     
                                                                        
                                                                     
                                                                        
                                                                     
                                                                        
                                                                     
                                                                        
                                                                     
                                                                        
                                                                     
                                                                        
                                                                     
                                                                        
                                                                     
                                                                        
                                                                     
                                                                        
                                                                     
                                                                        
                                                                     
                                                                        
                                                                     
                                                                        
                                                                     
                                                                        
                                                                     
                                                                        
                                                                     
                                                                        
                                                                     
                                                                        
                                                                     
                                                                        
                                                                     
                                                                        
                                                                     
                                                                        
                                                                     
                                                                        
                                                                     
                                                                        
                                                                     
                                                                        
                                                                     
                                                                        
                                                                     
                                                                        
                                                                     
                                                                        
                                                                     
                                                                        
                                                                     
                                                                        
                                                                     
                                                                        
                                                                     
                                                                        
                                                                     
                                                                        
                                                                     
                                                                        
                                                                     
                                                                        
                                                                     
                                                                        
                                                                     
                                                                        
                                                                     
                                                                        
                                                                     
                                                                        
                                                                     
                                                                        
                                                                     
                                                                        
                                                                     
                                                                        
                                                                     
                                                                        
                                                                     
                                                                        
                                                                     
                                                                        
                                                                     
                                                                        
                                                                     
                                                                        
                                                                     
                                                                        
                                                                     
                                                                        
                                                                     
                                                                        
                                                                     
                                                                        
                                                                     
                                                                        
                                                                     
                                                                        
                                                                     
                                                                        
                                                                     
                                                                        
                                                                     
                                                                        
                                                                     
                                                                        
                                                                     
                                        