RSS
Административное здание WoodHub
Фото © Rasmus Hjortshøj

Административное здание WoodHub


/ WoodHub office building

информация:

C. F. Møller
C. F. Møller / Дания
Административное здание WoodHub
Фото © Rasmus Hjortshøj

Архи.ру об этом объекте:

28.01.2026

Нина Фролова. Тактильность и теплота на рабочем месте

Административное здание WoodHub по проекту C. F. Møller в Оденсе стало самой большой деревянной офисной постройкой в Дании.

читать дальше
Административное здание WoodHub
Фото © Rasmus Hjortshøj
Административное здание WoodHub
Фото © Rasmus Hjortshøj
Административное здание WoodHub
Фото © Rasmus Hjortshøj
Административное здание WoodHub
Фото © Rasmus Hjortshøj
Административное здание WoodHub
Фото © Rasmus Hjortshøj
Административное здание WoodHub
Фото © Rasmus Hjortshøj
Административное здание WoodHub
Фото © Rasmus Hjortshøj
Административное здание WoodHub
Фото © Rasmus Hjortshøj
Административное здание WoodHub
Фото © Rasmus Hjortshøj
Административное здание WoodHub
Фото © Rasmus Hjortshøj
Административное здание WoodHub
Фото © Rasmus Hjortshøj
Административное здание WoodHub
Фото © Rasmus Hjortshøj
Административное здание WoodHub
Фото © Rasmus Hjortshøj
Административное здание WoodHub
Фото © Rasmus Hjortshøj
Административное здание WoodHub
Фото © Rasmus Hjortshøj
Административное здание WoodHub
Фото © Rasmus Hjortshøj
Административное здание WoodHub
Фото © Rasmus Hjortshøj
Административное здание WoodHub
Фото © Rasmus Hjortshøj
Административное здание WoodHub
Фото © Rasmus Hjortshøj
Административное здание WoodHub
Фото © Rasmus Hjortshøj
Административное здание WoodHub
Фото © Rasmus Hjortshøj
Административное здание WoodHub
Фото © Rasmus Hjortshøj
Административное здание WoodHub
Фото © Rasmus Hjortshøj
Административное здание WoodHub
Фото © Rasmus Hjortshøj
Административное здание WoodHub
Фото © Rasmus Hjortshøj
Административное здание WoodHub
Фото © Rasmus Hjortshøj
Административное здание WoodHub
Фото © Rasmus Hjortshøj
Административное здание WoodHub
Фото © Rasmus Hjortshøj
Административное здание WoodHub
Фото © Rasmus Hjortshøj
Административное здание WoodHub
Фото © Rasmus Hjortshøj
Административное здание WoodHub
Фото © Rasmus Hjortshøj
Административное здание WoodHub
Фото © Rasmus Hjortshøj
Административное здание WoodHub
Фото © Rasmus Hjortshøj
Административное здание WoodHub
Фото © Rasmus Hjortshøj
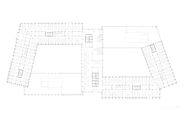
Административное здание WoodHub
© C.F. Møller Architects
Административное здание WoodHub
© C.F. Møller Architects
Административное здание WoodHub
Фото © Peter Sikker Rasmussen
Административное здание WoodHub
Фото © Peter Sikker Rasmussen
Административное здание WoodHub
Фото © Peter Sikker Rasmussen
Административное здание WoodHub
Фото © Peter Sikker Rasmussen
Административное здание WoodHub
© C.F. Møller Architects
Административное здание WoodHub
© C.F. Møller Architects
Административное здание WoodHub
© C.F. Møller Architects
Административное здание WoodHub
© C.F. Møller Architects
Административное здание WoodHub
© C.F. Møller Architects
Административное здание WoodHub
© C.F. Møller Architects
Административное здание WoodHub
© C.F. Møller Architects
Административное здание WoodHub
© C.F. Møller Architects
Административное здание WoodHub
© C.F. Møller Architects
Административное здание WoodHub
© C.F. Møller Architects
Административное здание WoodHub
© C.F. Møller Architects
Административное здание WoodHub
© C.F. Møller Architects
Административное здание WoodHub
© C.F. Møller Architects

Избранные архитекторы:

  • Даниэль Либескинд
  • Кристиан де Портзампарк
  • Хельмут Ян
  • Арата Исодзаки
  • Дэвид Чипперфильд
  • Сигэру Бан
  • Бернар Чуми
  • Норман Фостер
  • Алвару Сиза

Проект из каталога (случайный выбор)

Центр Riverstone
Даниэль Либескинд, 2006 – 2008
Центр Riverstone

Избранные постройки:

  • Лахта-центр
  • Студенческий центр Альфреда Лернера, Колумбийский университет
  • Комплекс Фондако деи Тедески – реконструкция
  • Комплекс Dongdaemun Design Park and Plaza
  • Штаб-квартира HSBC
  • Комплекс Linked Hybrid
  • Мемориал Холокоста в Лондоне
  • Юридический факультет Кембриджского университета
  • Музей Ливерпуля

Зарубежные новости