Корпус «Б» Алтайского филиала Российской академии народного хозяйства и государственной службы (РАНХиГС)
© Творческая мастерская А. Ф. Деринга «Классика»
Есть и более прагматичные причины, по которым архитекторы обратились именно к метаболизму. Во-первых, здание, рассчитанное на 900 учащихся, предстояло буквально втискивать на небольшой участок, зажатый между существующими корпусами, парковками и спортивным полем. Во-вторых, нужно было учесть дальнейшее развитие Академии: если удастся выкупить дополнительные территории, руководство планирует замкнуть квартал, построив общежитие для аспирантов и спортивный манеж.
Корпус «Б» Алтайского филиала Российской академии народного хозяйства и государственной службы (РАНХиГС)
© Творческая мастерская А. Ф. Деринга «Классика»
Архитекторы сравнивают свое здание с деревом. У него есть «ствол» – основа из облицованных кирпичом прямоугольных объемов с небольшими окнами. Из этой основы прорастают «ветви» – зашитые в темные профилированные листы слои здания. Продолжая аналогию, остекленные консоли можно сравнить с пышной кроной.
Как живое дерево меняет свою форму, реагируя на солнце и ветер, так и корпус подстраивается под ограничительные нормы, вырастая там, где это возможно. Самое живописное скопление консолей образовалось со стороны внутреннего двора кампуса. К улице здание обращено более «плоской» частью – вынос консолей здесь не столь драматичный, а объемы сбалансированы уже в скорее супрематической композиции, вовлекая в свою игру и соседний корпус. Фасад с черными консолями рассчитан на дальнейшее расширение кампуса и возможные пристройки.
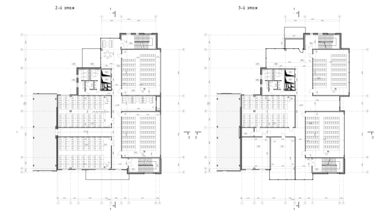
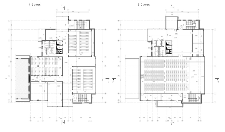
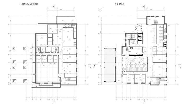
Логика внутреннего устройства здания до определенной степени следует его внешней структуре. На основу из коридоров нанизаны крупные блоки аудиторий и рекреаций, к которым относится коворкинг, гостиная с биокамином или комната с теннисными столами. На первом этаже располагается вестибюльная группа и пиццерия, на последнем пятом этаже – большой актовый зал, где проходят в числе прочего общегородские или межвузовские мероприятия – выставки, хакатоны, конференции и фестивали.
Новый корпус был построен в рекордные сроки. Путь от проекта до реализации занял всего десять месяцев, при том, что было необходимо решать нетривиальные задачи: вынос консолей составляет больше трех метров, а сибирский климат требовал особых инженерно-технических решений для остекления.
С появлением нового корпуса в Алтайском филиале РАНХиГС открылась магистратура по направлению «Современная урбанистика». Попасть в здание возможно в составе экскурсии.
