Ближний от метро круг – типовые панельные дома 1990-х, далее идут комплексы-колоссы 2000-х, следом – образцы более гуманные, если не высотой, то хотя бы разнообразием фасадов. Квартал, где построена LEGENDA по проекту бюро «Евгений Герасимов и партнеры» – как раз смесь последних двух явлений: ЖК «Рио» с разноцветными лоджиями вторит ЖК «Складская, 28», между ними – глухие и незатейливые пластины домов. С другой стороны, у квартала четкая периметральная структура, и LEGENDA в этом отношении – последний кубик, недостающее звено, которое оформляет угол Дальневосточного и будущего Союзного проспекта.
Жилой комплекс «LEGENDA Дальневосточного»
© Евгений Герасимов и партнеры
Евгений Герасимов рассказывает, что в основе архитектурного решения – ленинградское градостроительство с его «ясностью, упорядоченностью и здравой логикой, существующих при определенных экономических и эстетических условиях», а также немного Востока как дань местной топонимике, что соответствует общей минималистичной концепции.
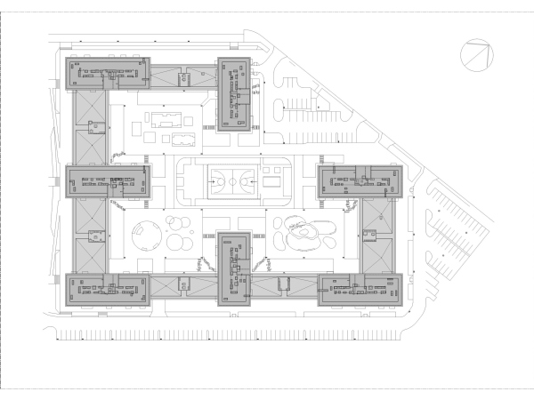
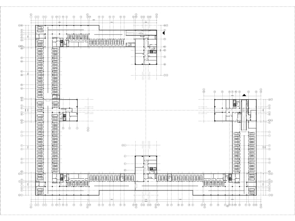
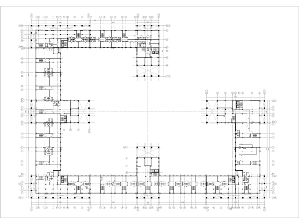
Архитекторы рассматривали несколько вариантов композиции, – впрочем, во всех версиях объемы поддерживали уличный фронт: с замкнутым кварталом и башнями, разновысотными пластинами, всевозможными поворотами и конфигурациями секций. Однако остановились на умышленно лаконичном решении: семь прямоугольных в плане башен одинаковой высоты расставлены по границам участка, двухэтажная галерея объединяет их в единый комплекс. Три корпуса по углам ориентированы на линии улиц, четыре «промежуточных» чуть уходят во двор. Получился разомкнутый квартал, в котором много пространства и света: расстояния между корпусами большие, за счет чего комплекс сохранил силуэтность, поскольку секции хорошо просматриваются в «разрывах», и с разных точек раскрываются разные виды.
В противовес строгой и лаконичной композиции комплекса его фасады нарочито асимметричны: окна и лоджии следуют заданному ритму, но цветовые акценты – штрихи, точки и переплетения – заставляют глаз задержаться и искать закономерности. Торцы башен плоские и облицованы светлым керамогранитом под камень, широкая сторона более теплая, тактильная и пластичная: из-за фактуры под дерево, цветовых контрастов и лоджий. Возвращаясь к восточным аллюзиям – светлая сторона корпусов похожа на аккуратные коробочки-бенто, а темная – на бамбуковые коврики макису с рядами «роллов»-лоджий.
Воздушная подушка галереи – элемента, необычного для комплексов такого класса, с колоннами, пилястрами и прозрачным стеклом, живо напоминает о других ярких образцах локальной архитектуры: доме на опорах на Новосмоленской набережной или доме Ивана Фомина и Евгения Левинсона на Набережной Карповки.
Двор также необычен – Евгений Герасимов считает, что с благоустройством в данном случае удалось шагнуть вперед. Во-первых, здесь много пространств с разными сценариями. В центре – универсальная спортивная площадка, в уютно отгороженных корпусами углах – три площадки для разных возрастных групп: позаботились не только о малышах, но и подростках, что не так уж часто встретишь, а также взрослых. Всё связано дорожками, тропинками и небольшими площадками для тихого отдыха. Отдельного упоминания заслуживают галереи у входных групп: они создают плавный переход от улицы к дому, защищенное от непогоды место, где можно спокойно подождать, встретиться, поиграть подольше. Больше времени провести на улице приглашают уличные кресла: захватить чай или книгу, созерцать или работать с ноутбуком. Элемент на первый взгляд не сложный, но он как-то сразу переключает двор на уровень развитого по современным стандартам общественного пространства.
Во-вторых, зоны двора организованы с такой эстетикой, что не будет преувеличением назвать его пятым фасадом: смотреть из окон приятно. У каждой площадки свой рисунок мощения, а «пятна» благоустройства соединяются в продуманно-стихийную, как в саду камней, композицию, которая уравновешивает геометрическую строгость архитектуры. Поскольку подземный паркинг располагается по периметру здания, во дворе высадят побольше «оазисов», деревьев и кустарников, – обещает застройщик.
Планировки в комплексе относятся к категории «смарт»: их разрабатывали с учетом разных стилей жизни будущих жильцов – от одинокого молодого человека до семьи с двумя детьми и старшими родителями, так, чтобы в маленьких квартирах каждый квадратный метр был полезным, а в более просторных появлялась «роскошь пустоты». Из жилья классом выше в проект «перекочевали» спальни с гардеробными, детская с санузлом, прачечные и кладовые, ванные с окнами. В единый каталог вошло 250 базовых планировочных решений, которые защищены авторским правом.
Евгений Герасимов отмечает: весь комплекс пронизывают «сквозные» детали. Например, природные материалы начинаются на фасадах, и получают продолжение в концепции благоустройства, галерея есть как снаружи комплекса, так и во дворе, «японское» и «ленинградское» тоже сосуществует на всех уровнях.
«LEGENDA Дальневосточного» – пятый совместный с мастерской «Евгений Герасимов и партнеры» проект девелопера и вторая реализация. Еще один жилой комплекс из той же условной категории «смарт», «LEGENDA на Комендантском», строится на другом конце города и демонстрирует совсем иной подход, рожденный контекстом: «стремление выделиться, яркие квадратики...». А на Петергофском шоссе возводят «ЖК LEGENDA Героев», которая объединяет приемы, найденные в двух предыдущих работах, и позволяет утверждать: массовое жилье можно делать разным, удобным и красивым.
