Альпийское шале «Вилла Мура» в Словении
Фотография © Miran Kambic/ предоставлена Ofis Arhitekti
Альпийское шале «Вилла Мура» в Словении
Фотография © Miran Kambic/ предоставлена Ofis Arhitekti
Альпийское шале «Вилла Мура» в Словении
Фотография © Miran Kambic/ предоставлена Ofis Arhitekti
Альпийское шале «Вилла Мура» в Словении
Фотография © Miran Kambic/ предоставлена Ofis Arhitekti
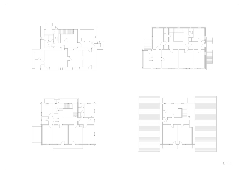
Бюро Ofis из Любляны, которое занялось реконструкцией ценного объекта, соединило традиционные приемы с вниманием к экологическим принципам. Так же, как при работе с павильоном в ущелье Винтгар, расположенном не так далеко, в противоположной части Триглавского национального парка, архитекторы восстановили объем виллы Мура практически в тех же габаритах и материалах, даже планировка осталась очень близкой к изначальной. Узнаваемую двускатную кровлю тоже оставили, а характерные внешние балконы конструктивно переосмыслили и сделали важной частью всего решения.
Альпийское шале «Вилла Мура» в Словении
Фотография © Miran Kambic/ предоставлена Ofis Arhitekti
Альпийское шале «Вилла Мура» в Словении
Фотография © Miran Kambic/ предоставлена Ofis Arhitekti
Альпийское шале «Вилла Мура» в Словении
Фотография © Miran Kambic/ предоставлена Ofis Arhitekti
Альпийское шале «Вилла Мура» в Словении
Фотография © Miran Kambic/ предоставлена Ofis Arhitekti
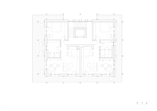
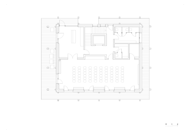
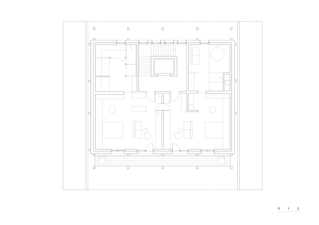
Нижний уровень, по-прежнему выложенный старым камнем (собрали и повторно использовали даже осколки), вмещает теперь уютный ресторан. Выше расположен конференц-зал, а два верхних этажа занимают четыре королевских номера класса люкс, каждый из которых имеет собственную дровяную печь, сауну или ванную, и, конечно, балконы с панорамными видами на озеро и окрестности. Также архитекторы восстановили подземный проход, соединяющий исторический корпус с основным зданием отеля «Бохинь»: в нем теперь размещается экспозиция, подробно рассказывающая об истории виллы.
Альпийское шале «Вилла Мура» в Словении
Фотография © Miran Kambic/ предоставлена Ofis Arhitekti
Альпийское шале «Вилла Мура» в Словении
Фотография © Janez Martincic / предоставлена Ofis Arhitekti
Верхняя часть здания при этом воссоздана из местной ели, подвергшейся карбонизации (особому обжигу с ограниченным доступом кислорода) по старой, традиционной технологии. Такой материал безопасен для окружающей среды, менее подвержен воздействию влаги, практически не гниет, гораздо более стабилен и не требует дополнительной обработки – упомянутый выше павильон в ущелье Винтгар выстроен из такой же древесины.
Альпийское шале «Вилла Мура» в Словении
Фотография © Miran Kambic/ предоставлена Ofis Arhitekti
Альпийское шале «Вилла Мура» в Словении
Фотография © Miran Kambic/ предоставлена Ofis Arhitekti
Важным мотивом стала перфорация ставень, рисунок которой позаимствован у местных стоек для сена. Ну а стилизованные интерьеры шале, в которых настроение задает уже теплое и «живое» дерево, наполнены предметами авторской работы и национальными орнаментами, демонстрирующими богатые ремесленные традиции региона: например, светильники сделаны на заказ из поваленных бурей деревьев.
Альпийское шале «Вилла Мура» в Словении
Фотография © Andrej Gregoric / предоставлена Ofis Arhitekti
Альпийское шале «Вилла Мура» в Словении
Фотография © Andrej Gregoric / предоставлена Ofis Arhitekti
Альпийское шале «Вилла Мура» в Словении
Фотография © Miran Kambic/ предоставлена Ofis Arhitekti
Альпийское шале «Вилла Мура» в Словении
Фотография © Andrej Gregoric / предоставлена Ofis Arhitekti
Альпийское шале «Вилла Мура» в Словении
Фотография © Miran Kambic/ предоставлена Ofis Arhitekti
Альпийское шале «Вилла Мура» в Словении
© Ofis Arhitekti
