Вилла «Мирье»
Фотография © Tomaz Gregoric / предоставлена Ofis Arhitekti
Вилла «Мирье»
Фотография © Tomaz Gregoric / предоставлена Ofis Arhitekti
За столетие своего существования эти парадные виллы часто подвергались перестройкам и в конечном итоге утратили свой изначальный тип. Сложившуюся ситуацию, в которой сразу несколько разновременных исторических пластов неизбежно вступают в сложный диалог, основатели бюро Рок Оман и Шпела Видечник называют «палимпсестом историй». Их целью было не только сохранить уже имеющиеся слои и обеспечить сейсмостойкость виллы, но и включить ее в современность, то есть добавить в «разговор» в качестве полноправного участника еще один слой.
Вилла «Мирье»
Фотография © Tomaz Gregoric / предоставлена Ofis Arhitekti
Чтобы вернуть вилле буржуазный блеск, восстановили богато декорированные фасады с лепным декором и оригинальную ограду. Сохранившиеся оконные рамы отреставрировали, а утраченные (примерно половину) – воссоздали по образцам. Также поступили с латунными ручками, частью светильников и элементами фурнитуры. Пышный сад, конечно же, привели в порядок, как важнейший признак типа виллы как такового.
Вилла «Мирье»
Фотография © Tomaz Gregoric / предоставлена Ofis Arhitekti
Вилла «Мирье»
Фотография © Tomaz Gregoric / предоставлена Ofis Arhitekti
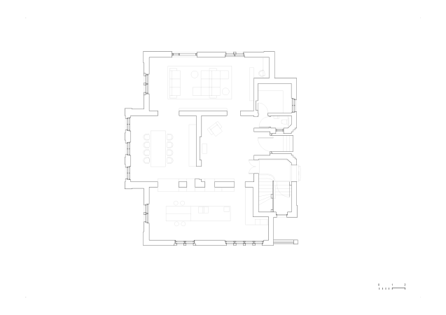
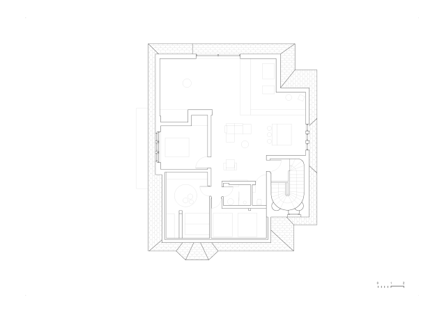
Внутреннюю структуру тоже сохранили, подчеркнув связи и изначальные пропорции помещений. Внизу находятся холл, гостиная, столовая и кухня. На втором этаже обустроены комнаты хозяев виллы, а на третьем размещены гостевые спальни и общественная зона. Соединяет все пространства эффектная лестница, в оформлении которой использован так называемый подпечский известняк, ценившийся еще в античности и часто встречающийся в работах Йоже Плечника. Сохранив максимум внутренней отделки – изразцовые печи в духе Сецессиона, фрески с ангелами художника Максима Гаспари, масонские мотивы вроде циркуля, линейки и чаш для святой воды, декоративные лепные элементы, – архитекторы наполнили интерьеры новой авторской мебелью и светильниками. В этих предметах используются металлические поверхности и соразмерные пространствам простые геометрические формы; именно они и должны создать новый, современный слой.
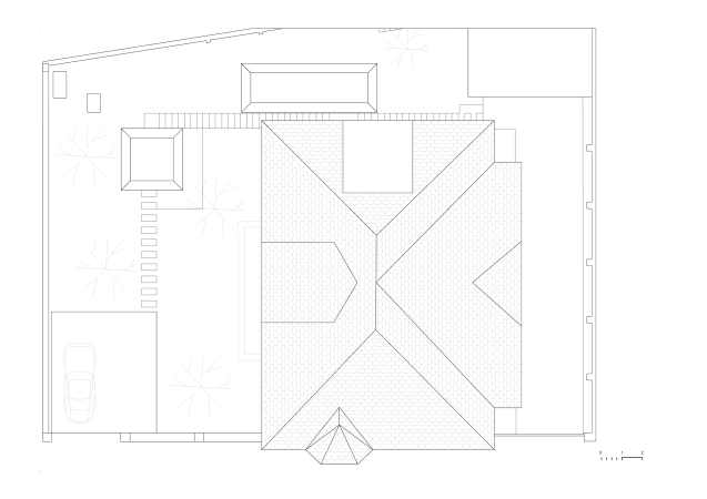
Готовность к новому подчеркивают и два павильона-беседки, пристроенных со стороны бокового и садового фасадов. Один из них связан с интерьером, второй чуть отдален и расположен на месте изначально стоявшего здесь павильона. Легкие белые решетки из круглых стальных профилей толщиной всего 2 см проницаемы для взгляда и напоминают объемный многослойный каркас. У них нерегулярный ритм проемов, что позволяет регулировать уровень проницаемости в зависимости от угла обзора. Кроме того, за счет игры с плотностью расположения прутьев удалось раскрыть интерьеры в сад.
Вилла «Мирье»
© Ofis Arhitekti
