Здание Summit конференц-центра в Сиэтле
Фотография © Adam Hunter / предоставлена LMN Architects
Здание Summit конференц-центра в Сиэтле
Фотография © Adam Hunter / предоставлена LMN Architects
Здание Summit конференц-центра в Сиэтле
Фотография © Adam Hunter / предоставлена LMN Architects
Чтобы ответить на все вызовы и полностью реализовать необходимую функциональную программу, архитекторы местного бюро LMN Architects применили новаторскую схему компоновки здания. Сложная объемная композиция на самом деле легко читается снаружи и представляет собой помещенные друг на друга различные зоны, объединенные остекленным вертикальным атриумом и торжественной скульптурной лестницей вдоль всего западного фасада. Последняя – весьма характерный для LMN Architects прием, который в этом случае считывается еще и как некоторый реверанс в сторону Рема Колхаса и его посольства Нидерландов в Берлине.
Здание Summit конференц-центра в Сиэтле
Фотография © Adam Hunter / предоставлена LMN Architects
Здание Summit конференц-центра в Сиэтле
Фотография © Adam Hunter / предоставлена LMN Architects
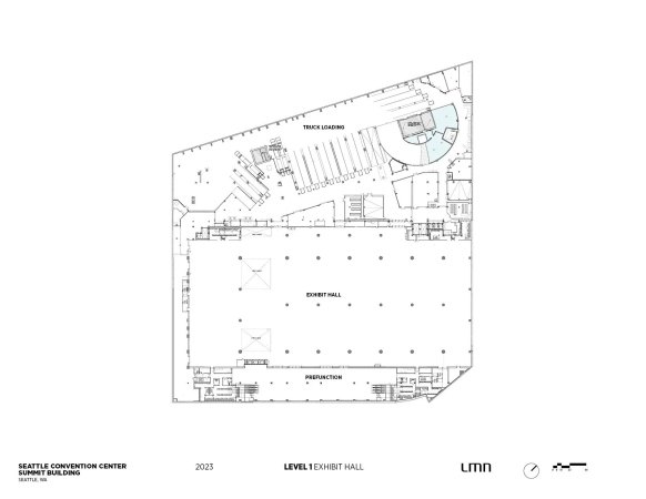
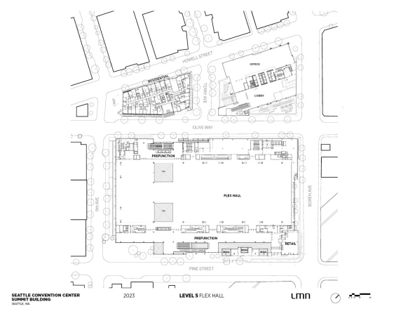
Один из выставочных залов неожиданно расположен в подземном уровне. Первый этаж занимают вестибюль, магазины и парковка. Следующий «слой» занят еще одним гибким выставочным пространством. На уступе его кровли организовали открытую террасу, с которой можно любоваться эффектными видами на город и залив. Верхние уровни несколько меньше, они состоят из двух этажей, занятых разного типа переговорными помещениями.
Здание Summit конференц-центра в Сиэтле
Фотография © Adam Hunter / предоставлена LMN Architects
Здание Summit конференц-центра в Сиэтле
Фотография © Adam Hunter / предоставлена LMN Architects
Венчает всю эту композицию главное пространство всего комплекса – так называемый Бальный зал. Его постепенно повышающийся потолок оформлен 3800 старыми досками, собранными при сносе имевшихся на участке строений. Кроме того, высокая торцевая стена зала полностью застеклена, так что городской вид становится постоянной декорацией для всех мероприятий. Эта полная открытость происходящего в здании, а также точно просчитанные виды, открывающиеся и с лестницы, и со всех уровней почти 70-метрового вертикального атриума, и из некоторых других зон, делают комплекс важнейшим центром общественной жизни города, его витриной. Большую роль в этом играют более 20 современных арт-объектов, заказанных художникам специально для проекта и размещенных как внутри, так и снаружи комплекса.
Здание Summit конференц-центра в Сиэтле
Фотография © Adam Hunter / предоставлена LMN Architects
Конечно же, новый конференц-центр строился в соответствии со всеми требованиями «устойчивой» архитектуры: на кровле установлены солнечные панели общей мощностью 150 кВт, а также организован сбор и повторное использование дождевой воды; внедрена экономичная система капельного орошения зеленых зон; в состав инженерного оборудования включена рекуперационная установка, что позволило снизить затраты энергии и уменьшить выбросы углекислого газа; в отделке используются только безопасные для окружающей среды материалы, включая старое дерево во всех зонах; в конструкциях применен особый тип бетона, производство которого требует меньших энергозатрат. В результате потребление энергии удалось снизить на 30%, а количество необходимой технической воды сократилось в два раза. Все эти меры позволили зданию претендовать не только на сертификат LEED Gold, но и на престижный для северо-запада США водоохранный сертификат Salmon Safe.
Здание Summit конференц-центра в Сиэтле
© LMN Architects
Здание Summit конференц-центра в Сиэтле
© LMN Architects
Здание Summit конференц-центра в Сиэтле
© LMN Architects
Здание Summit конференц-центра в Сиэтле
© LMN Architects
Здание Summit конференц-центра в Сиэтле
© LMN Architects
Здание Summit конференц-центра в Сиэтле
© LMN Architects
Здание Summit конференц-центра в Сиэтле
© LMN Architects
