Центр интерактивного обучения Калифорнийского университета в Санта-Барбаре
Фотография © Patrick Price / предоставлена LMN Architects
Центр интерактивного обучения Калифорнийского университета в Санта-Барбаре
Фотография © Patrick Price / предоставлена LMN Architects
Центр интерактивного обучения Калифорнийского университета в Санта-Барбаре
Фотография © Patrick Price / предоставлена LMN Architects
Центр интерактивного обучения Калифорнийского университета в Санта-Барбаре
Фотография © Patrick Price / предоставлена LMN Architects
Центр интерактивного обучения Калифорнийского университета в Санта-Барбаре
Фотография © Patrick Price / предоставлена LMN Architects
Центр интерактивного обучения Калифорнийского университета в Санта-Барбаре
Фотография © Patrick Price / предоставлена LMN Architects
Центр интерактивного обучения Калифорнийского университета в Санта-Барбаре
Фотография © Patrick Price / предоставлена LMN Architects
Для бюро из Сиэтла LMN Architects именно проекты учебных зданий стали основной специализацией (мы уже писали, например, о колледже бизнеса Уилбур в Университете Клемсона). Аудитории, в которых одновременно могут заниматься до 2000 студентов, архитекторы разместили в двух самостоятельных объемах, а между ними создали многоярусное общественное пространство. Открытые лестницы, мостики и террасы, огороженные перфорированными алюминиевыми панелями, формируют идеальную среду для взаимодействия и общения учащихся разных направлений, исследователей и преподавателей, благо климат позволяет.
Центр интерактивного обучения Калифорнийского университета в Санта-Барбаре
Фотография © Patrick Price / предоставлена LMN Architects
Центр интерактивного обучения Калифорнийского университета в Санта-Барбаре
Фотография © Patrick Price / предоставлена LMN Architects
Центр интерактивного обучения Калифорнийского университета в Санта-Барбаре
Фотография © Patrick Price / предоставлена LMN Architects
Центр интерактивного обучения Калифорнийского университета в Санта-Барбаре
Фотография © Patrick Price / предоставлена LMN Architects
Центр интерактивного обучения Калифорнийского университета в Санта-Барбаре
Фотография © Patrick Price / предоставлена LMN Architects
Центр интерактивного обучения Калифорнийского университета в Санта-Барбаре
Фотография © Patrick Price / предоставлена LMN Architects
Центр интерактивного обучения Калифорнийского университета в Санта-Барбаре
Фотография © Patrick Price / предоставлена LMN Architects
Центр интерактивного обучения Калифорнийского университета в Санта-Барбаре
Фотография © Patrick Price / предоставлена LMN Architects
В это пространство объемы обращены изящными, органических форм линиями фасадов, так что террасы становятся непосредственным продолжением интерьеров. Мягкие изгибы выложены панелями шлифованного бетона, различными по цвету и текстуре. Слоистая, охристых тонов поверхность имитирует популярную в рядовой окружающей застройке кирпичную кладку, а также характерные для Южной Калифорнии геологические слои, создавая впечатление природного каньона.
Центр интерактивного обучения Калифорнийского университета в Санта-Барбаре
Фотография © Patrick Price / предоставлена LMN Architects
Центр интерактивного обучения Калифорнийского университета в Санта-Барбаре
Фотография © Patrick Price / предоставлена LMN Architects
Центр интерактивного обучения Калифорнийского университета в Санта-Барбаре
Фотография © Patrick Price / предоставлена LMN Architects
Центр интерактивного обучения Калифорнийского университета в Санта-Барбаре
Фотография © Patrick Price / предоставлена LMN Architects
Наружные же фасады выложены светло-серыми, почти белыми панелями из долговечного высокотехнологичного бетона (UHPC). Их прорезают узкие вертикальные окна, напоминающие расщелины, которые продолжают тему геологии. На резком сочетании гладких и «холодных» внешних стен с «теплыми» и фактурными внутренними и строится весь образ.
Центр интерактивного обучения Калифорнийского университета в Санта-Барбаре
© LMN Architects
Центр интерактивного обучения Калифорнийского университета в Санта-Барбаре
© LMN Architects
Центр интерактивного обучения Калифорнийского университета в Санта-Барбаре
© LMN Architects
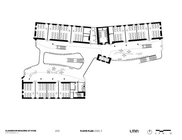
Внутри разместили пять лекционных аудиторий, самая большая из которых вмещает 350 человек, три универсальных пространства для проектной работы и двадцать классов с гибкой планировкой, каждый из которых рассчитан на 30 студентов. Во всех учебных помещениях архитекторам удалось добиться хорошего естественного освещения, а для их оформления тоже использованы характерные природные мотивы. Причем цвета отделки меняются от этажа к этажу, имитируя срез местной породы.
