Государственный музей истории космонавтики им. К.Э.Циолковского.
Предоставлено ГМИК им. К.Э.Циолковского.
Фотография: Анна Лысенко
Количество экспонатов: спутников, кораблей, ракетных двигателей – с годами росло. Они давно не умещались в бархинском музее. Новый музей увеличил площадь экспозиции в пять раз, планируется 1,5 млн посетителей в год; для посетителей здание открылось 12 апреля 2021 года, а 29 апреля состоялось торжественное открытие с участием министра культуры Ольги Любимовой.
История проекта такова. В октябре 2009 года был проведен архитектурный конкурс на расширение музея. Выиграл архитектор Василий Исаев из «Воронежгражданпроекта». Его проект был бережным по отношению к памятнику: здание почти не имеет надземной части, лишь слегка выступает над поверхностью, основное пространство встроено в высокий берег Оки. Но после того как в январе 2017 года Василий Исаев, к сожалению, ушел из жизни, строительство осталось практически без архитектурного надзора. В середине лета 2019 года главным архитектором Калуги стал Алексей Комов. «Музей обратился в город за помощью, чтобы меня как главного архитектора столицы региона приобщить к работе над самым знаковым объектом города, – рассказывает Алексей Комов. – Поэтому, по сути, с 2019 года сектор главного архитектора Калуги по просьбе руководства музея официально помогал курировать архитектурную часть. Что касается вопросов благоустройства территории, тут также были даны все проектные рекомендации и сопровождение. Элементы навигации, стиля геометрии – по этим вопросам мы постоянно консультировали музей, чтобы в результате подрядчики сделали того уровня продукт, который мы в итоге получили».
В том, что новый музей появился и заработал, – большая заслуга директора ГМИК Натальи Абакумовой, которая до этого руководила Новоиерусалимским музеем и имела опыт руководства строительством сложнейших объектов.
Появление Музея космонавтики-2 дало памятнику модернизма новое звучание. Прославленный в многочисленных изображениях фасад бархинского музея обращен к парку. Функционально он не главный, так как вход осуществляется с другой стороны. Он главный по смыслу, однако был не виден посетителям, так как площадь рядом с музеем была не оформлена. Строительство новой очереди ГМИК поставило все на свои места, а благоустройство территории по проекту Алексея Комова и Александра Сафонова позволило проявить весь замысел целиком, связать воедино компоненты ансамбля. Перед парковым фасадом теперь образована площадь. С левой стороны расположен главный вход в музей. Наземный павильон в виде «летающей тарелки» ведет под землю. Сходство довершают ретро-шрифты, торжественность, элемент сакральности, характерный для советских подземных «дворцов».
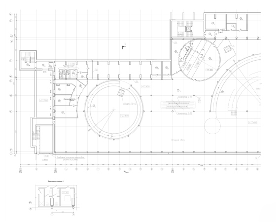
Второй вход – из главного зала старого музея. Надо сказать, что в этой части проект Исаева был скорректирован. Воронежский архитектор предполагал устроить спуск под землю во всю ширину зала. Размах трехъярусной бездны показался руководству чересчур радикальным. В реализованном проекте переход из старого здания в новое есть, но ощутимо более узкий, – спуск по эскалатору, снаружи замаскирован лестницей.
Новый Музей космонавтики поражает посетителя грандиозным светлым пространством: стилистика хайтека, прежде всего открытые конструкции и витражное остекление, а также, безусловно, масштаб – придают интерьеру сходство с аэропортом, что вполне уместно для музея Космонавтики. Спускаясь под землю, не ожидаешь найти там дневной свет, однако он есть: вся стена на высоту трех этажей – укрепленный фермами наклонный стеклянный экран. Это и есть высокий берег Оки, наклон стеклянного экрана вторит естественному склону. Пространство состоит из двух атриумов: большого и малого, который прозвали Лунным двориком из-за выставленного там лунохода.
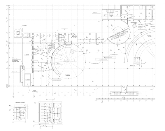
В пространстве музея три уровня. Их пронизывают закрытые цилиндры, внутри которых поместились кинозал, конференц-зал, учебные аудитории и планетарий. Помимо эскалаторов уровни связаны между собой наклонными пандусами, продолжающими тему знаменитых пандусов бархинского музея. В большом атриуме пандусы спускаются зигзагом с третьего уровня на первый, напоминают орбитальные траектории, создают настроение полета и невесомости. Оно подчеркнуто фигурами космонавтов, взбирающихся по столбам-опорам. Вообще наклонный стеклянный экран и уровни, выходящие к нему террасами и платформами, создают очень динамичное архитектурное пространство, что-то вроде каньона. Вполне себе образ мира, исходя из которого можно было бы, пожалуй, сравнить современного человека с космонавтом, вышедшим в открытый информационный космос, где нарушены все законы и сбиты все ориентации.
Очевидно, что пандусы будут иметь успех у детей и взрослых. У пандусов стеклянные ограждения, поэтому движущаяся по ним публика – это тоже своего рода спектакль, который можно наблюдать снизу из атриума. Идея пандусов отчасти выросла из Музея Гуггенхайма Френка Ллойда Райта в Нью-Йорке. Хайтековское пространство Музея космонавтики-2 просматривается насквозь. Зрелищность этого приема заставляет вспомнить завод BMW в Лейпциге авторства Захи Хадид, где конвейер для сборки автомобилей был размещен прямо над головами офисных сотрудников.
В Музее космонавтики экспозиция также тщательно срежиссирована. При спуске через главный вход со стороны площади посетителя встречает скульптура Циолковского, в диагональном полете, на коньках и с зонтиком. Школьный учитель математики, казавшийся безумным мечтателем, был местным «хипстером», разъезжал на велосипеде под зонтиком, катался на коньках по льду реки Яченка, из которой позднее, к 1980-му году сделали водохранилище, на склоне которого теперь стоит музей. И конструировал самодельные ракеты в домике на окраине Калуги. Константин Циолковский – культурный и мифологический герой Калуги, гений места. Таблички «Здесь преподавал Циолковский» висят на десятках калужских домов. В экспозиции Циолковский представлен как герой блокбастера, этакий джедай, мудрец или волшебник. Сквозь оба атриума тянется лента-экран на стеклянной стене, где основоположник космонавтики представлен опять же в диагональном полете, как Бог-Отец на картине Тинторетто, творящий мир в едином творческом акте. На орбите вокруг скульптуры выгравирована знаменитая мотивирующая фраза Циолковского: «Невозможное сегодня станет возможным завтра». Та же фраза периодически возникает на ленточном экране, на котором сменяются разные познавательные видеоролики. Эта лента, подобно упомянутому выше конвейеру, тоже объединяет пространство.
В двух атриумах на трех платформах нового пространства получили, наконец, место великолепные экспонаты Государственного музея космонавтики, которым было тесно в старом здании. Чего тут только нет: спутники, луноходы, ракетные двигатели, скафандры космонавтов, оранжевая капсула – спускаемый аппарат космического корабля «Союз-34», в котором катапультировались космонавты Владимир Ляхов и Валерий Рюмин, с надписями на русском и английском: «Помоги выйти!» и «Человек внутри!». Напротив стоит макет космического корабля «Федерация», а в нижнем ярусе установлен макет знаменитой станции «Мир». В отдельных небольших залах разместились художественные экспозиции, посвященные космонавтике. На стенах цилиндров можно видеть рисунки Циолковского.
Благоустройством площади перед старым музеем занималась команда главного архитектора Калуги Алексея Комова. Здесь появились новые сувенирные павильоны с космическими и авангардными мотивами; инсталляция, посвященная Гагарину «Поехали!» с вырезками из старых газет и фотографиями; памятный знак с барельефом «Калуга космическая»; дорожки, скамейки и газоны. Ракета «Восток», нависающая над Окой, – резервная копия той самой, гагаринской, – была отреставрирована.
Государственный музей истории космонавтики им. К.Э.Циолковского.
Предоставлено ГМИК им. К.Э.Циолковского.
Фотография: Анна Лысенко
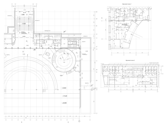
Спуск к реке с фантастическими видовыми точками был обустроен пандусами (причем один из пандусов проложен снаружи здания прямо по стеклянному экрану, так что идущие по нему люди будут видны из интерьера, а сами они смогут заглянуть внутрь здания). На поверхности земли также можно видеть световые фонари и круглую обсерваторию.
Ансамбль с новым Музеем космонавтики и благоустройством преображенной территории получил дополнительное символическое звучание. По меткому наблюдению Алексея Комова, старый музей теперь воспринимается как собор на площади, новый подземный музей – как крипта, ракета – как колокольня, а могила Циолковского – как могила пророка. «Именно в Калуге Циолковский написал свои главные труды, которые легли в основу космонавтики, – подытоживает Алексей Комов. А образ Калуги как колыбели космонавтики выдернул ее из пасторального контекста. Появление первого в мире музея космонавтики в 1967 году, дворца космоса, отличает Калугу от других губернских городов, вроде Твери, Торжка, Рязани или Серпухова».
Возвращаясь к фразе Циолковского «Невозможное сегодня станет возможным завтра», надо сказать, что само осуществление второй очереди музея космонавтики стало, в некотором смысле, ее иллюстрацией. Полностью же цитата звучит так: «Они, смельчаки, герои, проложат первые воздушные тропы трасс: Земля – орбита Луны, Земля – орбита Марса. А еще далее: Москва – Луна, Калуга – Марс. Невозможное сегодня станет возможным завтра».
