[см. 1 номинацию / башни и 5 номинацию / коммерция]
Премию Москвы в области архитектуры вручил мэр города Сергей Собянин 13 июля, тогда же стали известны победители, а праздничное награждение для профессиональной тусовки состоялось вчера. Но мы рассказали пока что только о двух самых многочисленных номинациях: небоскребах (победил Fili Tower ADM architects) и «коммерческой недвижимости» (победила Павелецкая площадь компании Апекс).
Вручение Архитектурной премии Москвы, 14.07.2022. Главный архитектор Москвы Сергей Кузнецов и директор Музея архитектуры Елизавета Лихачева
Фотография: Юлия Тарабарина, Архи.ру
Теперь рассказываем о следующей номинации, тоже сборной – она посвящена одновременно спортивным, культурным и социальным объектам, здесь объединены две школы, один детский сад, один музей и Ледовая арена в Лужниках, проект реконструкции которой разработан ТПО «Прайд». Она-то и победила.
Реконструкция Дворца спорта «Лужники»
© ТПО «Прайд» / предоставлено пресс-службой Москомархитектуры
Реконструкция Дворца спорта «Лужники»
Мастерская
ТПО «Прайд»
Где
Россия, Москва. ул. Лужники, д. 24, стр. 2
Даты
— 2022 / 2022 —
Функция
Спортивный / Спорткомплекс
Дворец спорта расположен в северо-западной части территории Лужников – реконструкция последних лет коснулась ее в наименьшей степени. Согласно отчету сайта mos.ru, сейчас в Лужниках реализовано и строится 22 объекта. В центре – Большая спортивная Арена, реконструированная СПИЧ, в восточной части Дворец водных видов спорта UNK, Центр Ирины Винер Сергея Кузнецова и Прайд, у ТТК достраивается центр Единоборств по проекту, опять же, UNK; за Лужнецким мостом тоже идет интенсивное строительство – а здесь, со стороны Новодевичьего, пока как-то пустовато, не так много пафосных реализаций. Ближе всего к реконструируемому Дворцу спорта строится Ледовый дворец на месте открытого катка «Кристалл» по проекту ПИ Арена, согласованному архитектурным советом Москвы в 2016 году.
Сам дворец спорта построен в 1956 году, а сейчас реконструируется тоже в ледовую арену. Пятно застройки, как сообщают коллеги из ПР, сохраняется, но высота комплекса становится больше – 6 этажей над землей при одном подземном ярусе. Признаться, сложно сказать, где здесь реконструкция, скорее уж мы имеем дело с регенерацией, и то не вполне в параметрах прежней застройки. Приз вручал Александр Асадов и он, как и другие присутствующие на церемонии, отметил брутальность решения нового здания: вместо регулярной пилонады с «кирпичной» облицовкой характерной «сталинской» плиткой в проекте предложена пилонада с шершавой шубой из натурального камня и, к тому же, асимметричная, со сбитым ритмом – этакий Стоунхендж. В этом отличие проекта «Прайда» от симметричной ему на плане территории Лужников реконструкции Дворца водных видов спорта, реализованной UNK по результатом победы в конкурсе – там хотя и произошло значительное расширение объема, но во главу угла был поставлен мотив исходной постройки, а фигуративный рельеф старого дворца был повторен в новом масштабе из фибробетона.
В данном случае над утяжеленной пилонадой нижней части возвышается стеклянный овал фонаря, который будет освещать главный зал Ледовой арены.
Сам дворец спорта построен в 1956 году, а сейчас реконструируется тоже в ледовую арену. Пятно застройки, как сообщают коллеги из ПР, сохраняется, но высота комплекса становится больше – 6 этажей над землей при одном подземном ярусе. Признаться, сложно сказать, где здесь реконструкция, скорее уж мы имеем дело с регенерацией, и то не вполне в параметрах прежней застройки. Приз вручал Александр Асадов и он, как и другие присутствующие на церемонии, отметил брутальность решения нового здания: вместо регулярной пилонады с «кирпичной» облицовкой характерной «сталинской» плиткой в проекте предложена пилонада с шершавой шубой из натурального камня и, к тому же, асимметричная, со сбитым ритмом – этакий Стоунхендж. В этом отличие проекта «Прайда» от симметричной ему на плане территории Лужников реконструкции Дворца водных видов спорта, реализованной UNK по результатом победы в конкурсе – там хотя и произошло значительное расширение объема, но во главу угла был поставлен мотив исходной постройки, а фигуративный рельеф старого дворца был повторен в новом масштабе из фибробетона.
В данном случае над утяжеленной пилонадой нижней части возвышается стеклянный овал фонаря, который будет освещать главный зал Ледовой арены.
Филиал Государственного Эрмитажа на территории бывшего завода ЗИЛ, 2021 г.
© СПИЧ / предоставлено пресс-службой Москомархитектуры
Филиал Государственного Эрмитажа на территории бывшего завода ЗИЛ
Автор
Сергей Чобан
Руководитель авторского коллектива
Игорь ЧленовРуководитель авторского коллектива
Мастерская
Авторский
коллектив
коллектив
Сергей Чобан, Игорь Членов, Антон Чернышев
Где
Россия, Москва. пересечении бульвара Братьев Весниных и улицы Родченко
Даты
— 2021 / 2022 —
Функция
Культурный / Музей
Как известно, одной из ключевых особенностей проекта ЗилАрт, реализуемого в северо-восточной части территории бывшего завода ЗиЛ стала насыщенность городской среды разнообразными функциями – не только общественными бульварами, набережной, магазинами и кафе, то есть вещами, которые сейчас уже воспринимаются в кварталах новой застройки как стандартные – но и сложными, «якорными», сюжетами. Главный из них – музей, московский филиал Эрмитажа; идея присутствия большого ключевого музея фигурировала еще в конкурсной концепции Юрия Григоряна, победившей в 2012 году – впрочем, на том конкурсе участники рассматривали север и юг ЗиЛа вместе, и почти половину (в основном юг) оставляли промышленной и административной функции.
Здание филиала Эрмитажа строится в восточной части ЗилАрта, на границе с Тюфелевой рощей, рядом с жилым домом-«ананасом» ZilArt Diamond от Neutelings Riedijk. С 2015 по 2018 годах проектом музейного здания занималось архитектурное бюро Asymptote, но позже от концепции американских архитекторов заказчик решил отказаться. Разработку новой концепции поручили бюро СПИЧ. В актуальном проекте здание имеет кубическую форму, стеклянные фасады решены в виде крупной сетки скошенных по диагонали трапеций из металлических лент медного оттенка. В отделке интерьеров планируется использовать натуральное дерево. На пятом этаже – открытая терраса с деревянной перголой.
Здание филиала Эрмитажа строится в восточной части ЗилАрта, на границе с Тюфелевой рощей, рядом с жилым домом-«ананасом» ZilArt Diamond от Neutelings Riedijk. С 2015 по 2018 годах проектом музейного здания занималось архитектурное бюро Asymptote, но позже от концепции американских архитекторов заказчик решил отказаться. Разработку новой концепции поручили бюро СПИЧ. В актуальном проекте здание имеет кубическую форму, стеклянные фасады решены в виде крупной сетки скошенных по диагонали трапеций из металлических лент медного оттенка. В отделке интерьеров планируется использовать натуральное дерево. На пятом этаже – открытая терраса с деревянной перголой.
Ссылки
Школа в «Садовых Кварталах»
© UNK
Школа «Новый взгляд» в «Садовых Кварталах»
Автор
Мастерская
Авторский
коллектив
коллектив
UNK project: Юлий Борисов, Павел Култышев, Дмитрий Захаров
Умная школа: Марк Сатран, Константин Серегин
Storaket: Нарбэ Бедроссян, Меружан Минасян, Нарек Нерсисян, Сона Манукян, Марианна Саркисян, Лилит Тадевосян
Умная школа: Марк Сатран, Константин Серегин
Storaket: Нарбэ Бедроссян, Меружан Минасян, Нарек Нерсисян, Сона Манукян, Марианна Саркисян, Лилит Тадевосян
Где
Россия, Москва. ул. Усачева
Даты
4.2020 — 6.2020 / 2021 — 9.2024
Функция
Образование и наука / Школа
Три следующих здесь по порядку здания – школьно-образовательные.
Проект UNK занял второе место в конкурсе 2020 года, который можно без преувеличения назвать самым обсуждаемым в профессиональной среде за последние 2-3 года. Он утвержден Москомархитектурой в октябре 2021 года. Оператором школы выступает МГИМО, а «технологическую», то есть функциональную часть проекта, отвечающую за воплощение в здании современных образовательных методик, для данного проекта разработала «Умная школа» – девиз их программы Strong knowledge – soft power. Прозрачная консоль-хаб связывает воедино классы начальной, средней и старшей школы и предполагает до 30 вариантов трансформации под различные сценарии. Снаружи консоли вторит лестница – «зеленый холм», которая спускается к склону пруда «Садовых кварталов».
Проект UNK занял второе место в конкурсе 2020 года, который можно без преувеличения назвать самым обсуждаемым в профессиональной среде за последние 2-3 года. Он утвержден Москомархитектурой в октябре 2021 года. Оператором школы выступает МГИМО, а «технологическую», то есть функциональную часть проекта, отвечающую за воплощение в здании современных образовательных методик, для данного проекта разработала «Умная школа» – девиз их программы Strong knowledge – soft power. Прозрачная консоль-хаб связывает воедино классы начальной, средней и старшей школы и предполагает до 30 вариантов трансформации под различные сценарии. Снаружи консоли вторит лестница – «зеленый холм», которая спускается к склону пруда «Садовых кварталов».
Детский сад «Времена года». Вид сверху со стороны главного входа
© Сити-Арх
Детский сад «Времена года»
Автор
Мастерская
Авторский
коллектив
коллектив
Руководитель авторского коллектива: А.В. Лукомский
Авторы: А.В. Лукомский, Н.В Лукомская, А.В. Попов, А.А. Городнова
Авторы: А.В. Лукомский, Н.В Лукомская, А.В. Попов, А.А. Городнова
Где
Россия, Москва. поселение Сосенское, пос. Коммунарка
Даты
12.2018 — 6.2019 / 2021 —
Функция
Образование и наука / Детский сад
Кажется, это единственный проект в подборке, у которого нет предыстории и предшественников. Детский сад строится по проекту АБ Сити-Арх в Коммунарке, на территории крупного ЖК «Скандинавия» девелопера А101, и развивает принципы «новой образовательной среды», заданные как стандарт для всех многочисленных образовательных учреждений комплекса – в общей сложности зданий планируется около 12, пять уже построены. Предложенная концепция современного образовательного пространства оказалась очень созвучна архитектором, а проектирование и реализация в рамках крупного девелоперского проекта открыла больше возможностей, чем это как правило бывает в рамках госпрограмм. Авторы сделали ставку на создание гибкого трансформируемого пространства с многофункциональным ядром-шарниром двухсветного игрового атриума.
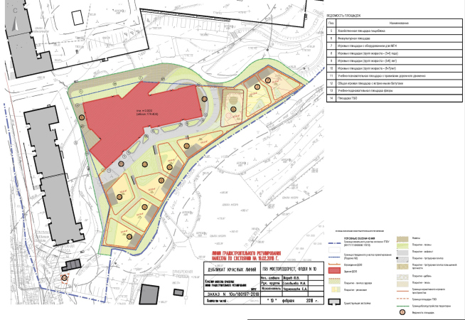
Общеобразовательная школа на 550 мест
© Градостроительный институт «Мирпроект» / предоставлено пресс-службой Москомархитектуры
Общеобразовательная школа на 550 мест
Мастерская
Градостроительный институт «Мирпроект»
Авторский
коллектив
коллектив
Руководитель: А.П. Левенкова
ГАП: С.В. Чегодаева
ГАП (до июня 2021 г.): А.С. Бавыкин
ГИП: Э.Р. Яруллин
Главный конструктор проекта: И.Ю. Тарабара
Ведущий архитектор BIM: Д.С. Дудаков
Ведущий архитектор: Д.Р. Муслимова, К.А. Алоян
ГАП: С.В. Чегодаева
ГАП (до июня 2021 г.): А.С. Бавыкин
ГИП: Э.Р. Яруллин
Главный конструктор проекта: И.Ю. Тарабара
Ведущий архитектор BIM: Д.С. Дудаков
Ведущий архитектор: Д.Р. Муслимова, К.А. Алоян
Где
Россия, Москва. Бескудниковский район, мкр. 6, корп. 16
Даты
2021 — 2022 /
Функция
Образование и наука / Школа
Проект школы за четвертым московским кольцом, недалеко от метро Селигерская, тоже имеет предысторию, но небольшую. Он разработан МНИИТЭП и утвержден Москомархитектурой в 2017 году; здание начали строить, но не завершили. Его особенность – круглый объем на «ножках», размещенный в створе двух крыльев, поставленных под углом 90° друг к другу. К цилиндрическом объеме планировалось разместить: актовый зал на 330 мест на 3 этаже и малый спортзал и зал хореографии на 2 этаже.
Новый вариант разработан Градостроительным институтом «Мирпроект», он учитывает сложившиеся объемно-планировочные решения – здание почти построено, но решен в монохроме. Сейчас близкое к завершению здание отличается не желтыми, как у МНИИТЭПа, а ярко-красными фасадами; интересно, каким будет результат после завершения строительства.
Новый вариант разработан Градостроительным институтом «Мирпроект», он учитывает сложившиеся объемно-планировочные решения – здание почти построено, но решен в монохроме. Сейчас близкое к завершению здание отличается не желтыми, как у МНИИТЭПа, а ярко-красными фасадами; интересно, каким будет результат после завершения строительства.
