RSS
Музей «Коллекция»
Фотография © Андрей Белимов-Гущин / предоставлена АБ СПИЧ

Музей «Коллекция»

информация:

  • статус
    реализовано
  • даты
    2021 / 2022 — 10.2025
  • region= area= address=пересечении бульвара Братьев Весниных и улицы Родченко country_t=Россия city_t=Москва
    место
    Москва пересечении бульвара Братьев Весниных и улицы Родченко
  • координаты
    55.697021, 37.639310
  • функция
    Культурный / Музей
  • общая площадь
    12 000 м2
Сергей Чобан
Игорь Членов
СПИЧ

авторский коллектив

Сергей Чобан, Игорь Членов, Антон Чернышев, Алексей Ильин, Алина Гарновская


другие названия проекта
Филиал Государственного Эрмитажа на территории бывшего завода ЗИЛ

награды:

    Номинант Архитектурной премии Москвы 2022 года
Музей «Коллекция»
Фотография © Андрей Белимов-Гущин / предоставлена АБ СПИЧ

Архи.ру об этом объекте:

21.11.2025

Зодчество 2025: победители

Не прошло и месяца, а мы публикуем полный список победителей Зодчества. Сильно выступил, как всегда, Петербург – и даже московскому музею Коллекция дали серебро. Среди школьных зданий лидирует ATRIUM и гимназия имени Примакова от Студии 44. Кстати! В этом году наконец вручили «Татлин», награду за проект; что не может не радовать.

Вкратце мы о победителях уже рассказывали: главную премию взял Театр Камала, достаточно предсказуемый победитель; далее как впрочем, уже давно повелось по Татлину и золоту лидируют представители Петербурга, Головин&Шретер и Студия 44. Зодче...   читать дальше

другие тексты Архи.ру:

Музей «Коллекция»
Фотография © Андрей Белимов-Гущин / предоставлена АБ СПИЧ

описание:

Информация от Мосокмархитектуры. 29.09.2021
Согласована архитектурная концепция здания московского филиала Эрмитажа на территории бывшей промзоны ЗИЛ. Об этом сообщил заместитель мэра Москвы в Правительстве Москвы по вопросам градостроительной политики и строительства Андрей Бочкарёв.
 
«Согласована архитектурная концепция здание московского филиала Эрмитажа, которое расположится на территории бывшей промзоны ЗИЛ. Фасады «здания-куба» будут представлять собой сетку из металлических конструкций, стилизованных под медь», – рассказал Андрей Бочкарёв.

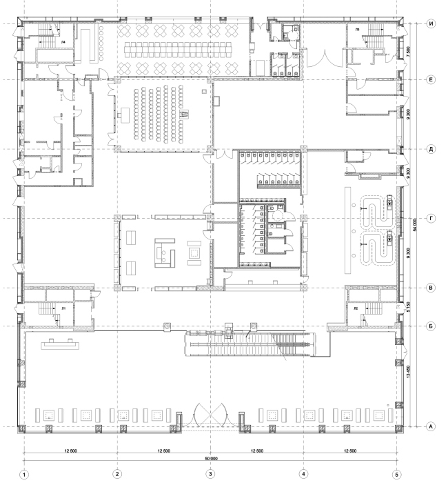
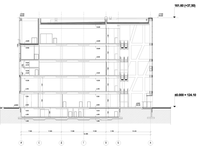
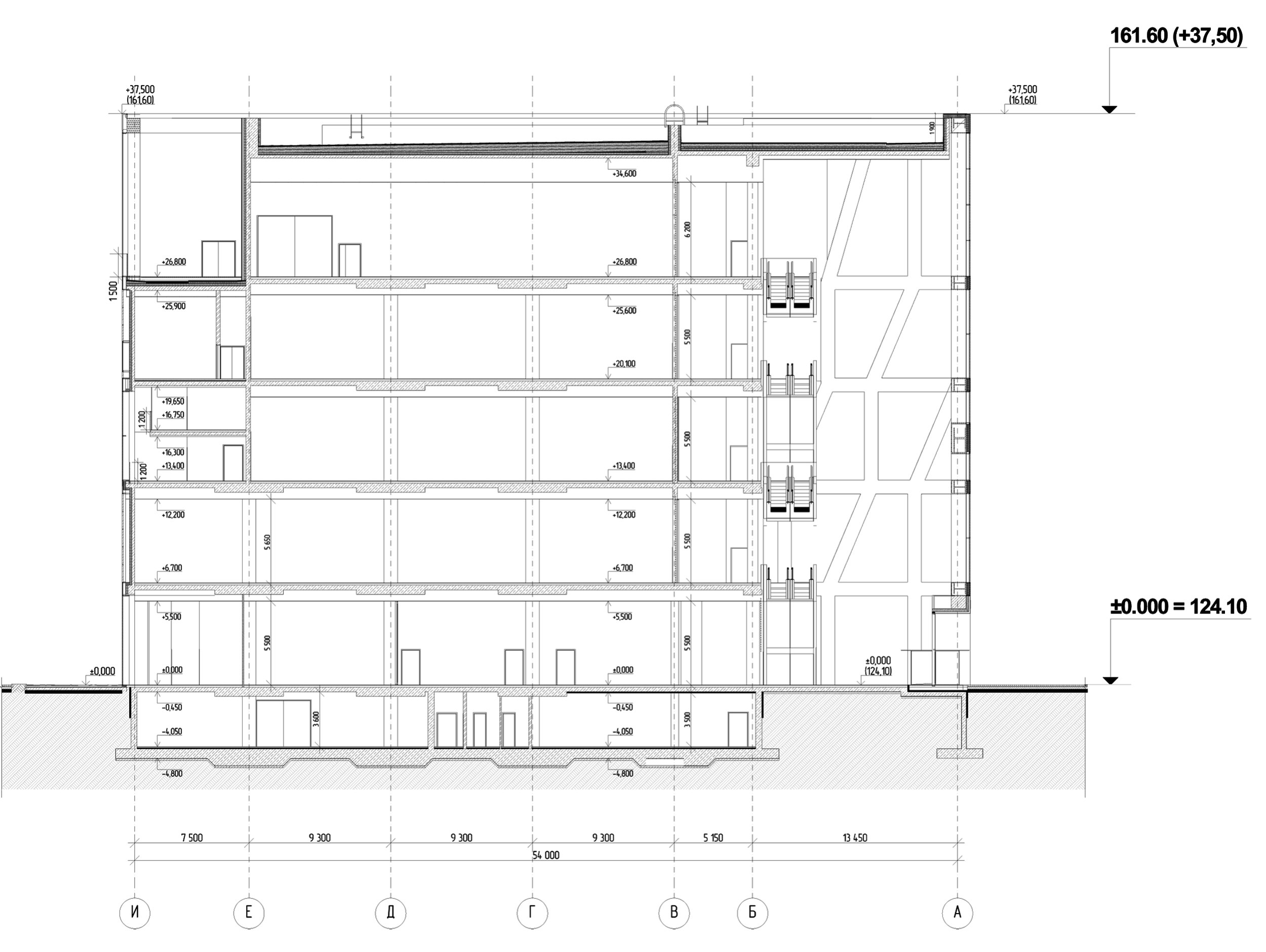
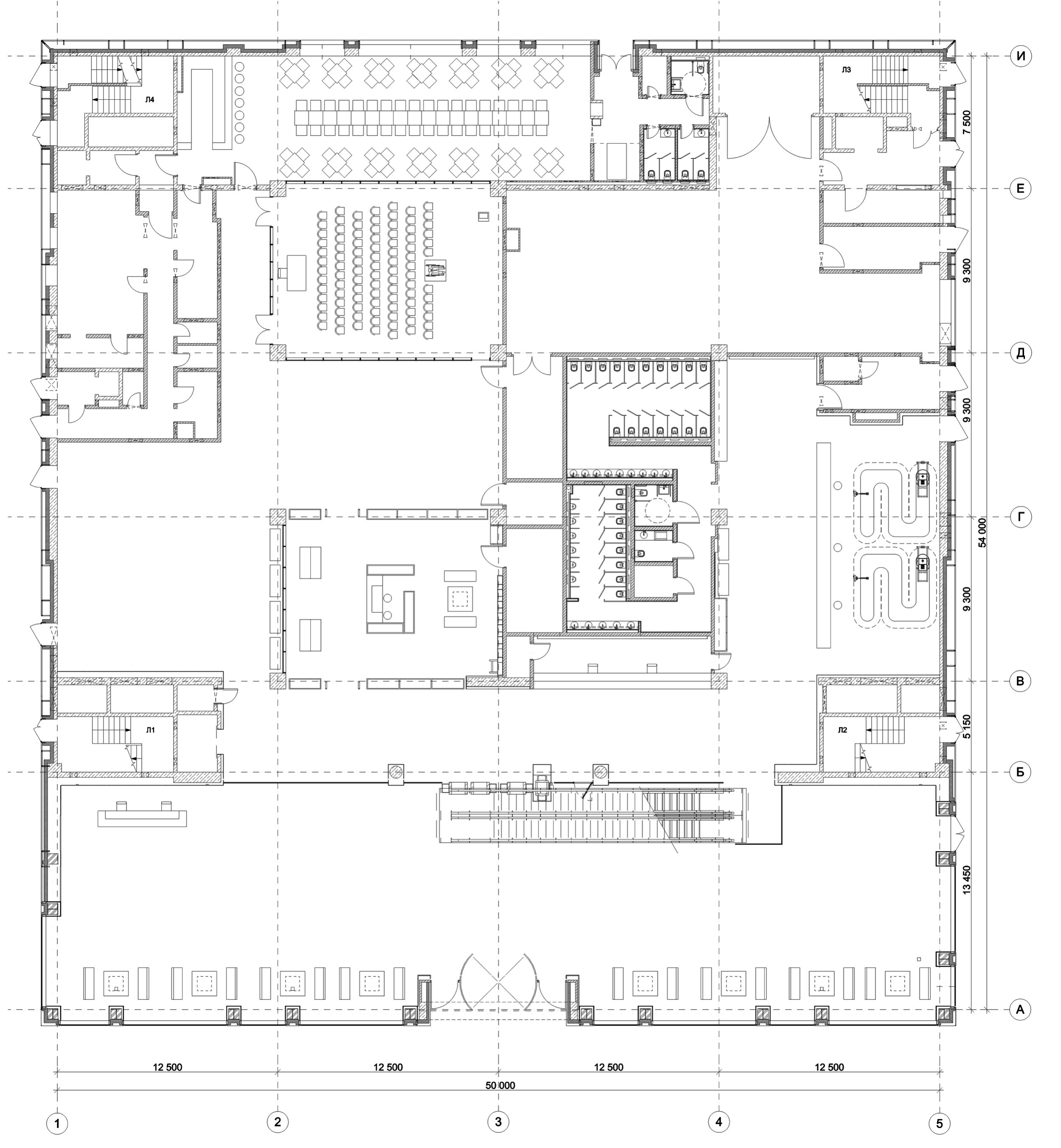
По словам заместителя мэра, общая площадь комплекса составит порядка 12 тыс. кв. метров.

«Музей «Эрмитаж-Москва» построят на пересечении бульвара Братьев Весниных и улицы Родченко. Также один из фасадов выходит на улицу Архитектора Леонидова и парк «Тюфелева роща», – уточнил Андрей Бочкарёв.

Как отметил главный архитектор Москвы Сергей Кузнецов, здание музея представляет собой кубический объем, обернутый в закольцованную трапециевидную сетку, выполненную из металлических кассет «под медь».

«К нему пристроена одноэтажная галерея. Внутреннюю отделку залов решено выполнить из натурального дерева, с включениями бетона, стекла и элементов из нержавеющей стали. На пятом этаже в зоне открытой террасы предусмотрена пергола из деревянных конструкций; остальные террасы, распределенные по периметру здания, выполнят из стальных конструкций», – уточнил Сергей Кузнецов.

В музее разместятся выставочные залы, ресторан, офисные и общественные пространства, а также паркинг в подземном уровне. Сразу на входе посетители будут попадать в остекленное пространство с многоярусными антресолями, в котором предполагается размещать крупногабаритные экспонаты. Из демонстрационного зала можно плавно попасть в функциональную часть, где расположится ресепшн, гардероб, магазин, конференц-зал, интерактивная зона и ресторан. Этажи со второго по пятый также займут выставочные залы.

Ресторан будет иметь индивидуальный интерьер: стены и колонны выполнят из бетона, с отделкой металлическими кассетами «под медь», на потолке будет сформирован узор из деревянных элементов.

Напомним, что старт проекту «Эрмитаж-Москва» был дан в марте 2015 года, когда руководителями музея и ЛСР был подписан соответствующий протокола о намерениях. 
Музей «Коллекция»
Фотография © Андрей Белимов-Гущин / предоставлена АБ СПИЧ
Музей «Коллекция»
Фотография © Андрей Белимов-Гущин / предоставлена АБ СПИЧ
Музей «Коллекция»
Фотография © Андрей Белимов-Гущин / предоставлена АБ СПИЧ
Музей «Коллекция»
Фотография © Андрей Белимов-Гущин / предоставлена АБ СПИЧ
Музей «Коллекция»
Фотография © Андрей Белимов-Гущин / предоставлена АБ СПИЧ
Музей «Коллекция»
Фотография © Андрей Белимов-Гущин / предоставлена АБ СПИЧ
Музей «Коллекция»
Фотография © Андрей Белимов-Гущин / предоставлена АБ СПИЧ
Музей «Коллекция»
Фотография © Андрей Белимов-Гущин / предоставлена АБ СПИЧ
Музей «Коллекция»
Фотография © Андрей Белимов-Гущин / предоставлена АБ СПИЧ
Музей «Коллекция»
Фотография © Андрей Белимов-Гущин / предоставлена АБ СПИЧ
Музей «Коллекция»
Фотография © Андрей Белимов-Гущин / предоставлена АБ СПИЧ
Музей «Коллекция»
Фотография © Андрей Белимов-Гущин / предоставлена АБ СПИЧ
Музей «Коллекция»
Фотография © Андрей Белимов-Гущин / предоставлена АБ СПИЧ
Музей «Коллекция»
Фотография © Андрей Белимов-Гущин / предоставлена АБ СПИЧ
Музей «Коллекция»
Фотография © Андрей Белимов-Гущин / предоставлена АБ СПИЧ
Музей «Коллекция»
Фотография © Андрей Белимов-Гущин / предоставлена АБ СПИЧ
Музей «Коллекция»
Фотография © Андрей Белимов-Гущин / предоставлена АБ СПИЧ
Музей «Коллекция»
Фотография © Андрей Белимов-Гущин / предоставлена АБ СПИЧ
Музей «Коллекция»
Фотография © Андрей Белимов-Гущин / предоставлена АБ СПИЧ
Музей «Коллекция»
Фотография © Андрей Белимов-Гущин / предоставлена АБ СПИЧ
Музей «Коллекция»
Фотография © Андрей Белимов-Гущин / предоставлена АБ СПИЧ
Музей «Коллекция»
Фотография © Андрей Белимов-Гущин / предоставлена АБ СПИЧ
Музей «Коллекция»
Фотография © Андрей Белимов-Гущин / предоставлена АБ СПИЧ
Музей «Коллекция»
Фотография © Андрей Белимов-Гущин / предоставлена АБ СПИЧ
Музей «Коллекция»
Фотография © Андрей Белимов-Гущин / предоставлена АБ СПИЧ
Музей «Коллекция»
Фотография © Андрей Белимов-Гущин / предоставлена АБ СПИЧ
Музей «Коллекция»
Фотография © Андрей Белимов-Гущин / предоставлена АБ СПИЧ
Музей «Коллекция»
Фотография © Андрей Белимов-Гущин / предоставлена АБ СПИЧ
Музей «Коллекция»
Фотография © Андрей Белимов-Гущин / предоставлена АБ СПИЧ
Музей «Коллекция»
Фотография © Андрей Белимов-Гущин / предоставлена АБ СПИЧ
Музей «Коллекция»
Фотография © Андрей Белимов-Гущин / предоставлена АБ СПИЧ
Музей «Коллекция»
Фотография © Андрей Белимов-Гущин / предоставлена АБ СПИЧ
Музей «Коллекция»
Фотография © Андрей Белимов-Гущин / предоставлена АБ СПИЧ
Музей «Коллекция»
© АБ СПИЧ
Музей «Коллекция»
© АБ СПИЧ
Музей «Коллекция»
© АБ СПИЧ
Филиал Государственного Эрмитажа на территории бывшего завода ЗИЛ, 2021 г.
© СПИЧ / предоставлено пресс-службой Москомархитектуры
Филиал Государственного Эрмитажа на территории бывшего завода ЗИЛ, 2021 г.
© СПИЧ / предоставлено пресс-службой Москомархитектуры
Филиал Государственного Эрмитажа на территории бывшего завода ЗИЛ, 2021 г.
© СПИЧ / предоставлено пресс-службой Москомархитектуры
Филиал Государственного Эрмитажа на территории бывшего завода ЗИЛ, 2021 г.
© СПИЧ / предоставлено пресс-службой Москомархитектуры

Архитекторы – партнеры Архи.ру:

  • Андрей Асадов
  • Зураб Басария
  • Сергей Чобан
  • Дмитрий Ликин
  • Энди Сноу
  • Анна Иванова
  • Александр Самарин
  • Юлия Солдатенкова
  • Сергей Кузнецов
  • Андрей Михайлов
  • Татьяна Гук
  • Александр Котенков
  • Илья Машков
  • Татьяна Зульхарнеева
  • Василий Крапивин
  • Григорий Мустафин
  • Александр Асадов
  • Анастасия Абашева
  • Вера Бутко
  • Алексей Гинзбург
  • Николай Переслегин
  • Владимир Плоткин
  • Полина Воеводина
  • Екатерина Кузнецова
  • Андрей Гнездилов
  • Михаил Канунников
  • Евгений Подгорнов
  • Андрей Романов
  • Виталий Лутц
  • Всеволод Медведев
  • Антон Надточий
  • Евгений Зеленов
  • Дмитрий Буш
  • Александр Скокан
  • Георгий Трофимов
  • Степан Липгарт
  • Николай Кикава
  • Никита Явейн
  • Игорь Членов
  • Антон Лукомский
  • Григориос Гавалидис
  • Олег Шапиро
  • Иван Кожин
  • Юлий Борисов
  • Станислав Белых
  • Сергей Труханов
  • Ерлан Бекмухамедов
  • Елена Пучкова
  • Валерий Каняшин
  • Михаил Давыдов
  • Дмитрий Остроумов
  • Раис Баишев
  • Дмитрий Сухов
  • Игорь Шварцман
  • Даниил Лоренц
  • Сергей Никешкин
  • Евгений Новосадюк
  • Марина Егорова
  • Антон Яр-Скрябин
  • Владислав Андреев
  • Роман Леонидов
  • Наталья Сидорова
  • Олег Мединский
  • Валерий Лукомский
  • Сергей Скуратов
  • Константин Ходнев
  • Павел Андреев
  • Алексей Орлов
  • Андрей Чуйков
  • Наталия Шилова
  • Сергей Переслегин
  • Ростислав Цайзер
  • Юлия Тряскина
  • Александра Кузьмина
  • Тимур Абдуллаев
  • Екатерина Абдуллаева
  • Маргарита Авдышева
  • Левон Айрапетов
  • Александр Аношкин
  • Алексей Афоничкин
  • Владислав Бек-Булатов
  • Антон Белов
  • Александр Бровкин
  • Татьяна Бузулукова
  • Петр Васильев
  • Алина Георгиевская
  • Павел Гордеев
  • Илья Гринберг
  • Никита Демидов
  • Никита Дергунов
  • Наталья Жилкина
  • Алексей Зародов
  • Екатерина Зырина
  • Алексей Ильин
  • Дарья Ильина
  • Олег Карлсон
  • Алексей Кибкало
  • Анна Куликова
  • Алексей Курков
  • Евгений Кутай
  • Мария Кутай
  • Антон Ладыгин
  • Дмитрий Лапин
  • Екатерина Ляпунова
  • Николай Макаров
  • Сергей Марков
  • Станислав Михаловский
  • Олеся Могилевская
  • Мария Николаева
  • Виктор Перов
  • Алексей Полищук
  • Роман Пономарёв
  • Валерия Преображенская
  • Виктория Раубо
  • Василий Рыбаков
  • Мария Салех
  • Александр Стариков
  • Илья Уткин
  • Дмитрий Шурыгин
  • Олег Шурыгин

Проект из каталога (случайный выбор)

Постройки и проекты (новые записи):

  • Конкурс на прибрежные кварталы района ALIA
  • Частный жилой дом
  • Речной вокзал в Твери. Новое здание
  • Pop-up библиотека в Бухаре
  • Мультибрендовый магазин PlePle
  • К-30. Летняя веранда легендарного клуба
  • Клубный дом Eden
  • МОП проекта Мангазея НАЗАРЕ
  • Офисный комплекс в Георгиевском переулке

Новости российской архитектуры: