Границы проектирования. Сокольническая площадь
© Megabudka
Прежде всего новое благоустройство понадобилось не исходя из абстрактных планов по украшению города, а потому что на площади сооружают станцию «Сокольники» Большого кольца московского метро. Ее рабочее название «Стромынка», проект, победивший в конкурсе и реализуемый сейчас, разработан MAParchitects. Строят открытым способом прямо под Сокольнической площадью, иными словами, площади, которую архитекторы предпочитают называть бульваром, пока что временно не существует, всё раскопано. Строители увезли оттуда и обещали сохранить 221 одну липу; архитекторы не верят в возможность пересадки деревьев «столь почтенного возраста», но считают липы важной частью идентичности места, и в любом случае предлагают восстановить четыре аллеи, высадив как можно больше деревьев высотой 5-7 метров, т.е. достаточно больших, надо думать примерно таких, какие «Стрелка» высадила на Садовом кольце, может быть, чуть меньше, но не тонких саженцев.
Спланировать аллеи оказалось не просто: часть места занята венткиосками будущей станции метро, нормативный отступ от которых – 25 м – преодолим через спец-тех-условия, но базовый отступ от фундаментов шириной 5 м все равно остается. Примерно посередине бульвара новая станция метро из-за неглубокого залегания подходит к поверхности так близко, что деревья в этом месте посадить тоже нельзя – в итоге в нескольких местах в липовых аллеях образовались лакуны. Но даже их архитекторы смогли несколько уменьшить, приподняв там, где это потребовалось, деревья на полметра над мощением.
Для того, чтобы уместить четыре ряда деревьев и устроить дополнительные проходы, которые расширили пешеходную часть бульвара с 16 до 22 м, архитекторы предложили для крайних боковых рядов приподнятый ступенчатый газон-горку с волнистым краем и скамейками в основании. Он должен располагать к отдыху и прогулкам: если по центральной аллее можно пробежаться в нужном направлении, то здесь – брести, разглядывая растения (их состав еще не определен) и присаживаясь на скамейки.
В боковых аллеях, действительно, образуется своеобразное «парковое» пространство, насыщенное и располагающее к размеренному созерцанию.
Сокольническая площадь
© Megabudka/Предоставлено пресс-службой Москомархитектуры
Фонари выбрали похожие на те, которые были на площади в послевоенное время, но дополнили их «развесистыми» дугообразными.
Но, безусловно, главный, самый пластичный элемент проекта, то что делает его заметным и ярким, и что ни в коем случае не хочется потерять в процессе московской реализации – это мощение красным клинкером.
Сокольническая площадь
© Megabudka/Предоставлено пресс-службой Москомархитектуры
Архитекторы «Мегабудки» набросили его на площадь как подобие ковра, окутав кирпичом не только землю под ногами, но и будки венткамер, и объем туалета. На земле будет крупный полнотелый клинкер, на вертикальных поверхностях похожая на него клинкерная плитка, но важно лишь, что выглядеть они должны единообразно – как будто поверхность вспучилась и стволы необходимых объемов выросли, как грибы из-под асфальта, в той лишь разницей, что «ковер» очень лоялен к формам, облегает их аккуратно, безо всяких сладок и сломов. Очень интересный эффект, пространство обещает быть вполне футуристическим, своего рода кирпичной скульптурой, теплой, из-за кирпича по-своему консервативной, но привлекательной прежде всего свежестью формы, основанной на перетекании мостовой в стены.
Это главный сюжет, авторы подошли в нему максимально тщательно. Прорисовали варианты кладки кирпича, оговорившись, что пестро не будет, потому что тон – единый красный. Привели в пример кирпичное мощение «в елочку», восходящее к XIX веку и найденное на московских улицах в процессе работ по реновации. Перечислили известные здания из красного кирпича, в округе их много, сто лет назад она была промышленной, начиная со знаменитой каланчи. Подписали с авторами проекта станции «Стромынка», MAParchitects, договоренность, в которой те признали целостное решение бульвара и отдали форму венткиосков на усмотрение коллег из Megabudka. И наконец, привели главное знаковое обоснование – ветка метро-то «красная».
Перечислили достоинства клинкера: не бьется, сами кололи в мастерской, с трудом раскололи, от отличие от бетонной плитки; влагоустойчив, красив. Нарисовали эффектный вид широкой главной аллеи, где кирпич блестит под ногами, переливаясь как закатное небо.
Сокольническая площадь
© Megabudka/Предоставлено пресс-службой Москомархитектуры
Почему я тут дважды повторяю про «не хочется потерять».
Дело в том, что на «Активном гражданине» открыто голосование, которое предлагает выбрать между кирпичным мощением и тремя вариантами «бежевой плитки», нарисованными по нисходящей к варианту, где венткиоски вообще не декорируются. Превосходство первой версии вроде бы очевидно, но уже под статьей архитекторов, где все описано еще подробнее, чем здесь, развернулась нешуточная битва – есть жители Сокольников, которые предпочитают «сделать все как было», вот прямо до зеленых заборчиков по бокам. Так вот, хотелось бы призвать читателей голосовать за первый вариант. Честное слово, он намного лучше и только он даст интересную площадь – произведение искусства, – вместо стандартного благоустройства, которого в городе уже и так немало.
Увы, кое-что проект уже потерял в процессе доработки. К примеру, фонтан на выходе из павильона метро.
Фонтан. Отменен. Сокольническая площадь
© Megabudka/Предоставлено пресс-службой Москомархитектуры
Или качели. Не знаю, какому снобу не нравятся качели на Триумфальной, но позволю заметить – заняты они постоянно. Ну почему без качелей? Нет ответа.
Качели. Отменены
© Megabudka
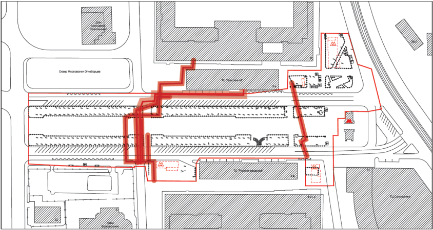
Сейчас также, по-видимому, идет обсуждение транспортной схемы: ее более ранний вариант предполагал меньше парковок и остановки общественного транспорта на внутреннем контуре площади, что безопаснее.
Первоначальная транспортная схема, с меньшим количеством парковок и остановками общественного транспорта на внутреннем контуре площади. Сокольническая площадь
© Megabudka
Сокольническая площадь
© Megabudka/Предоставлено пресс-службой Москомархитектуры
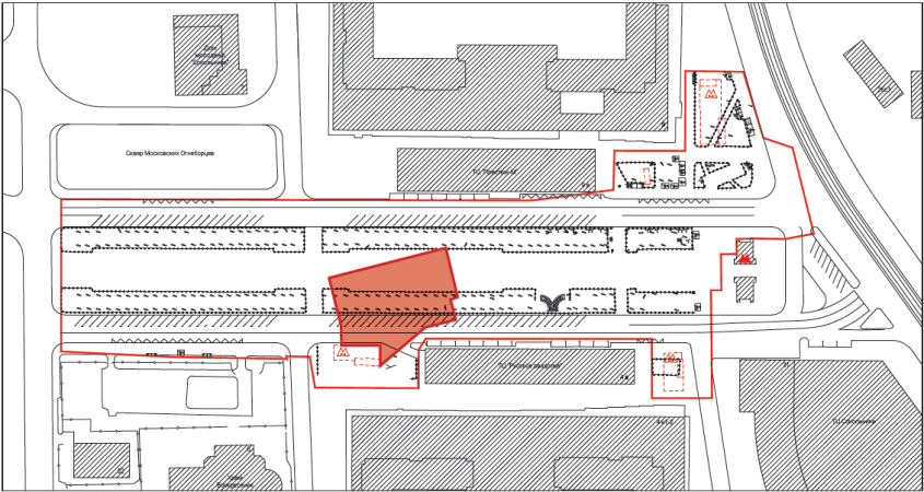
И наконец, проект потерял часть функций, первоначальная программа была более насыщенной.
Первоначальная схема функций; сокращена. Сокольническая площадь
© Megabudka
Почему-то отменили даже предложенные поначалу внешние писсуары, удобный элемент городского благоустройства, антивандальный, позволяющий сохранить город чистым. Тут уже хочется сказать что-то словами профессора Преображенского, но не будем.
Сокольническая площадь
© Megabudka
Лучше покажем еще пару видов «кирпичной» площади и напомним, где в Москве можно найти мостовые из красного клинкера – вокруг домов Сергея Скуратова на улице Бурденко и в Тессинском переулке. Там можно пройтись и почувствовать, как оно ощущается под ногами.
Сокольническая площадь
© Megabudka/Предоставлено пресс-службой Москомархитектуры
