В 2005 году на улице Климашкина, в глубине квартала, по проекту бюро «Остоженка» возвели жилой дом, архитектура которого вроде бы целиком отвечает философии средового подхода и в то же время исполнена иронии в отношении этого самого средового подхода. Речь о жилом комплексе «Панорама» Александра Скокана и Валерия Каняшина.
Авторы по своему обыкновению старались «говорить» в пространстве города шепотом, быть максимально незаметными, но вместе с тем категорически не желали перегораживать вид от улицы Пресненский Вал на католический храм Непорочного Зачатия Пресвятой Девы Марии на Малой Грузинской улице. Последнее, кстати, понятно. Пятью годами ранее по проекту тех же Скокана и Каняшина на соседнем участке возвели многоквартирный жилой дом из кирпича (Климашкина, 19), в массиве которого архитекторы волевым усилием пробили арку высотой в 13 этажей – опять-таки ради сохранения визуальной оси «Пресненский Вал – храм». Зря что ли старались?
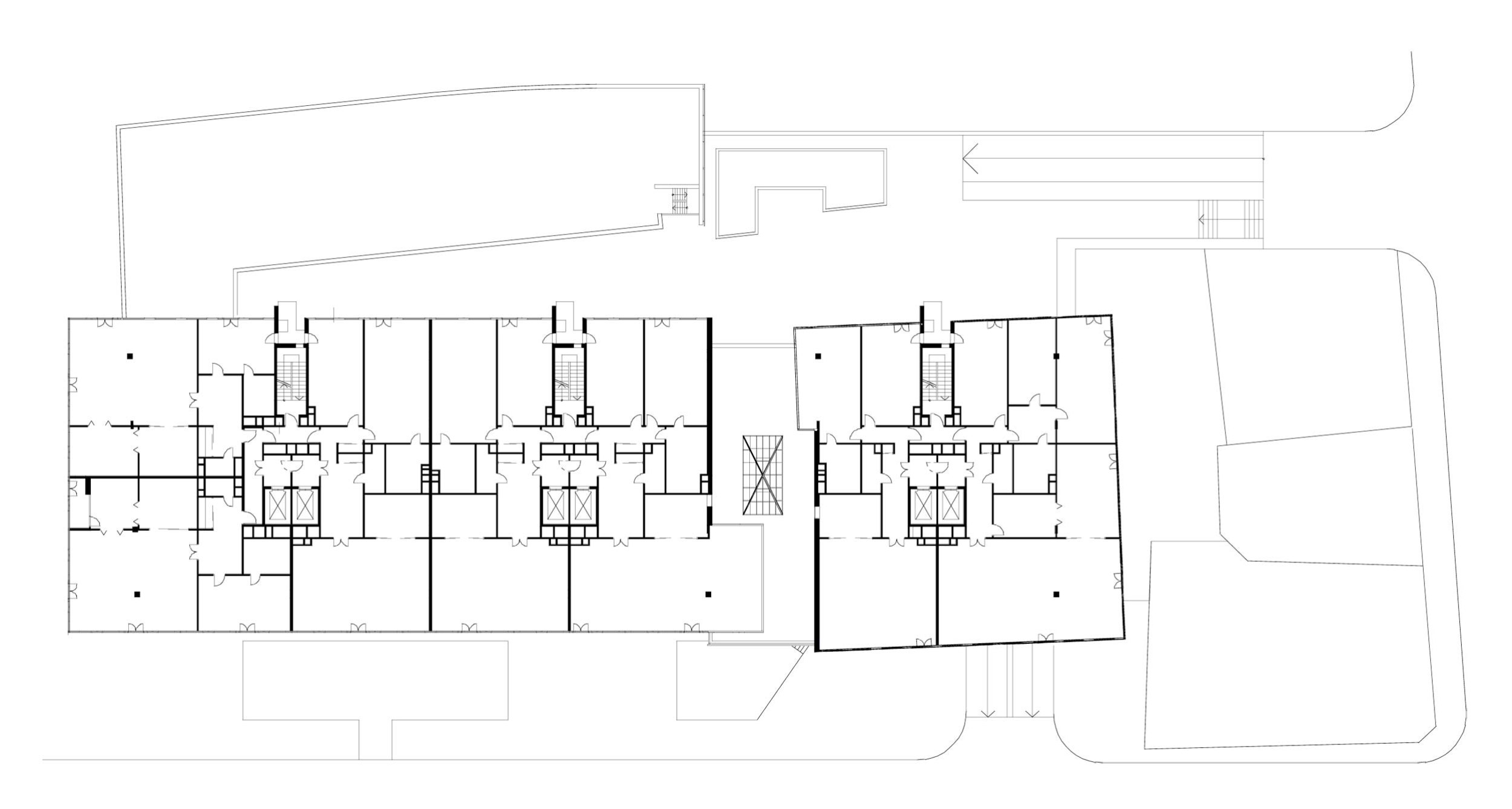
Вышеописанной логикой продиктован стеклянный «камуфляж» на фасадах «Панорамы», украшенный геометрическим орнаментом в духе мондриановской неопластической живописи, благодаря которому объект должен как бы растворяться в контексте, и ею же – огромная криволинейная «трещина» в теле здания, которая поддерживает ту самую ось.
Налицо концептуально-эстетическое противоречие: «трещина» по факту обнуляет эффект «камуфляжа», который и без того едва справляется с задачей маскировки, – этот прием превращает здание-невидимку в объект-аттракцион, делает его просто-таки неприлично выразительным. И есть ощущение, что архитекторы осознанно допустили это противоречие, на что косвенно указывает нарочитая, почти рокайльная манерность изгибов «трещины», не оставляющая никаких сомнений в ее искусственном происхождении. В подобной предумышленности, собственно, и кроется ирония.
Быть и тактичными, и дерзкими, «взрывать» контекст ради его сохранения, одновременно эстетизируя абсурдность ситуации, и создавать нечто новое, не бросая вызов городу и горожанам, умеют, наверное, только в «Остоженке». Вероятно, путь от классического модернизма с его догматичностью к неомодернистской скульптурности, страстности – тому, что с легкой руки бывшей Москомархитектуры у нас окрестили «эмо-техом» и к чему в конечном счете годы спустя пришла «Остоженка», – и должен пролегать через юмор и рефлексию.





