Жилой многофункциональный комплекс «КОД Сокольники», проект
© АБ «Остоженка» / девелопер «Новая Эра»
Митьковский грузовой двор вытянут вдоль северной границы отвода «Митьковской ж/д ветки», которая входит в линию D3, севернее от ТЦ «Тройка» и Алексеевского монастыря; оба хорошо заметны на ТТК, D3 проходит за ними, а дальше, в сторону Сокольников – собственно и расположена территория будущей застройки, большая, чуть меньше 700 м в длину, в данный момент – промзона за забором, «серое пятно на карте города». Исторически здесь протекала речка Рыбинка, на ней был устроен большой пруд, по-видимому, для суконной фабрики капитана Выродова в XVIII веке.
Затем территорию получил из казны московский генерал-губернатор Яков Александрович Брюс, внучатый племянник Якова Вилимовича, известного как сподвижник Петра и «чернокнижник»; еще затем усадьбой владел граф Ростопчин, тот самый, при котором в 1812 году сгорела Москва. При Брюсе и Ростопчине усадьба была уже не заводом, а подмосковной дачей. Которую и купил в 1833 году Платон Митьков, брат декабриста Михаила. Его наследник продал землю под железную дорогу, и к концу XIX века тут образовалась ветка, соединившая Рязанскую железную дорогу с Ярославской, и товарная станция.
Ветку, как и соседнюю улицу, аллею в парке Сокольники, станцию старую и современную, а также собственно грузовой двор назвали по имени бывших владельцев Митьковскими. Пруд засыпали вскоре после 1910 года. Двор функционировал в системе железных дорог на протяжении XX века и был закрыт в 2018.
Архитекторы «Остоженки» начали работу над территорией с закрытого конкурса, который выиграли. Потом, в процессе работы с проектом, сделали еще много – честно говоря, целую тучу, и это я еще видела не все, а где-то десяток – вариантов объемного построения.
Но высотность – не единственное отличие проекта. Высотных проектов, особенно теперь, в Москве много. В данном же случае архитекторы «Остоженки» сосредоточили внимание на: разновысотности, проработанности силуэта; проницаемости территории для города – связи нового комплекса с окружающей городской тканью; среде первых ярусов, уровня восприятия пешехода, в том числе горожанина, забредшего внутрь, так как планируется, что внутренний парк, как минимум, будет открытым для всех. И «памяти места»: прудах и речке.
«Площадка с самого начала вдохновила нас своими уникальными обстоятельствами и богатой историей. Территория ощущалась как нечто сокрытое, долгое время остававшееся незамеченным – в самом сердце города. У места богатая история: усадьба Брюса / Ростопчина, целая цепь прудов на речке Рыбинке – а мы любим речки, это наша неизменная тема, они преследуют нас на многих проектах со времени конкурса на Москву-реку, когда мы предложили раскрыть все московские реки... В данном случае река определила ландшафт и даже прокладку железной дороги, которая, как часто бывает в Москве, следует ровному рельефу речных долин.
Отголоски утраченной усадебной славы, когда здесь у Ростопчина гостил Державин, глубоко повлияли на нас. Так появился внутренний парк с искусственными прудами над коллектором, в котором течет реальная речка Рыбинка.
Довольно долго, еще начиная с конкурса, мы были убеждены, что всю высотную застройку нужно разместить вдоль железной дороги, за ней – общий парк с променадом вдоль прудов, а за ним – с выходом на улицу Шумкина – школу. Ясная, четкая композиция. Но что-то в ней не склеивалось: ряд башен нам уже казался скучным и монотонным, парк получался каким-то неполноценным, зажатым между школьным забором и проездом вдоль жилых домов, сама школа затенялась нашими домами. Пошли показать главному архитектору Москвы Сергею Кузнецову. А он говорит, совершенно для меня неожиданно: А что хорошего – школа вдоль улицы? Шумно, а забор придется все равно делать, территория должна быть огорожена. Попробуйте вдоль улицы низкие корпуса поставить с двумя акцентными башнями – и уличный фронт получится, и активные первые этажи. А школа может получиться на участке, откуда застройку забрали. Сделайте рокировку.
Я совершенно был не готов к такому развороту композиции. Но на следующий день мы переделали макет, посадили школу (правда, пришлось подвинуть проектируемую внутреннюю улицу), и главное – получился внутренний парк с прудом, а вокруг него – хоровод башен. Потом и активный силуэт, и каскады террас, и активная балконная тема – все сложилось. А самые высокие башни бизнес-центра лучше всего встали у станции D3 «Митьково». Наш внутренний парк стал частью пешеходного маршрута между вторым выходом со станции и парком Сокольники».
Отголоски утраченной усадебной славы, когда здесь у Ростопчина гостил Державин, глубоко повлияли на нас. Так появился внутренний парк с искусственными прудами над коллектором, в котором течет реальная речка Рыбинка.
Довольно долго, еще начиная с конкурса, мы были убеждены, что всю высотную застройку нужно разместить вдоль железной дороги, за ней – общий парк с променадом вдоль прудов, а за ним – с выходом на улицу Шумкина – школу. Ясная, четкая композиция. Но что-то в ней не склеивалось: ряд башен нам уже казался скучным и монотонным, парк получался каким-то неполноценным, зажатым между школьным забором и проездом вдоль жилых домов, сама школа затенялась нашими домами. Пошли показать главному архитектору Москвы Сергею Кузнецову. А он говорит, совершенно для меня неожиданно: А что хорошего – школа вдоль улицы? Шумно, а забор придется все равно делать, территория должна быть огорожена. Попробуйте вдоль улицы низкие корпуса поставить с двумя акцентными башнями – и уличный фронт получится, и активные первые этажи. А школа может получиться на участке, откуда застройку забрали. Сделайте рокировку.
Я совершенно был не готов к такому развороту композиции. Но на следующий день мы переделали макет, посадили школу (правда, пришлось подвинуть проектируемую внутреннюю улицу), и главное – получился внутренний парк с прудом, а вокруг него – хоровод башен. Потом и активный силуэт, и каскады террас, и активная балконная тема – все сложилось. А самые высокие башни бизнес-центра лучше всего встали у станции D3 «Митьково». Наш внутренний парк стал частью пешеходного маршрута между вторым выходом со станции и парком Сокольники».
Итак, вдохновившись историей усадьбы-дачи с прудами, а также отталкиваясь от планировочного ограничения – собственно коллектора с речкой, который проходит по продольной оси участка и на котором строить нельзя, – архитекторы предложили, прежде всего, сделать главной осью общественное пространство с прудом, или даже прудами. Оно расступается между башнями, оно общедоступно – как то и принято делать в столь крупных, градостроительного значения, современных жилых комплексах. Оно пешеходное. Через внутренний парк можно будет пройти от Сокольников до станции насквозь.
Собственно пруды показаны «Остоженкой» в эскизном варианте – сейчас территорией занимается бюро UTRO. Но идею обещают сохранить.
Замечу, что в эскизном варианте пруды – подчеркнуто естественные, «мягкие»: часть берегов заросла травой, набережные и пирсы только деревянные. Вот бы так и сделать. Фрагмент, пусть искусственной по происхождению, но на вид естественной природы оттенял бы неизбежную жесткость – тут уж как ни работай с материалом – крупного жилого комплекса как данности. Она, наша данность, нуждается в подобного рода «тенях».
Наталья Маркова, девелопер «Новая Эра»
«Выбор архитектурного бюро “Остоженка” и постановка задачи были результатом плотного взаимодействия с городом и стремления создать продукт, максимально соответствующий контексту и потребностям будущих жителей. Мы формулировали задание, учитывая множество продуктовых и архитектурных нюансов, чтобы максимально усилить локационные преимущества площадки – ее равноудаленность от парка, метро и диаметра. В проекте был реализован своего рода UX-дизайн территории, зонируя пространство от бизнес-квартала у входа до жилого и учебного комплекса, с акцентом на видовые характеристики. Для нас было принципиально важно отразить исторический контекст района Сокольники, проявив его в краснокирпичных и терракотовых фасадах, в чем мы были абсолютно солидарны с архитекторами.
Наш подход человекоцентричен: мы продаем не квадратные метры, а уникальный стиль жизни, особый “код Сокольники” для нашей семейной, но при этом модной аудитории. Клубная инфраструктура была тщательно продумана – она включает детские и спортивные пространства, коворкинги… Ну а главная «фишка» – многофункциональное арт-пространство. Оно создано для выставок, мастер-классов, встреч с художниками и писателями, способствуя формированию активного сообщества жителей. Мы стремились создать максимально приглашающие гранд-лобби и общественные зоны, которые будут работать для людей, постоянно адаптируясь под их меняющиеся потребности».
Наш подход человекоцентричен: мы продаем не квадратные метры, а уникальный стиль жизни, особый “код Сокольники” для нашей семейной, но при этом модной аудитории. Клубная инфраструктура была тщательно продумана – она включает детские и спортивные пространства, коворкинги… Ну а главная «фишка» – многофункциональное арт-пространство. Оно создано для выставок, мастер-классов, встреч с художниками и писателями, способствуя формированию активного сообщества жителей. Мы стремились создать максимально приглашающие гранд-лобби и общественные зоны, которые будут работать для людей, постоянно адаптируясь под их меняющиеся потребности».
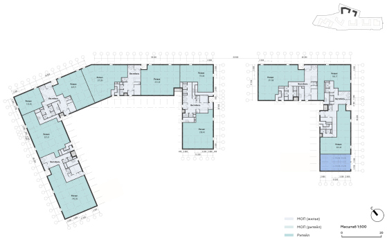
Школьное здание из трех объемов, объединенных четырехъярусными перемычками и многосветными атриумами, разместилось в западной части, на «аппендиксе», примыкающем к улице Лобачика. Новая внутренняя улица, в проекте продолжающая 3-ю Рыбинскую улицу, делает S-образный изгиб, отделяет участок школы от жилых домов – но она вряд ли будет напряженной – и дальше проходит между жилыми башнями и железной дорогой с сторону Русаковской улицы.
Эта внутренняя улица отделяет дома от D3, они также еще немного отодвигаются к северу – здесь образуется протяженный городской сквер, и в его центральной части начинается внеуличный пешеходный переход над железнодорожным полотном в сторону «Тройки» и Алексеевского монастыря.
Объемно-пространственная концепция. Жилой многофункциональный комплекс «КОД Сокольники», проект
© АБ «Остоженка» / девелопер «Новая Эра»
Каждый из пяти жилых корпусов-«блоков» включает низкоэтажную стилобатную часть и высотную, 77–90–142 м. Под каждым два этажа подземной парковки. Первый этаж аккуратно отдан под аренду, иными словами кафе-салоны-магазины, и лобби жилых домов. Выше жилые этажи – квартирография показана на красивом паззле; верхний этаж также аккуратно отдан пентхаусам с чуть увеличенной высотой потолков и стеклянной «короне», возвышающейся по контуру башни; она маскирует инженерное оборудование.
Ключевой прием проекта – террасированные ступенчатые торцы домов; крупные, по три этажа, ступеньки образуют целые «каскады», занимая, в основном, средний высотный пояс; хотя где-то они спускаются и до парка. Террасированные части придают башням асимметричный силуэт «шага», отставленной в сторону ноги, или юбки, раздуваемой ветром.
Фасады. Жилой многофункциональный комплекс «КОД Сокольники», проект
© АБ «Остоженка»
В средней, террасированной части сосредоточены и самые рельефные части фасадов. По словам авторов, они стремились обернуть ими дома «как шарфом». Так и получилось – вертикали башен пересечены фактурными горизонталями: нижние 7 этажей скорее ровные, хотя и не плоские; середина, если смотреть издали, «шершавая»; верх еще более гладкий, блестящий, стеклянный.
Егор Королев и Анастасия Талаева, архитекторы, АБ «Остоженка»
«Нам кажется, в этом проекте удалось предложить свежую и действительно уникальную идею в работе с балконами. Традиционно балконы чаще располагают в нижних третях здания, ближе к земле. Мы же смело подняли их в середину дома, создав эффект своеобразного «шарфа», который обволакивает фасад.
Балконы не только формируют неповторимое лицо дома, но и обеспечивают функциональное преимущество: на этих средних отметках открываются самые лучшие панорамные виды на город, Сокольники и наш собственный парк. В отличие от верхних этажей, где бывает слишком ветрено, здесь создается гуманное летнее пространство, позволяющее в полной мере насладиться красотой окружающего ландшафта. Это решение, хотя и удорожает строительство, стало нашей главной архитектурной победой, очаровав заказчика и даже мэра города, и в итоге определило уникальность и узнаваемость всего проекта».
Балконы не только формируют неповторимое лицо дома, но и обеспечивают функциональное преимущество: на этих средних отметках открываются самые лучшие панорамные виды на город, Сокольники и наш собственный парк. В отличие от верхних этажей, где бывает слишком ветрено, здесь создается гуманное летнее пространство, позволяющее в полной мере насладиться красотой окружающего ландшафта. Это решение, хотя и удорожает строительство, стало нашей главной архитектурной победой, очаровав заказчика и даже мэра города, и в итоге определило уникальность и узнаваемость всего проекта».
Впрочем, полосы не везде равномерны. Да, выше 7–8 этажа начинается «шарфик», рельефное плетение охватывает почти все объемы. В то же время там, где башни выше, рельефных полос больше. Рельефность разная: то резкая, то скругленная, то интенсивная, то приглушенная. Архитекторы, по их собственным словам, стремились предложить много вариантов рамках одной идеи. Вариантов, действительно, немалое количество.
Раз уж прозвучали слова про «шарфик», позволю себе сопоставить эту идею с тканью. Тем более что все привыкли говорить о городской ткани. В данном случае – не совсем о ней: собственно образное решение выткано как полотно, хотя и не в двух, а в трех измерениях.
У ткани есть основа и уток. Тут основу составляет объемное построение, разновысотность, ритм, несколько «слоев» поворотной симметрии. Но не только они – еще и цвет: в проекте, почти как в ткани, переплетены кирпичный терракотовый и белый цвет. С добавлением черно-коричневого. Все три составляют обычную палитру городских окраин на стыке старых промзон и модернистских кварталов. Кирпич и панели.
Все это на фоне стекла, современного и объединяющего материала.
Фасады. Жилой многофункциональный комплекс «КОД Сокольники», проект
© АБ «Остоженка» / девелопер «Новая Эра»
Глядя на вид с птичьего полета несложно заметить, как белые корпуса выстраиваются в прерывистые, но отчетливые линии – и как они продолжают, да, с большей высотностью, но продолжают – окружающую застройку. Как красные дома находят за массивом деревьев поблизости переклички, не такие крупные, как они сами, но тоже объемные.
Фасады. Жилой многофункциональный комплекс «КОД Сокольники», проект
© АБ «Остоженка» / девелопер «Новая Эра»
Думаю, многим приелась метафора про «вплетение» новых зданий в окружающий контекст. Тем не менее именно оно здесь и происходит. Видно, что архитекторы сделали многое именно с той целью, чтобы «вплести». Откликнуться, отразить на новом уровне, найти рифму, выстроить взаимодействие.
В таком рифмованном подходе ко всему хорошо отражается специфика «Остоженки». Их нельзя назвать прямо-таки первооткрывателями разноуровневого города, со стилобатом, ярусностью, доминантами башен над кварталами – история эта длительная, тут есть свои герои и свои пропагандисты. Впрочем, архитекторы «Остоженки» тоже никогда не оставались в стороне от обсуждения и от практики градостроительной работы с крупными образованиями... В данном случае, в проекте «КОД Сокольники» мы видим новый шаг в разработке темы. Что в нем важно? Первое – пожалуй, что башни и низкоэтажные корпуса не разъединены полностью, но и не слиты воедино. «Шарфики» позволяют балансировать на грани: не проводить чересчур жестких границ дробления, сохраняя целостность решения, но и не превращать здания в «айсберги».
Рассмотрим угловой северо-западный дом, расположенный ближе других ко входу в парк, 4 минуты пешком, на его месте сейчас офис продаж – а следовательно, он глубже других приникает в городское окружение.
Он замкнут больше других, по постановке повторяет полупериметральные рамки семидесятых (sic!) в своем окружении. Полностью красно-кирпичный. В том и другом – консервативен. Семиэтажные секции вдоль улицы держат высоту, образуя городской фронт; зато та, которая поворачивает внутрь к пруду, спускается каскадом террас. А на углу вырастает башня. Довольно бескомпромиссная. Но разделенная на несколько уровней. Верхний стеклянный. С этакими диагональными экранами-«зубцами». Намек на крепость, романтический – и должна сказать, такого рода намек можно раскопать не в одном проекте «Остоженки». Но все же достаточно тонкий, легкий намек.
Как и в соседнем доме по улице Шумкина, она же бывшая Митькова. Здесь стеклянная корона еще более зубчатая: «угадывает мелодию» и продолжает ее. А примыкающий поперечный дом уже белый и весь ступенчатый. Перекликается с красными террасами соседа и «перепевает» его на свой лад.
Фасады. Жилой многофункциональный комплекс «КОД Сокольники», проект
© АБ «Остоженка» / девелопер «Новая Эра»
Так продолжается и дальше: похоже и не похоже, и вроде бы ритм один и тема одна, но от одного дома к другому можно найти что-то новое. Новый ракурс. Особенность. Нюанс.
Развертка вдоль линии D3, вид с юга. Жилой многофункциональный комплекс «КОД Сокольники», проект
© АБ «Остоженка» / девелопер «Новая Эра»
Архитекторы правы, тут все завязано на балконах. Широкие треугольные выступы и выступы с ромбовидным сужениями, белые асимметричные скругленные полосы и прозрачное стеклянное ограждение, вынесенное вперед на тонком белом мостике; стеклянные треугольники-эркеры в обрамлении вертикальных тяг. Уверена, что перечислила не все. Да, просто-балконы чередуются с французскими.
Но больше всего, это заметно, авторы увлечены фасадом с белыми полукруглыми балконами. Планировалось, что полукруги будут выстроены в шахматном порядке, но затем стало известно, что в детских, согласно представлениям современных маркетологов, балконы делать нельзя. Их заменили небольшими выступами, «ткань» усложнилась, но, пожалуй, привлекательности не потеряла.
Жилой многофункциональный комплекс «Код Сокольники», проект
© АБ «Остоженка» / девелопер «Новая Эра»
Этот фасад достался секции высотой в 21 этаж, поперечному белому «крылу» башни по улице Шумкина.
Другой нюанс – асимметричные рамки входов. Дополненные колоннами из «алмазного руста». За стеклом в интерьере лобби. Они продолжают простенки фасада, но этак... по-своему.
Вот, казалось бы, уже все про лоджии входа придумали, но время от времени удается что-то не вполне привычное.
Деловой центр у станции D3 может оказаться самым высоким, до 200 м. Он наследует «шагающий» силуэт жилых башен, хотя и несколько иначе. Стеклянные башни – пока еще вполне гипотетичные, но уже нарисованные – занимают участок поменьше, обходятся без двора; зато у них 4 яруса подземной парковки и 3 этажа торгового центра, тоже вполне уместного рядом с транспортным узлом, в стилобате. Башня в сущности одна, но объемов два, они «слиплись» вокруг общего лифтового ядра. У южного скошен западный фасад, и северного восточный. Вот вам и лаконичная стоящая-шагающая форма. Устойчиво-динамичная и отдаленно напоминающая головоломки нашего детства.
Фасады. Жилой многофункциональный комплекс «КОД Сокольники», проект
© АБ «Остоженка» / девелопер «Новая Эра»
О квартирографии можно много не говорить, все равно за нее отвечают по большей части в наше время продуктологи и маркетологи. А человек, покупающий квартиру, смотрит на все другими, совершенно особенными, глазами. Жалко, что немного четырехкомнатных, но это особенность рынка. Можно заметить, что квартиры покрупнее собраны к видовым торцам и террасам, но это обычный профессиональный прием. Любопытно, как соседствуют студии и однокомнатные квартиры зигзагообразной стеной, это разумно, так как позволяет обозначить пространство кухни.
От архитекторов в проекте такого масштаба требуется другое. Нет, не увеличить или уменьшить высоту или объем полезной площади – это вообще не их работа и не их ответственность. Параметры проекта – скорее данность, воздействовать на которую можно в очень ограниченном спектре. Задача архитектора творчески осмыслить проект в рамках параметров. Добавить творческой энергетики, тут смелости, там детализации, тут разнообразия, там цельности. Сделать на этом пути, по возможности, шаг вперед. Предложить идею. Тут мне больше всего нравится идея переплетений и «вплетений». Не все можно переплести и тем более вплести, и уж никак не возможно полностью спрятать крупный объект. Да и не надо. А приложить собственную энергию к задаче сделать переплетение разумным и живым – можно.
Фасады. Жилой многофункциональный комплекс «КОД Сокольники», проект
© АБ «Остоженка» / девелопер «Новая Эра»



