RSS
Дом Staggered Cabin
Фото © Joe Fletcher

Дом Staggered Cabin


/ Staggered Cabin

информация:

Mork-Ulnes Architects / Норвегия, США
Дом Staggered Cabin
Фото © Joe Fletcher

Архи.ру об этом объекте:

25.03.2026

Нина Фролова. Лыжня от порога

Дом по проекту Mork-Ulnes Architects для семьи с двумя детьми в горах Сьерра-Невада над озером Тахо в Калифорнии сочетает скандинавские и местные мотивы.

читать дальше
Дом Staggered Cabin
Фото © Joe Fletcher
Дом Staggered Cabin
Фото © Joe Fletcher
Дом Staggered Cabin
Фото © Joe Fletcher
Дом Staggered Cabin
Фото © Joe Fletcher
Дом Staggered Cabin
Фото © Joe Fletcher
Дом Staggered Cabin
Фото © Joe Fletcher
Дом Staggered Cabin
Фото © Joe Fletcher
Дом Staggered Cabin
Фото © Joe Fletcher
Дом Staggered Cabin
Фото © Joe Fletcher
Дом Staggered Cabin
Фото © Joe Fletcher
Дом Staggered Cabin
Фото © Joe Fletcher
Дом Staggered Cabin
Фото © Joe Fletcher
Дом Staggered Cabin
Фото © Joe Fletcher
Дом Staggered Cabin
Фото © Joe Fletcher
Дом Staggered Cabin
Фото © Joe Fletcher
Дом Staggered Cabin
Фото © Joe Fletcher
Дом Staggered Cabin
Фото © Joe Fletcher
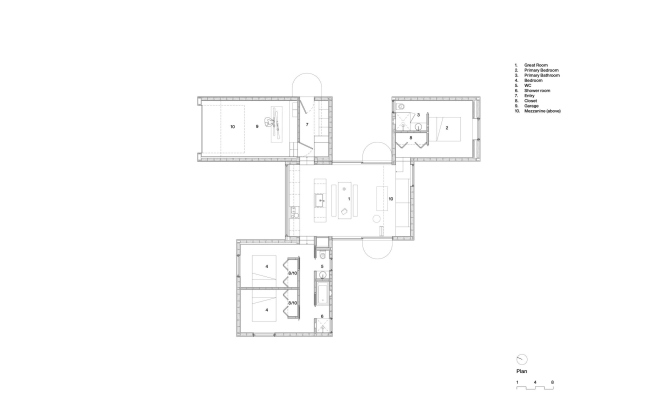
Дом Staggered Cabin
© Mork-Ulnes Architects
Дом Staggered Cabin
© Mork-Ulnes Architects
Дом Staggered Cabin
© Mork-Ulnes Architects
Дом Staggered Cabin
© Mork-Ulnes Architects
Дом Staggered Cabin
© Mork-Ulnes Architects
Дом Staggered Cabin
© Mork-Ulnes Architects
Дом Staggered Cabin
© Mork-Ulnes Architects
Дом Staggered Cabin
© Mork-Ulnes Architects

Избранные архитекторы:

  • Питер Айзенман
  • Тоёо Ито
  • Бернар Чуми
  • Ренцо Пьяно
  • Том Мейн
  • Эдуарду Соту де Мора
  • Оскар Нимейер
  • Арата Исодзаки
  • Ричард Роджерс

Проект из каталога (случайный выбор)

Детские ясли Iride в Гвасталле
Марио Кучинелла, 2014 – 2015
Детские ясли Iride в Гвасталле

Избранные постройки:

  • Музей шоколада Nestlé
  • Концертный зал Zénith – Сент-Этьен
  • Датский национальный морской музей
  • Музей Гуггенхайма в Бильбао
  • Пирс на Рейс-Стрит – реконструкция
  • Новое здание Мариинского театра. Проект Э. Мосса
  • Большой двор Британского музея – реконструкция
  • Вилла Capital Hill
  • Новый парламентский комплекс Республики Албания

Зарубежные новости