Размещено на портале Архи.ру (www.archi.ru)

25.03.2026

Лыжня от порога

Нина Фролова
Объект:
Дом Staggered Cabin
Адрес:
США, None,
Мастерская:
Mork-Ulnes Architects

Дом по проекту Mork-Ulnes Architects для семьи с двумя детьми в горах Сьерра-Невада над озером Тахо в Калифорнии сочетает скандинавские и местные мотивы.

Проект Staggered Cabin был заказан австралийской супружеской парой, переехавшей в Сан-Франциско, как горный домик для катания на лыжах в выходные. Но пока шла работа, у заказчиков родились две дочки, поэтому функция поменялась на постоянное жилье, хотя отсюда все равно можно отправиться кататься прямо от порога: рядом расположен горнолыжный курорт Хевенли. Ближайший город – Саут-Лейк-Тахо.

Постройка площадью 110 м2 на высоте 1800 м над уровнем моря вдохновлена норвежскими и калифорнийскими образцами – как традиционными хижинами Сьерра-Невады, так и так называемыми домиками с А-каркасом (A-frame), придуманными, кстати, работавшим на юго-западе США архитектором норвежского происхождения – Хенриком Хелкандом Буллом (сам Каспер Морк-Улнес родился в Норвегии).

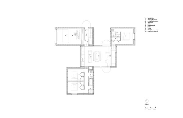
Дом состоит из четырех «павильонов», которые ступенями расставлены по склону: как по вертикали, вслед за рельефом, так и друг относительно друга. Три корпуса (три спальни и гараж) объединены центральным, с общей комнатой: кухней-гостиной-столовой. У всех шедовые, односкатные кровли, которые позволили устроить антресольные этажи над гаражом (кладовку) и над гостиной (домашний офис, куда ведет почти вертикальная лестница). В детской в пространстве под крышей создан «дом на дереве» и небольшой скалодром.

Разделение основного объема на части позволило проще вписать его в лесистый участок, сократив вмешательство до минимума. Вокруг растут сосны Жеффрея и лежат валуны; водонепроницаемого мощения здесь мало, а срубленные в ходе стройки деревья по местным эко-правилам остались на месте: для превращения в перегной или же в виде «лесной» мебели.

Дом обшит темной древесиной туи гигантской, хорошо сочетающейся с окружением; металлические кровли со стоячим вальцем снабжены снегоудерживающими устройствами, и снег улучшает их изоляцию зимой. Тающий снег и дождевая вода направляются с крыш на участки для впитывания в почву, чтобы не усиливать потоки, текущие по склону в озеро.

В интерьере широко использованы массив древесины и фанера из дугласовой пихты; спроектированная архитекторами встроенная мебель позволяет эффективнее использовать помещения. Сквозь панорамные окна можно любоваться лесом и даже наблюдать за дикими животными, включая койотов и медведей.
 

Дом Staggered Cabin
Дом Staggered Cabin
Фото © Joe Fletcher
Дом Staggered Cabin
Дом Staggered Cabin
Фото © Joe Fletcher
Дом Staggered Cabin
Дом Staggered Cabin
Фото © Joe Fletcher
Дом Staggered Cabin
Дом Staggered Cabin
Фото © Joe Fletcher
Дом Staggered Cabin
Дом Staggered Cabin
Фото © Joe Fletcher
Дом Staggered Cabin Фото © Joe Fletcher
Дом Staggered Cabin
Фото © Joe Fletcher
Дом Staggered Cabin Фото © Joe Fletcher
Дом Staggered Cabin
Фото © Joe Fletcher
Дом Staggered Cabin Фото © Joe Fletcher
Дом Staggered Cabin
Фото © Joe Fletcher
Дом Staggered Cabin Фото © Joe Fletcher
Дом Staggered Cabin
Фото © Joe Fletcher
Дом Staggered Cabin Фото © Joe Fletcher
Дом Staggered Cabin
Фото © Joe Fletcher
Дом Staggered Cabin Фото © Joe Fletcher
Дом Staggered Cabin
Фото © Joe Fletcher
Дом Staggered Cabin Фото © Joe Fletcher
Дом Staggered Cabin
Фото © Joe Fletcher
Дом Staggered Cabin Фото © Joe Fletcher
Дом Staggered Cabin
Фото © Joe Fletcher
Дом Staggered Cabin Фото © Joe Fletcher
Дом Staggered Cabin
Фото © Joe Fletcher
Дом Staggered Cabin Фото © Joe Fletcher
Дом Staggered Cabin
Фото © Joe Fletcher
Дом Staggered Cabin Фото © Joe Fletcher
Дом Staggered Cabin
Фото © Joe Fletcher
Дом Staggered Cabin Фото © Joe Fletcher
Дом Staggered Cabin
Фото © Joe Fletcher
Дом Staggered Cabin Фото © Joe Fletcher
Дом Staggered Cabin
Фото © Joe Fletcher
Дом Staggered Cabin Фото © Joe Fletcher
Дом Staggered Cabin
Фото © Joe Fletcher
Дом Staggered Cabin © Mork-Ulnes Architects
Дом Staggered Cabin
© Mork-Ulnes Architects
Дом Staggered Cabin © Mork-Ulnes Architects
Дом Staggered Cabin
© Mork-Ulnes Architects
Дом Staggered Cabin © Mork-Ulnes Architects
Дом Staggered Cabin
© Mork-Ulnes Architects
Дом Staggered Cabin © Mork-Ulnes Architects
Дом Staggered Cabin
© Mork-Ulnes Architects
Дом Staggered Cabin © Mork-Ulnes Architects
Дом Staggered Cabin
© Mork-Ulnes Architects
Дом Staggered Cabin © Mork-Ulnes Architects
Дом Staggered Cabin
© Mork-Ulnes Architects
Дом Staggered Cabin © Mork-Ulnes Architects
Дом Staggered Cabin
© Mork-Ulnes Architects
Дом Staggered Cabin © Mork-Ulnes Architects
Дом Staggered Cabin
© Mork-Ulnes Architects