ЖК «Кутузовский XII»
Фотография © Илья Иванов / Цимайло Ляшенко и Партнеры
Мало того, что дом, нарушив (с разрешения инстанций, конечно) предписанные параметры, вместо толстого и глухо замыкающего сквер, стал тонким, изящным, отступил в глубину участка, чем раскрыл виды на Сити и гостиницу «Украина» – но не разрушил линии Кутузовского. Мало того, что он с трех главных сторон, фасада по проспекту и торцов, плотно обставлен стеклянными колоннами моллированного стекла. Колонн тут, пожалуй, больше, чем на всем Кутузовском проспекте. Хотя похожи они и на гипер-версию стои античного форума с драгоценными фустами в золотистых ободках, и на трубки деконструкции, – архитектуры, с одной стороны, не чуждой эпатажа, а с другой – хрупкой и доверчивой в своей пластической открытости. Мало того, что здесь, вероятно, мы имеем дело с фантазией на тему инсталляции Алексея Козыря со светящейся колонной, – что прямо делает дом частью некоего артистического диалога.
Клубный дом «Кутузовский, 12»
Фотография: предоставлена Hilti
Клубный дом «Кутузовский, 12»
Фотография: предоставлена Hilti
Так ведь он еще и светится по вечерам. Сияют хрустальные колонны со звездчатыми отражателями, превращающими свет в множество тонких лучей. Отражают свет вынесенные вперед межэтажные плиты и фасад из юрского известняка холодновато-серой породы, с тонкой сеткой стыков между плитами и «рамой» рельефных выступов. Вечером этот дом – сплошная иллюминация, сгусток позитива. Дом-свет.
Клубный дом «Кутузовский, 12»
Фотография: предоставлена Hilti
Словом, он яркий и смелый, в этой архитектуре как-то сразу начинаешь искать смысл, поскольку очевидно, что это – высказывание авторское и, не побоюсь этого слова, уникальное.
Такое архитектурное высказывание, эффектное и роскошное, требует качественного воплощения деталей и целого. В значительной степени его обеспечила компания HILTI.
Компания HILTI – мировой лидер в области разработки и производства инновационных технологий, оборудования, расходных материалов, программного обеспечения и услуг для строительной индустрии, – была привлечена для работы над конструкцией навесного фасада здания.
HILTI – компания, предлагающая решения из «одних рук». В России на сегодняшний день существует 140 компаний, производящих отдельные виды оборудования для фасадных систем, но необходимость согласовывать между собой элементы разных производителей увеличивает риски, поскольку чревато ошибками, срывом сроков поставок, нестыковками различных элементов и, как следствие, издержками.
Технологии, разработанные HILTI, помогают реализовывать самые непростые и впечатляющие инженерные замыслы, к которым можно отнести и фасад «Кутузовского, 12».
Комплексная работа на объекте начинается с технических свидетельств Министерства строительства, для получения которых конструкция должна пройти серию различных испытаний – отжиг, проверку коррозионной и несущей способности, тесты на сейсмостойкость, и это является главным барьером, так как обычно компании, производящие системодержатели, имеют достаточно ограниченный спектр решений, которые они могут предложить заказчику. Кроме того, для легализации каждого из этих решений требуется сумма около миллиона рублей и минимальный срок – 8 месяцев.
А так как зачастую на объектах применяется не один вид облицовки, и многие из них нестандартны – для каждого из них требуется свое техническое свидетельство.
Для оформления фасада ЖК «Кутузовский, 12» заказчик выбрал натуральный камень – мраморовидный известняк Atlantic Blue, произведенный в Португалии. За счет своей красоты и долговечности это облицовочное покрытие пользуется на международном рынке прекрасной репутацией и экспортируется во многие страны мира для строительства недвижимости класса люкс. Заметим, что швы между элементами камня получились ровными и достаточно тонкими, – что пока еще немалая, увы, редкость для новых московских фасадов.
Клубный дом «Кутузовский, 12»
Фотография: предоставлена Hilti
После того, как заказчик определился с выбором облицовочного материала, инженеры HILTI начинают работать с выбранным материалом исходя из особенностей породы и прочностных характеристик камня. И даже если специалистам компании уже доводилось работать с производителем камня, для каждого объекта и выбранного к нему отделочного материала испытания проводятся заново. В данном случае также был проведен ряд натурных испытаний, поскольку даже камень одного производителя, добытый в одном карьере, может быть иметь разное качество.
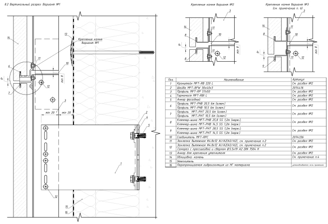
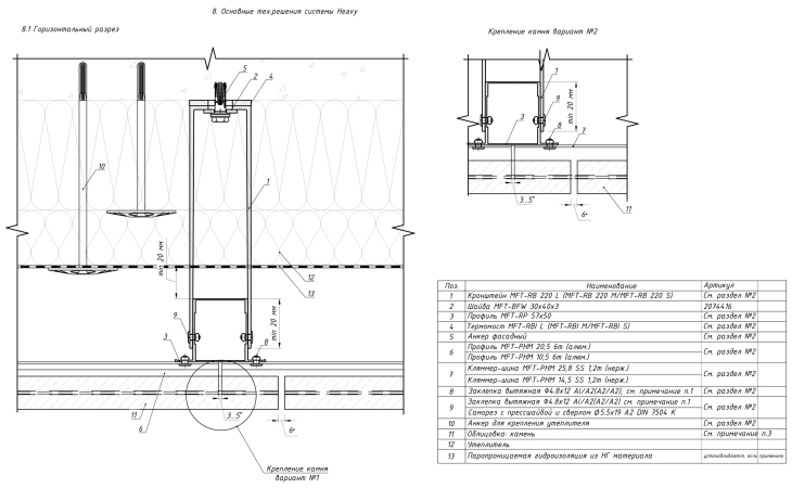
Навесная ограждающая конструкция смонтирована на особой системе HILTI для навесного вентилируемого фасада – VFH. Компания разработала несколько подсистем, применяемых при различных видах облицовки. Типовые подсистемы для вентилируемого фасада включают рядовую, или «лёгкую», подсистему, межэтажную «тяжёлую», а также рядовую стальную подсистему из оцинкованной стали с полимерным покрытием.
В работе над фасадом «Кутузовского, 12» была применена алюминиевая комбинированная система HILTI VFH Stone, где плиты облицовки с пропилом крепятся к подсистеме при помощи стартовых, рядовых и верхних кляммерных планок из нержавеющей стали. Эта подсистема применяется для зданий с облицовкой из натурального камня, установленного скрытым способом на кляммершинах. Крепление планок к несущим профилям подконструкции осуществляется при помощи заклепок, материал которых – алюминий или нержавеющая сталь определяется по результатам статического расчета.
Клубный дом «Кутузовский, 12»
Фотография: предоставлена Hilti
Сложная пластика фасада «Кутузовского, 12» – мелкие элементы, выступающие карнизы и балконы, потребовали особого внимания к деталям. Необходимо было реализовать конструкцию не только эстетически безупречно, но и обеспечить технологическое качество.
Часть проведенных для объекта испытаний проводилась по стандартной схеме, однако основное внимание было направлено на прочность системы и материалов, особенно в местах примыкания балконных плит и их облицовки к окну, имеющему пожарную нагрузку – горизонтальных элементов обшитых камнем балконов. В данном случае особо проверялась прочность и устойчивость к тепловой нагрузке системы креплений, на которой подвешивался камень, так как в случае пожара, вырывающиеся из окна языки пламени, нагревают именно эту зону – боковые и верхние простенки.
Клубный дом «Кутузовский, 12»
Фотография: предоставлена Hilti
Специалисты компании HILTI с помощью натурных испытаний доказали огнестойкость конструкции фасадов, для чего был изготовлен пробный образец в натуральную величину: часть стены здания в два этажа, протестированный с соблюдением всех условий настоящего пожара.
В ходе испытаний огонь сразу упирался в этот балкон и очень сильно его нагревал.
Клубный дом «Кутузовский, 12»
Фотография: предоставлена Hilti
«Для горизонтальных участков фасада, стандартных решений, как таковых нет, – рассказывает архитектор-инженер компании HILTI Елена Никоненко. – Все индивидуально и разрабатывается под объект. Комбинация систем не имеет заранее выданных технических свидетельств. Под каждый объект, имеющий схожие с «Кутузовским, 12» горизонтальные участки, компания сделает новое объектное заключение. Поэтому в данном случае для надежного закрепления камня в зоне декоративных балконов было проведены испытания, гарантирующие, что в случае пожара камень не обрушится».
У HILTI есть три группы из шести принципиально разных решенийдля крепления облицовки из натурального камня. В зависимости от толщины и веса специалисты HILTI подбирают определенное решение, которое поможет выдержать необходимую нагрузку, и применимое для региона, в котором создается объект.
В архитектурном проекте ЖК «Кутузовский, 12» было поставлено несколько сложных задача. Часть фрагментов камня – фигурные, а вес некоторых из них достигал 300 кг, и, естественно, для несения такого веса требовались особые фасадные элементы. Были использованы несколько видов креплений на зацепах и на кляммершинах. Две линейки кляммерных планок различной ширины позволили подобрать максимально выгодное с экономической точки зрения решение, а отсутствие мокрых процессов позволило вести монтаж в любое время года. Система монтажа была применена комбинированная, и рядовая, и межэтажная, стальная не применялась. При этом, стальным был крепеж в пропил – кляммершины. Важно, что в пожароопасных зонах использовались планки из нержавеющей стали. При этом сама система осталась алюминиевой, и только этот элемент в пожароопасных зонах заменялся на нержавеющую сталь.
В Кутузовском 12 была применена комбинированная схема, в основе которой лежит система из алюминиевого сплава с использованием тяжелых профилей, при этом были применены несколько индивидуальных решений: для плоской зоны – одно, в подоконной – другое, для колонн – третье. В целом на объекте было применено около 50 решений, причем на каждый вид облицовки было получено собственное техническое свидетельство.
Подобная конструкция навесной фасадной системы с воздушным зазором имеет ряд неоспоримых достоинств – она позволяет устанавливать скрытым способом массивные плиты натурального или искусственного камня (либо фибробетона), в том числе в пожароопасных зонах, а также не привязывать плиты облицовки к вертикальным несущим профилям. Элементы облицовки можно располагать под любым углом к вертикальной плоскости. Допускается любая ориентация элементов на плоскости фасада, а также установка плит нестандартного размера. За счёт точной регулировки винтами возможна организация швов минимального размера без дополнительной обработки плит, а особый вид креплений обеспечивает быстрый монтаж и демонтаж облицовки.
Клубный дом «Кутузовский, 12»
Фотография: предоставлена Hilti
Эффектная пластика фасада «Кутузовского, 12» обуславливала и сложность реализации работ. В зоне балконов – за счет горизонтального расположения облицовочного камня, и в областях декоративной кладки за счет выступающих камней, вес которых больше стандартной облицовки, и здесь важно было рассчитать все так, чтобы крепления не разогнулись, и стандартный профиль был заменен на оцинкованный анкер HSU-R с подрезкой для крепления камня.
Немаловажное значение имеет и локальная ремонтопригодность материалов – каждый отдельный элемент может быть оперативно извлечен или заменен. В качестве дополнительного преимущества можно отметить и то, что все элементы подсистемы производятся в России.
В здании всё продумано до мелочей, как, например, крепление оборудования на мягкой кровле.
При монтаже кровли была использована уже не алюминиевая, а стальная подсистема HILTI, позволяющая реализовать крепление коммуникаций и вентиляционного оборудования не только аккуратно и компактно, но и без нарушения целостности. Засчет насыпки и ограждения она позволяет не протыкать мягкую кровлю. Хотя в «Кутузовском, 12» было решено не делать кровлю эксплуатируемой, высокая эстетичность такой работы может быть применима и для этого варианта, но она также идеальна и в данном случае, так как крыша дома хорошо просматривается со многих точек окрестных зданий.
Подобная технология крепления оборудования при помощи опор для мягкой кровли и легкой стальной системы HILTI Bigfoot дала возможность размещения оборудования уже после проведения кровельных работ без металлических закладных и гидроизоляции. При помощи Bigfoot и обвязочной рамы нагрузка распределяется по несущему основанию перекрытия, а кровля остается целостной и герметичной. Еще одним преимуществом системы является ее мобильность, позволяющая переделать конструкцию практически в последний момент, тогда как закладные заставляют привязываться к определенным точкам. Установка легкосборной и нетяжелой конструкции осуществляется без сварочных работ. Также подсистема не требует лакокрасочного покрытия, а уже имеет обмазку горячим цинком, что лучше подходит для наружного применения и устойчиво к воздействию окружающей среды.
Говоря об окружающей среде нельзя не отметить, что одним из самых важных характеристик продуктов компании HILTI является высокий экологический статус используемых материалов. Так, например, в стальной подсистеме компании, в отличие от многих других поставщиков, не используется токсичный и канцерогенный шестивалентный хром. Термомосты между кронштейном и несущим основанием, изолирующие бетон от металла в целях теплосбережения и предотвращения коррозии, также никогда не содержат запрещенного во многих странах асбеста, а изоляторы для кронштейнов делаются не из канцерогенного паролита, а из ПВХ. Безусловно, стоимость таких материалов выше, но в данном случае цена полностью оправдывается качеством.
***
Продукция компании, реализующей проекты по всему миру, отвечает самым высоким международным требованиям и нормативам. При этом представители компании считают, что главными преимуществами работы с HILTI для заказчика являются не только все перечисленные преимущества монтажных систем, но, прежде всего, комплексная помощь в работе – возможность получения «из одних рук» множества услуг: сервисной поддержки, помощи в разработке проекта, его согласования как с авторами концепции, так и с другими участниками процесса – генподрядчиком и заказчиком, получение всей дополнительной документации, к примеру, пожарных заключений, обеспечения несущей способности для всех элементов фасада и так далее.
Компания всегда четко соблюдает договоренности, ведь репутация – самый дорогой актив HILTI.
Высокий уровень профессионализма и качества материалов HILTI позволили достаточно точно воплотить смелую и эффектную идею архитекторов АБ «Цимайло, Ляшенко и Партнеры». Как показал высокий спрос на квартиры в ЖК «Кутузовский,12», компания HILTI и другие участники проекта отлично справилась со своими задачами, проект выполнен на высочайшем уровне качества, которого удалось достичь всего в нескольких жилых комплексах в нашей стране. Неслучайно к моменту ввода объекта в эксплуатацию в свободной продаже остались всего 5 квартир, а сам клубный дом вошел в ТОП-5 самых популярных жилых комплексов столицы в премиальном сегменте.
***
HILTI – глобальная корпорация с почти восьмидесятилетним опытом работы (в следующем году компания отмечает юбилей), представительствами в более чем 120 странах мира и штаб-квартирой в княжестве Лихтенштейн. Компания не раз становилась обладателем наград таких профессиональных международных конкурсов в области промышленного дизайна, как Red Dot Design Award и iF Design Award.
HILTI производит и продает строительное оборудование, электроинструменты и инженерные решения для строительной отрасли, охватывая все этапы проектирования от возведения опалубки до монтажа фасадов и внутренней отделки. Специалисты HILTI обеспечивают комплексную поддержку строительных проектов, предоставляя клиентам не только инструменты и сервисное обслуживание, но также консультации и тренинги, а также испытания предложенных решений. В России компания начала свою деятельность в 1993 году. Широкая сеть собственных логистических комплексов, расположенных в разных регионах России, позволяет сократить время доставки и обеспечить поставку всех необходимых инструментов и комплектующих в полном объеме.
При логистических центрах находятся и собственные сервисные центры компании, в которых
можно в случае поломки отремонтировать инструменты, и этот сервис доступен все время
службы техники.
Компания поддерживает общество и окружающую среду в равной степени, чтобы активно стремиться к лучшему будущему как внутри, так и за пределами основной сферы деятельности. В дополнение к благотворительному фонду Hilti, ценности компании, такие как честность, смелость, командная работа и целеустремленность, ежедневно демонстрируются во взаимодействии с членами команды, партнерами и клиентами.
Цель HILTI – строить лучшее будущее с помощью устойчивых и инновационных решений.
