Office A61 + YY
Фотография © Дмитрий Чебаненко / предоставлена архитектурное бюро «A61»
А пока показываем собственный офис двух тюменских бюро: архитекторов «A61» и дизайнеров «YY», – они как правило работают в коллаборации, а теперь еще и оформили для себя совместное офисное пространство на, ни много ни мало, 40 человек.
Office A61 + YY
Фотография © Дмитрий Чебаненко / предоставлена архитектурное бюро «A61»
Его особенность в том, что оно построено на монохроме с преобладанием белого, но оттенено цветом: вкраплениями салатово-зеленой покраски, которая особенно хороша в виде вент-трубы, она тянется по потолку как своего рода стебель гигантской лианы, – и цветной дихроической пленкой на стекле, которая дополняет аскетичное, в целом, решение элементом спектрально-чувственных эмоций, этаким модным бензиновым блеском.
Office A61 + YY
Фотография © Дмитрий Чебаненко / предоставлена архитектурное бюро «A61»
Часть стекла, к слову – переработанное, поскольку экологической тематикой авторы тоже заморачиваются.
ЮТ
Далее слово авторам
Офис A61&YY – это отражение наших взглядов на архитектуру и мир в целом. Он объединяет каждого участника нашей команды, каждый проект, каждую инициативу, которую мы привносим в мир.
Формируя комфорт повседневного профессионального быта, мы создавали пространство для коммуникации и конструктивного взаимодействия людей.
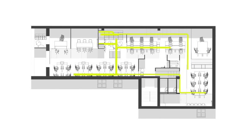
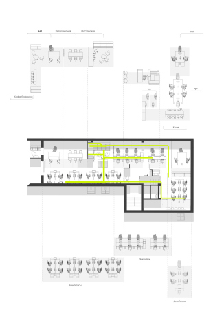
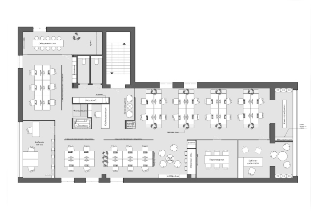
Основой формирования пространства является open space, объединяющий разные группы специалистов (архитекторы, дизайнеры интерьеров, инженеры), и далее в него включаются точечные функции и инфраструктура офиса, такие как библиотека, зона отдыха, переговорные, кофепоинт.
Такой подход декларирует открытость, отсутствие вертикальной иерархии, доступность каждого для каждого.
Весь интерьер соткан из смыслов и неслучайных материалов, деталей.
Используемые решения являются отражением устойчивого подхода к формированию пространства в сочетании с качеством среды – от выбора материалов до конечного продукта. Например, ковровое покрытие переговорной и кабинета руководителя компании EGE изготовлено из переработанных пластиковых бутылок.
Стекло играет ключевую роль в формировании подхода к интерьеру – открытость и прозрачность, при этом пространство имеет структурное деление на зоны.
Логотип компании выполнен из 6мм листа меди как символа одновременно вечного и высокотехнологичного материала.
Цветовое решение интерьера построено на базовых нейтральных цветах, но за счет дихроической пленки, обилия стекла и небольших акцентов офис наполняется цветом и настроением.
Интерьер собирает яркая линия воздуховодов системы вентиляции, которая наполняет пространство свежим воздухом не только в прямом смысле, превращая офис в урбан джангл.
Всего в офисе размещено 40 рабочих мест.
