Офисный центр на улице Кулибина, 3 в Нижнем Новгороде (2017–2021)
© ТА Архитектора Быкова
Если уж говорить об играх, то мое название – прятки. Комплекс настолько хорошо скрылся в контурах периметральной застройки квартала на краю исторического центра, что разглядеть его более-менее внятно можно только с одной стороны, с улицы Тимирязева, и еще небольшой кусочек – с улицы Кулибина.
Квартал вокруг пестрый, прошу прощения, грязноватый, крикливый. Рядом трамвайное кольцо, ТРЦ «Небо» и крытый рынок, жизнь бьет ключом, – словом, нет ничего удивительного в том, что элегантный офисный центр, белый-белый, чистый-чистый, спрятался во дворах, как настоящий интроверт.
Офисный центр на улице Кулибина, 3 в Нижнем Новгороде (2017–2021)
© ТА Архитектора Быкова
Хотя, конечно, несложно догадаться, что «прятки» вынужденные: такой достался участок. Однако во многом именно поэтому и можно было позволить себе отвлеченное, абстрактное решение – по собственным словам авторов, «выполненное в современной стилистике». Ни на что не реагировать, не отражать и не откликаться, а скорее создать внутри двора структуру нового типа.
Не скрою, что похожим решением отличается здание Мосгордумы, спроектированное архитекторами СПИЧ и реализованное к 2015 – оно тоже скрывается во дворах за историческими зданиями, в его случае за Ново-Екатерининской больницей, и обладает похожей белой фасадной сеткой вертикальных пропорций. Кроме того, в близкое время – в середине 2010-х годов – в том же нижегородском дворе на Кулибина уже был построен офисный корпус похожей стилистики. Его автор – архитектор из Сарова Илья Ильин, а заказчик тот же, что у нового офисного центра. То есть стилистика, скажем условно, «белой-сетки-во-дворе» здесь была задана несколько ранее.
Вид из-за забора. На дальнем плане офисный центр Кулибина, 3 (АМ архитектора Быкова, 2017–2021), на первом плане корпус архитектора Ильи Ильина (сер. 2010-х гг.), примыкающий к БЦ «На Кулибина». В рейтинге не участвовал, но выглядит частью нового комплекса
Фотография: Архи.ру
Но идея развита, а прием, в конце концов, можно признать тиражируемым и широко известным (называют и Берлин, и Швейцарию, да и чего стоят одни опыты Дэвида Чипперфильда).
Надо сказать, что в данном случае использование пресловутого характерного для Нижнего «мокрого фасада», то есть штукатурки, оказалось удачным для белой сетки – у нее нет стыков. Хотя интересно, как фасад будет «стареть» и как его будут чистить.
Офисный центр на улице Кулибина, 3 в Нижнем Новгороде (2017–2021)
Фотография: Архи.ру
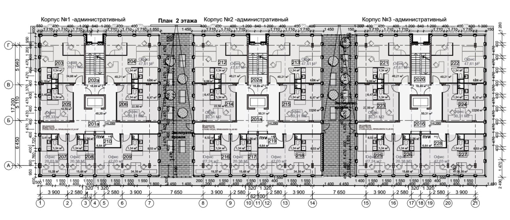
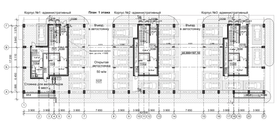
Коротко говоря, 5-этажный офисный центр состоит из трех похожих корпусов, выстроенных продольно на общем стилобате. Стилобат состоит из открытой (!) парковки между опор ж/б каркаса первого этажа, лестнично-лифтовых узлов каждой башни и эксплуатируемой кровли. Первый ярус еще не отделан и эксплуатируемая кровля еще не реализована, но они запланированы. В остальном здания готовы и, если до них добраться, радуют белизной, чистотой и стройностью, как будто даже бравируя чистотой на фоне силикатного кирпича, труб и керамогранита соседних построек.
Офисный центр на улице Кулибина, 3 в Нижнем Новгороде (2017–2021)
Фотография: Архи.ру
К чистоте рисунка, впрочем, есть вопрос. Пролеты ровные, стекла цельные, но местами – к примеру, на юго-западном углу, ритм дает сбои, которые кажутся вынужденными. Увеличенная толщина верхней и нижней тяги тоже кажется то ли недостаточной, то ли избыточной. Но парадокс: на картинках эти детали бросаются в глаза, а на месте не ощущаются – наверное, по контрасту с окружением.
Офисный центр на улице Кулибина, 3 в Нижнем Новгороде (2017–2021)
© ТА Архитектора Быкова
И еще, возвращаясь к отмеченному куратором статусу бюро Виктора Быкова (который в 2011–2018 годах был главным архитектором Нижнего) как «классиков нижегородской архитектуры», скажу, что его портфолио очень разнообразно. В нем встречается и настоящая классика-историзм, и характерно-нижегородские вещи в мондриановских цветах, и многое другое. В каталоге ГЦСИ можно увидеть лишь часть относительно ранних работ.
В том же нынешнем 14 рейтинге участвовало еще два объекта бюро Быкова, KM Towers plaza, с рейтинговым названием Sweet home Chicago, жилой комплекс из домов-пластин с задорными колонками в виде аттика, маскирующими вентвыходы на кровле, и ТРЦ «Океанис» – совершенно иной и с другими прообразами. В короткий список он, правда, не прошел, остался в длинном. Но в данном случае на мой взгляд «Прятки-Классики» вполне заслуженно заняли свое место в шорт-листе рейтинга.
Благодарим куратора Рейтинга нижегородской архитектуры Марину Игнатушко за помощь в поиске материалов и информации.
Офисный центр на улице Кулибина, 3 в Нижнем Новгороде (2017–2021)
Фотография: Архи.ру
