Виллы идентичны, но отличаются цветом и материалом отделки: белая бетонная перекликается с березовой рощей, черная – с темной корой сосен. В остальном решения идентичны. Почти квадратные в плане виллы имеют в центре полноценное патио – его абсолютная приватность становится важной по той причине, что виллы не закрыты забором, а прилегающей территорией пользуются гости гольф-клуба. Полностью остекленные стены патио пропускают естественный свет, вид на небо и верхушки деревьев, а кроме того делают общее пространство дома – гостиную и столовую – невероятно просторным: глаз не только не встречает глухих перегородок, но и устремляется за пределы стен, поскольку вид на ландшафт доступен практически из любой точки.
Уединения добавляют также выступающие элементы фасада – козырьки защищают не только от прямого солнечного свет, но и от прямых взглядов. Минимализм фасадов, облицованных прямоугольными панелями, разбавляют декоративные металлические панно с перфорированным узором, повторяющим очертания деревьев. Узор акцентирует портал входной группы и небольшую террасу. Вечерняя подсветка делает этот элемент похожим на кружевную ширму или хрупкий ледяной узор, контрастирующий с основными брутальными объемами. Оформление камина тем же перфорированным узором подчеркивает взаимосвязанность интерьера и ландшафта. С дальних ракурсов виллы мимикрируют под окружение и сливаются с лесом, а на более близком расстоянии готовы производить на зрителя впечатление.
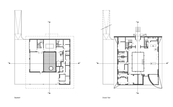
На первом этаже располагаются спальни, столовая-гостиная, кухня и санузлы, в цокольном – спа-зона с бассейном и технические помещения.
