Новый сквер его имени обустроен на правом берегу Оки, в микрорайоне Правобережье, где первый многоквартирный дом построили в 1982 году. Вокруг – в основном типовые жилые многоэтажки, а сквер, созданный на месте пустыря, примыкает к почти завершенному ЖК «Лесной» компании ПИК. ЖК выстроен в характерной для ПИКа стилистике, что выделяет его на фоне соседних, в основном кирпичных, многоэтажек. Проект реализован полностью за счет бюджета «в рамках нацпроекта «Жилье и городская среда» регионального проекта «Формирование комфортной городской среды».
Памятник Краснопивцеву (на постаменте надпись: «защитнику отечества от благодарных потомков», автор скульптуры Денис Стритович) открыли в декабре 2019 года: он вынесен на «мыс» сквера при пересечении улицы Фомушина, одной из главных трасс Правобережья, и улицы 65-летия Победы. Мощение красного цвета.
Сквер Краснопивцева
Фотография © Юрий Бучарский, Кирилл Гусев
Но сквер не только мемориальный, подчеркивают авторы, он и общественный, функция двойная, здесь планируется проводить мероприятия, да и просто гулять и отдыхать. Вторая часть сквера, ближе к ЖК – именно такого общественного свойства. Здесь больше травы, здесь деревья, которые, надеемся, подрастут (пока малы, но мы и не на Садовом кольце).
Сквер Краснопивцева
Фотография © Юрий Бучарский, Кирилл Гусев
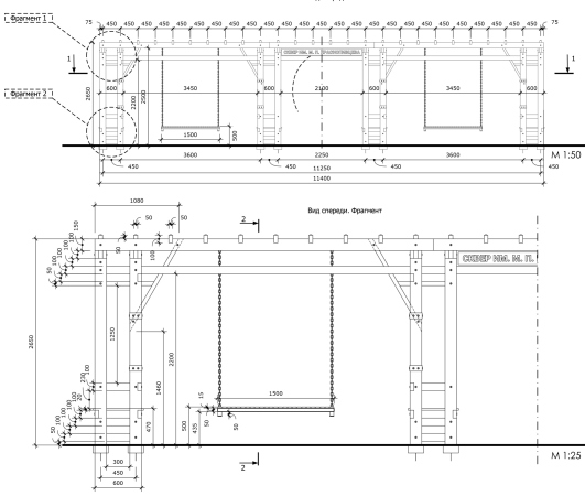
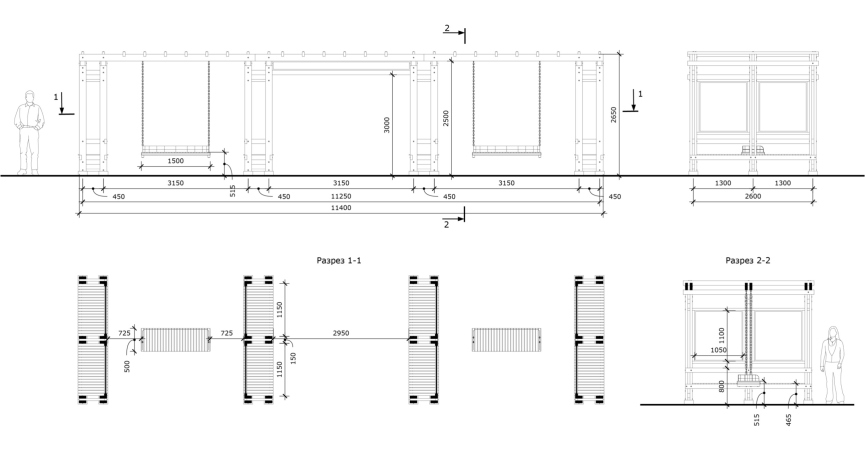
В самом центре сквера – беседка «Красная звезда»: деревянный каркас, красный пластик кровли, – предполагается, что в ней можно будет не только прятаться от дождя, но и проводить мастер-классы. В дальней части, то есть ближе к домам – пергола в качелями, прямо как на Триумфальной площади – с ней, к слову сказать, возникает перекличка: там Маяковский и качели, тут командир и качели.
Таким образом, мемориальная функция, акцентировная на перекресток в восточной части сквера, в центре становится гибридной, двойной: звезда, гипермасштабный символ, считываемый из окна автомобиля, не стоит сам по себе, как в советское время, а «начинен» вполне себе рекреационной функцией. И, наконец, в западной части качели – чистое развлечение, от символики остался только ярко-красный цвет. Здесь, в рекреационной «половине», и вымостка теряет красный цвет, превращаясь в нейтральные оттенки серого.
«Удалось совместить жизнь и память так, чтобы это не было излишне вычурно и пафосно. Нужно говорить не просто о величии оружия, а доступным языком говорить про подвиги наших русских людей, про то, что эти люди среди нас, что это и есть мы», – подчеркивают авторы. И надо признать, они совершенно правы.
Сквер Краснопивцева
Фотография © Юрий Бучарский, Кирилл Гусев
Авторы сквера – Главархитектура Калуги лично главный архитекор города Алексей Комов.
Сквер Краснопивцева
Фотография © Юрий Бучарский, Кирилл Гусев
Сквер Краснопивцева
Фотография © Юрий Бучарский, Кирилл Гусев
Сквер Краснопивцева
Фотография © Юрий Бучарский, Кирилл Гусев
Сквер Краснопивцева
Фотография © Юрий Бучарский, Кирилл Гусев
Признаемся, кому как не Алексею Комову, – архитектору, который много лет с завидным упорством развивает в своих инсталляциях и объектах темы советской символики, собственно и следовало поручить такое дело как мемориальный сквер в память ВОВ. Сама по себе скульптура командира с планшетом в руках неплоха, напоминает кино семидесятых, но бронзовые монументы из-за их обилия превратились, увы, в банальность. А ярко-красные инсталляции освежают дискурс, становятся агентами современного подхода к благоустройству, да и наделены, кроме того, явственными чертами авторской стилистики.
Красная звезда сложена из двух объемных решеток: некрашеной деревянной и красной, цвета пролетарского знамени. В некрашеные решетки встроены с внутренней стороны скамейки, а с внешней – выставка на тему звезд в советских орденах. Крылья большой звезды прикрывают выставку от дождя, из них получились отличные козырьки.
Все очень хорошо и осмысленно. Наконец-то символ не пропадает даром посреди площади. Тут вспоминается гигантское сердце в микрорайоне Мальково в Наро-Фоминске: там только фотографируются, что если можно было бы посидеть?
Звезду дополняют скамейки, из серии скамеек Алексея Комова со звездами под названием Ла-5, которая в 2013 стала лауреатом премии АРХИWOOD. Идея адаптирована специально для сквера Краснопивцева. Они, как и полагается в мемориальном парке, на вид не вполне анатомичные, без буржуйских изогнутых спинок, но крепкие и внушительные. «Скамейки, кстати, удобные, – возражает Алексей Комов. – Жителям они нравятся. В форме подлокотников я ориентировался на корбюзеанский стандарт».
Сквер Краснопивцева
Фотография © Юрий Бучарский, Кирилл Гусев
Сквер Краснопивцева
Фотография © Юрий Бучарский, Кирилл Гусев
Сквер Краснопивцева
Фотография © Юрий Бучарский, Кирилл Гусев
И, наконец, пергола с качелями. Формат уже отработан и охотно принят взрослыми и детьми в Москве и окрестностях, без него уже почти не обходятся, что и правильно. Здесь вот каркас красный, а на боковых стенках – картинки старых самолетов, опять же, со звездами на фюзеляжах, – но и метафора полета, толику которого мы испытываем, раскачиваясь на качелях.
Сама по себе идея совместить архаичную идею поставить памятник с современной идеей благоустройства кажется привлекательной, хотя, прямо скажем, я бы добавила побольше зелени. Интересно, можно ли было потратить деньги на кусты и деревья вместо памятника? А в память командира осталась бы стела, тем более что она в сквере уже есть. Люди бы дышали, и это было бы памятью о красном командире, воспитанном царской армией.
Как уже было сказано, сложно было бы найти автора для сквера в честь полковника, погибшего на войне (воевал Михаил Краснопивцев с 20 лет, много и, надо думать, как энтузиаст, в начале ВОВ все время выходил из окружения, в одном из боев потерял старшего сына, а сам погиб через 3 месяца после того, как вошел в Калугу, – в 1942, вновь в попытке выйти из окружения).
Алексей Комов регулярно демонстрирует общественности результаты пластических поисков, посвященных советской символике – в данном случае, при военном памятнике, они более чем уместны. Поиски эти – увлеченные и вполне современные, соединяют вполне актуальные функции с преданностью определенной символике и некоторой бравадой; а впрочем, большинство людей, увлеченных идеей и символикой, браваде не чужды. И что-то есть в этой браваде, хотя вероятно, автор со мной не согласится, от соцарта.
Так что решение может вызвать критику с двух сторон.
Кто-то скажет, и зачем нам красные звезды вообще? Оставить бы советское прошлое в прошлом! Никак мы не можем его ни пережевать, ни выплюнуть...
Другой кто-нибудь скажет, с противоположной стороны – как можно, символам надо поклоняться, на коленях ползти, как можно в них на лавочке сидеть и на красных качелях раскачиваться? [Тут вспоминается повесть Фёдора Абрамова «Алька»: «Флагом задницу обернула – мода теперь такая, а?». Напомню, Алька приехала в родную деревню из города в темных очках и красных штанах]. Флаг – не флаг, и знак не знак, а стоило заикнуться про конкурс на Мавзолей, и какие дебаты развернулись вокруг него.
Так что результат выглядит смелым, с обеих позиций. В советское время не факт, что за такие инсталляции погладили бы по голове – ну, во всяком случае, после 1931 и до 1985 года. Здесь звезда выглядит не столь серьезно, скорее музейно, что подчеркивает ее принадлежность прошлому и игровую составляющую; да и прототипы авангарда, еще не вполне забытого к 1942 году, когда погиб Краснопивцев, прочитываются – чистая получилась, романтического плана краспоармейская символика, сродни человеку из стрелковой чапаевской дивизии. Но определенно, этот вариант памяти о войне получился менее противоречивым, чем храмово-мемориальный комплекс в Кубинке.
Да и радостный, и человеколюбивый по-своему. Деревьев бы только подсадить.
