Здание B-One компании Berlin Hyp
Фото © Franz Brück
Здание B-One компании Berlin Hyp
/ Office building B-One for Berlin Hyp
информация:
-
статус
реализовано -
даты
2020 / — 2025 -
место
Германия, Берлин -
координаты
52.506770, 13.347801 -
функция
Административно-офисный / офисное здание -
теги
«Зеленое» строительство, Камень, Терраса, Эксплуатируемая кровля, Архитектура у воды -
общая площадь
19 000 м2 -
высота
45 -
этажность
11

C. F. Møller /
C. F. Møller / ДанияЗдание B-One компании Berlin Hyp
Фото © Franz Brück
Архи.ру об этом объекте:
25.09.2025
Нина Фролова. Архитектурная «дипломатия»
Новое здание банка Berlin Hyp рядом с посольским кварталом в центре Берлина спроектировано C. F. Møller как образец «северного» подхода к архитектуре.
читать дальшеЗдание B-One компании Berlin Hyp
Фото © Franz Brück
Здание B-One компании Berlin Hyp
Фото © Franz Brück
Здание B-One компании Berlin Hyp
Фото © Franz Brück
Здание B-One компании Berlin Hyp
Фото © Franz Brück
Здание B-One компании Berlin Hyp
Фото © Franz Brück
Здание B-One компании Berlin Hyp
Фото © Franz Brück
Здание B-One компании Berlin Hyp
Фото © Franz Brück
Здание B-One компании Berlin Hyp
Фото © Franz Brück
Здание B-One компании Berlin Hyp
Фото © Franz Brück
Здание B-One компании Berlin Hyp
Фото © Franz Brück
Здание B-One компании Berlin Hyp
Фото © Franz Brück
Здание B-One компании Berlin Hyp
Фото © Franz Brück
Здание B-One компании Berlin Hyp
Фото © Franz Brück
Здание B-One компании Berlin Hyp
Фото © Franz Brück
Здание B-One компании Berlin Hyp
Фото © Franz Brück
Здание B-One компании Berlin Hyp
Фото © Franz Brück
Здание B-One компании Berlin Hyp
Фото © Franz Brück
Здание B-One компании Berlin Hyp
Фото © Franz Brück
Здание B-One компании Berlin Hyp
Фото © Franz Brück
Здание B-One компании Berlin Hyp
Фото © Franz Brück
Здание B-One компании Berlin Hyp
Фото © Franz Brück
Здание B-One компании Berlin Hyp
Фото © Franz Brück
Здание B-One компании Berlin Hyp
Фото © Franz Brück
Здание B-One компании Berlin Hyp
Фото © Franz Brück
Здание B-One компании Berlin Hyp
Фото © Franz Brück
Здание B-One компании Berlin Hyp
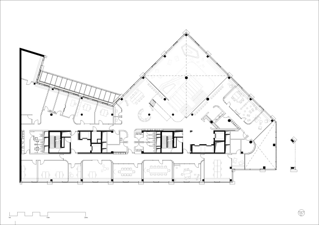
© C.F. Møller Architects
Здание B-One компании Berlin Hyp
© C.F. Møller Architects
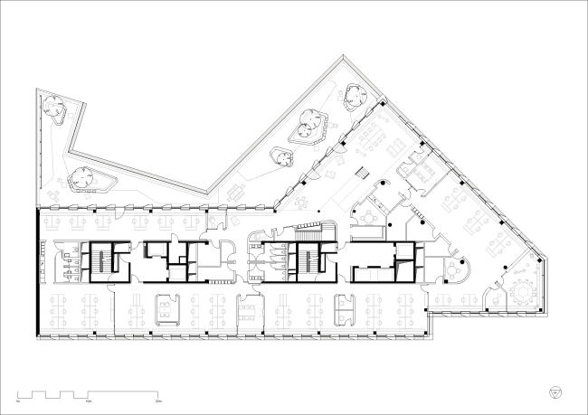
Здание B-One компании Berlin Hyp
© C.F. Møller Architects
Здание B-One компании Berlin Hyp
© C.F. Møller Architects
Здание B-One компании Berlin Hyp
© C.F. Møller Architects
Здание B-One компании Berlin Hyp
© C.F. Møller Architects
Здание B-One компании Berlin Hyp
© C.F. Møller Architects
Здание B-One компании Berlin Hyp
© C.F. Møller Architects
Здание B-One компании Berlin Hyp
© C.F. Møller Architects
Здание B-One компании Berlin Hyp
© C.F. Møller Architects
Здание B-One компании Berlin Hyp
© C.F. Møller Architects
Здание B-One компании Berlin Hyp
© C.F. Møller Architects
Здание B-One компании Berlin Hyp
© C.F. Møller Architects
Здание B-One компании Berlin Hyp
© C.F. Møller Architects
Здание B-One компании Berlin Hyp
© C.F. Møller Architects
Здание B-One компании Berlin Hyp
© C.F. Møller Architects
Здание B-One компании Berlin Hyp
© C.F. Møller Architects
Здание B-One компании Berlin Hyp
© C.F. Møller Architects
Здание B-One компании Berlin Hyp
© C.F. Møller Architects
Здание B-One компании Berlin Hyp
© C.F. Møller Architects
Здание B-One компании Berlin Hyp
© C.F. Møller Architects
Здание B-One компании Berlin Hyp
© C.F. Møller Architects
Избранные архитекторы:
Проект из каталога (случайный выбор)
Избранные постройки:
Зарубежные новости
16.10.2025
Крыша из чешуек
15.10.2025
Равнение на Дунай
14.10.2025
«Вычислительная» архитектура
10.10.2025
Жителям каменоломни
09.10.2025