Аэропорт «Платов», Ростов-на-Дону
© Twelve Architects
Конкурс на проект объявили в 2013 году, до этого компания Lufthansa помогла выбрать подходящий участок, учитывая розу ветров и перспективное строительство второй взлетно-посадочной полосы. На первом этапе участвовало 27 бюро, затем отобрали 11 проектов, в итоге победило предложение Twelve Architects & Masterplanners. Руководитель проекта Алекс Битус рассказывает, что выиграть помогла в некотором смысле дерзость: по техзаданию кровля должна была быть плоской, что сводило всю борьбу до конкурса на лучший фасад. Бюро решило обойти это условие, обосновало подход, подсчитало, что удорожания не будет. В результате оказалось, что остальные участники следовали поставленной задаче, а проект Twelve Architects на их фоне выгодно отличался.
Архитекторы рассматривали будущий аэропорт как «мост в небо», связывающий города и страны. Из этой идеи родились параболические арки на кровле, три из которых приподнимаются и выдвигаются на площадь перед терминалом, обозначая основные входы и зоны: прилета, международных и внутренних вылетов. Арки оказались емким образом, не удивительно, что впоследствии появились и другие интерпретации: жителям в них видятся скорее волны Дона или степные холмы.
Аэропорт «Платов», Ростов-на-Дону
© Twelve Architects
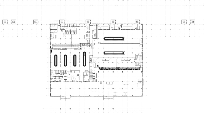
Основное тело аэропорта – простой прямоугольник с галереей и посадочными «рукавами» вдоль летного поля. Сложности и динамики ему придает именно изогнутая кровля из вальцованного алюминия. Примерно посередине здания, там, где выдвигается к площади средняя арка, кровлю на всю длину «рассекает» световой фонарь шириной восемь метров. Он не только наполняет помещение дневным светом, но и служит элементом навигации, поскольку разделяет терминал на залы международных и внутренних вылетов. На «глухие» боковые фасады выходят два зала повышенной комфортности, еще один располагается в центре зала.
Аэропорт «Платов», Ростов-на-Дону
© Twelve Architects
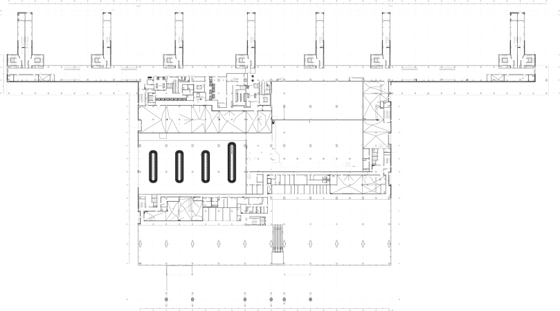
Внутри терминала архитекторы хотели создать уютную и спокойную атмосферу, поскольку для многих людей путешествие – это стресс. Задача, как оказалось, не самая простая, учитывая, что использовать можно только негорючие материалы, выбор которых весьма ограничен. Нужного результата добились с помощью теплых оттенков, кадок с растениями и отсылающих к местному колориту деталей. Для арендаторов спроектировали домики-павильоны, напоминающие «казачьи хаты». Их зеленая кровля – самая настоящая: живые нолины поддерживает система автополива, интегрированная в домики.
Ландшафтный дизайн, в том числе каскадные водоемы, в которых здание аэропорта эффектно отражается, разработало также Twelve Architects. А схема мощения и посадки деревьев принята из концепции благоустройства, которую подготовило бюро Wowhaus.
Аэропорт «Платов», Ростов-на-Дону
© Twelve Architects
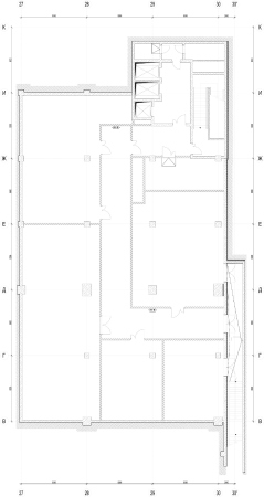
Здание аэропорта вписано в ортогональную сетку с ячейками размером 16х16 м, конструктивно и технологически оно спроектировано так, что можно расширять вправо и влево не только «короб»-процессор, но и галереи, увеличивая количество контактных стоянок для самолетов.
Алекс Битус подчеркивает: «Расширение, безусловно, возможно, но с точки зрения сегодняшней авиационной технологии. Какой она будет через 20-30 лет, мы точно не знаем. Технология авиационных перевозок меняется очень быстро, появляется новое оборудование, требования, возможности. Все может кардинально измениться. В этой связи хороший пример – здание Пулково-1, проект реконструкции которого мы сделали в прошлом году. Этой постройке скоро будет 50 лет, для здания срок совсем небольшой, но мы видим гигантскую пропасть с точки зрения технологии перевозок пассажиров тогда и сейчас. Расширять это здание практически невозможно, да и технологические процессы из него полностью убрали из-за несовместимости планировочных решений и требований технологии, оставив только посадку пассажиров и бизнес-залы».
Тот же опыт показывает Великобритания: после реконструкции от аэропортов, построенных в 90-е годы прошлого века, остаются только колонны, фасады и кровля. Архитектор считает, что «по-хорошему, здание аэровокзала должно быть ангаром с возможностью изменения начинки, этого требует постоянно совершенствующаяся технология».
«Платов» рассчитан на пассажиропоток в пять миллионов человек в год, но пока что работает не на полную мощность: полноценному развитию аэропорта и, как следствие, его инфраструктуры, препятствует закрытая воздушная зона над Донбассом. «Ее облет для европейских компаний увеличивает расходы, в результате авиаперевозчики не рассматривают это направление как коммерчески привлекательное», – поясняет Алекс Битус.
Пассажирский терминал разрез.
Аэропорт «Платов»
предоставлено Twelve Architects
Пассажирский терминал фасад в осях.
Аэропорт «Платов»
предоставлено Twelve Architects
Пассажирский терминал фасад в осях.
Аэропорт «Платов»
предоставлено Twelve Architects
Пассажирский терминал фасад в осях.
Аэропорт «Платов»
предоставлено Twelve Architects
Гостиница и регулярное сообщение в виде железной или монорельсовой дороги должны появится, когда загрузка аэропорта достигнет планируемых показателей, а рейсы станут наполняемыми и регулярными. Алекс Битус уверен, что со временем это неизбежно произойдет, и вокруг аэропорта появятся логистические центры.




