руководители «Кооперативной студии «Новгород»:
«В этом году студия «Новгород» продолжала исследования невидимых аспектов архитектуры. Дипломная студия связывала вместе три компонента: Выборг как место архитектурной интервенции, жилищный кооператив как тип жилья, недостаточно развитый в России, и фасад как архитектурный феномен, утративший свое значение в течение XX века.
Работа началась с поездки в Выборг и исследования зданий, построенных в финском городе в 1900–1930-е. Студенты изучали видимые и неочевидные характеристики фасадов, а затем перешли к обследованию участков для проектирования – эти впечатления питали их проекты на протяжении всего года.
Вернувшись в Москву, студия перешла к изучению того, как формировался язык фасадов городского палаццо в итальянской архитектуре XIV–XVI веков. В результате стало понятно, что фасад – это самостоятельный архитектурный жанр со своими законами, отсылками и языком.
После этого работа каждого над своим жилищным кооперативом началась с разработки фасадов с опорой на примеры из истории, трансформированные в собственные принципы. Параллельно студенты изучали кооперативные жилые проекты в Швейцарии и собственное жилье.
Затем необходимо было разработать программу будущего здания в Выборге и включить в нее дополнительную городскую функцию для первого этажа – части, с помощью которой здание общается с горожанами.
Разработанные фасады необходимо было соотнести с другими частями здания: программой, планом, пространственной схемой, окружением. Устанавливая эти связи, студенты постоянно трансформировали свое здание, чтобы целое существовало как сумма всех своих частей. Отдельное внимание уделялось окнам как главной части фасада, с которой постоянно взаимодействуют жильцы дома.
В ходе работы каждый студент выступал куратором собственного исследования и дисциплинированным автором, внимательно относящимся ко всему, что он делает».
***
Divi I Puri
Александра БоеваDivi I Puri. Автор работы: Александра Боева. Преподаватели: Кирилл Асс, Антон Горленко, Юрий Пальмин.
© МАРШ
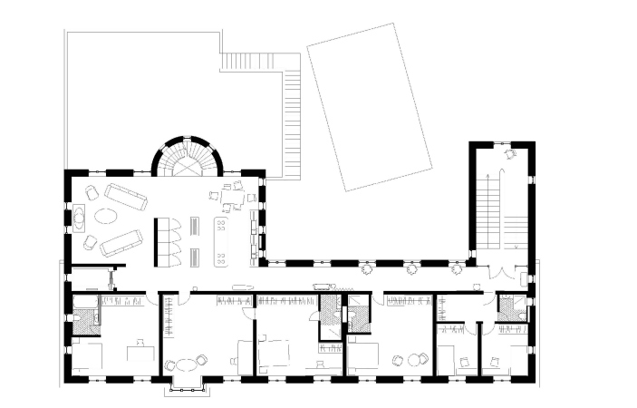
Участок, который выбрала Александра, находится на пересечении четырех улиц: Сторожевой Башни, Красноармейской, Титова и Крепостной. Когда-то здесь была городская усадьба, но от нее уцелели только два больших камня – остатки подъездных ворот. Именно с опорой на их характер была выстроена структура фасада, сами камни стали частью здания.
Кооператив построен на основе британской модели «live-in», переосмысленной под российскую реальность: люди не только живут в нем, но и занимаются бизнесом.
Устройство задает иерархию. На первом этаже располагаются баня и бар. Второй этаж занимают инициаторы создания кооператива, здесь же располагается гостевая квартира, а окна на этом уровне самые большие. Третий этаж со средними по величине окнами отведен для съемных квартир: аренда приносит кооперативу дополнительные средства для существования. На последнем этаже живут сотрудники бара и бани, здесь самые маленькие окна. Фасады, таким образом, отражают социальную иерархию.
В общем распоряжении большая гостиная. Лестницы спроектированы таким образом, что невозможно выйти из дома, не миновав ее: таким образом каждый хоть немного приобщается к жизни сообщества.
Divi I Puri в переводе с латыни значит «божественный и чистый», также эти два слова созвучны названию Выборга на финском языке – Bиипури (Viipuri). А еще эти два слова с одинаковым количеством букв – как две равнозначных части здания, и разделены они буквой I – то есть трубой.
***
Кооператив ткачей
Алия ШигаповаКооператив ткачей. Автор работы: Алия Шигапова. Преподаватели: Кирилл Асс, Антон Горленко, Юрий Пальмин.
МАРШ
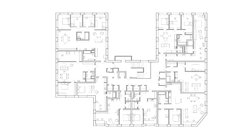
Алия Шигапова работала с тем же участком. По теории Готфрида Земпера, появление главного элемента архитектуры – стены – восходит к ткачеству. Кроме того, именно ткачи были основателями первого кооператива в Рочдейле. Исходя из этого автор решила проектировать кооператив ткачей, используя каменный цоколь, оставшийся на улице Сторожевой башни от сгоревшего деревянного дома XIX века.
Кооператив ткачей. Автор работы: Алия Шигапова. Преподаватели: Кирилл Асс, Антон Горленко, Юрий Пальмин.
МАРШ
Кооператив создают 18 семей, разных по составу, имеющих возможность работать дистанционно. Современные ткачи – это модельеры, производители кожаных изделий, ковроткачи, вязальщики.
На первом этаже располагается просторная мастерская с необходимым оборудованием, залы для приема и выдачи заказов, выставочные залы, пространство для ритейла, склады. Одно из важнейших помещений – зал для собраний, на которых принимаются решения о жизни кооператива.
Два жилых этажа имеют меньшую высоту, чем первый общественный. На каждом расположено по девять квартир с разными планировками, почти из всех открывается вид на залив.
Через окна в коридорах можно рассмотреть, как хранится ткань и как работают специалисты. Входные двери регулируют потоки посетителей и жителей таким образом, что прохожие не могут попасть в лестничный блок, ведущий на верхние жилые этажи. Кооператив ткачей – это город в городе со своим уставом, улицами и туристами.
***
Кооператив «Второе дыхание»
Геннадий ДружининКооператив «Второе дыхание». Автор работы: Геннадий Дружинин. Преподаватели: Кирилл Асс, Антон Горленко, Юрий Пальмин.
МАРШ
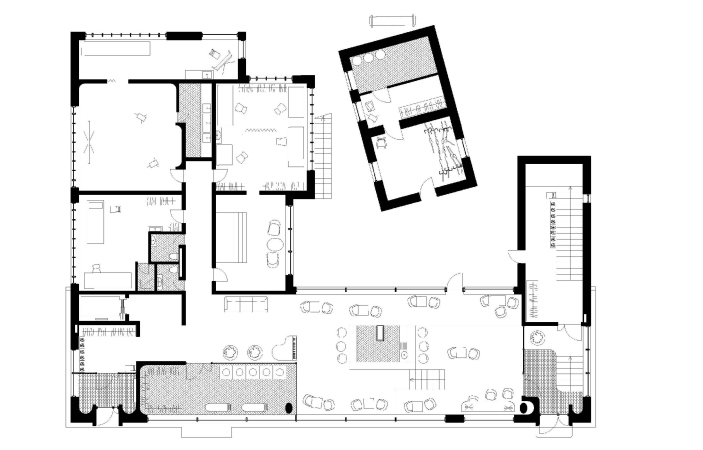
Геннадий Дружинин разработал кооператив для пожилых людей. Чтобы объяснить суть проекта, он придумал «легенду» о пожилой паре, которая устала жить в большом городе, но скучала по даче, земле. Друг Миша советует им переехать в Выборг и поселиться в кооперативном доме, попутно вспоминая, что сам никогда не жил один: родился в коммунальной квартире, затем переехал с родителями, бабушкой и сестрой в отдельную квартиру, ездил в пионерлагеря, прошел армию, жил в общежитии с женой и ребенком. И так до тех пор, пока не овдовел. Кооператив «Второе дыхание» в небольшом городе пришелся ему по душе.
Здание состоит из нескольких общих зон разной степени приватности, а на последнем четвертом этаже расположены небольшие квартиры, в которых есть спальня, санузел и кабинет. Окна в каждой квартире выходят на две стороны. Подниматься можно по лестницам или с помощью платформ. В гостевых комнатах можно принимать друзей и родственников.
Вот личные впечатления жильцов:
«Я посмотрел на здание и подумал, что Михаил поселился весьма аскетично. Дом был новый, но без претензии. Фасад был гладким, а окна... Окна были просто окнами. Второй этаж весь с балконам, и все. В общем ничего особенного».
«Миша стал объяснять устройство дома: вход у каждого свой. Там дальше проход во двор, там огород и сад. Cбоку хозяйственная комната и кладовка. Я поднимусь по лестнице, а ты вставай тут. Меня поставили в угол, Миша нажал на что-то и комната поехала вниз. Это была платформа. Вроде лифта, но открытая».
«Мы пошли к противоположной от камина стене, свернули в коридор и, поднявшись по лестнице, оказались у обычной двери. Миша открыл ее и мы вошли в небольшую студию. Я бывал в похожих за границей. Комната с кроватью и креслом. Письменный стол и шкаф. Есть своя кухня и ванная комната. Приятный гостиничный номер».
***
Кооператив Kaupungin Olohuone
Даниил Наринский
Кооператив Kaupungin Olohuone. Автор работы: Даниил Наринский. Преподаватели: Кирилл Асс, Антон Горленко, Юрий Пальмин.
МАРШ
Даниил также отталкивался от гипотетического сценария формирования коммуны: многие молодые люди переезжают из Москвы в Петербург, например, и выбирают жизнь в коммунальных квартирах. Исходя из этого Даниил разработал новое пространство, подходящее для совместной жизни – кооператив в Выборге по знакомой улице Сторожевой башни, 22.
Пластика фасада – отдельный сюжет, который откликается на окружающие здания и историю города (автор исследовал фасад жилого дома, спроектированного финским архитектором Оле Грипенбергом в 1930-х годах), и в то же время рассказывает об иерархии и назначении внутренних помещений дома. Динамичная пластика дворового фасада контрастирует с почти плоским главным фасадом. Разницу в приватности зон подчеркивает руина во дворе кооператива – флигель, сохранившийся от усадьбы XIX века.
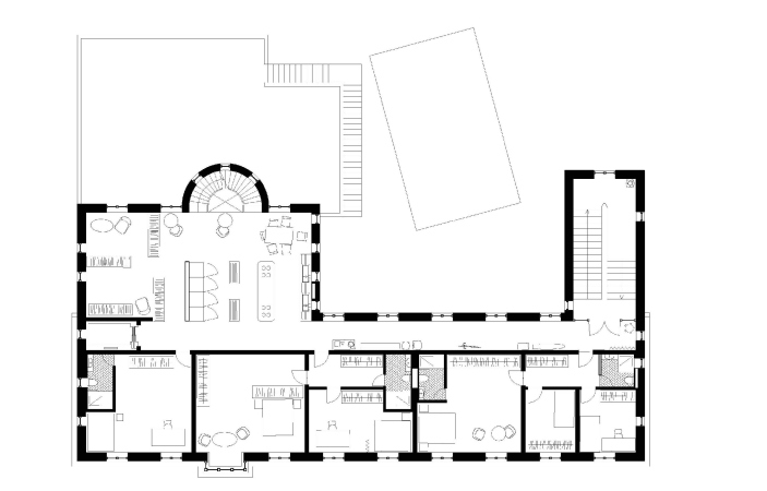
В здании четыре этажа. На первом – городская гостиная (Kaupungin Olohuone по-фински), то есть общественное пространство с баром и магазином одежды, которое принадлежит жильцам кооператива, но доступно всем горожанам. Здесь можно выпить, зайти в мастерскую художника, посмотреть небольшую выставку или набить татуировку. Карниз над первым этажом отделяет общественную и жилую части здания.
Жилые этажи равны между собой, а вот размеры квартир – нет: материальное положение жильцов кооператива разное. В доме есть как маленькие гостевые номера с общим душем, так и более комфортные квартиры со своей гостиной, ванной комнатой, эркером.
Общее пространство в жилой части дома объединяет винтовая лестница. Каждый жилец может пользоваться верандой на втором этаже или каминным залом на четвертом.
***
