Бассейн «Альстершвимхалле» – реконструкция
Фото © Marcus Bredt
Архитекторы Хорст Ниссен, Рольф Штёрмер, Вальтер Нойхойссер и конструктор Йорг Шлайх создали бетонную оболочечную конструкцию, до сих пор остающуюся одной из крупнейших в Европе и даже в мире. Два гипара, опирающихся на три диагональные опоры, перекрывают 4500 м2 и достигают максимальной высоты в 24 м. Толщина кровли – 8 см, максимальный пролет – 96 м.
Бассейн «Альстершвимхалле» – реконструкция
Фото © Marcus Bredt
Несмотря на большую популярность спортивного сооружения, в 2010-е годы руководство бассейна столкнулось с финансовыми трудностями, и заговорили о сносе и строительстве нового здания. В ответ гамбургские архитекторы gmp и бюро изначального конструктора бассейна Йорга Шлайха – schlaich bergermann partner (sbp) – подготовили предложение по реконструкции сооружения. Делу его сохранения помогло и то, что кровля получила охранный статус.
Бассейн «Альстершвимхалле» – реконструкция
Фото © Marcus Bredt
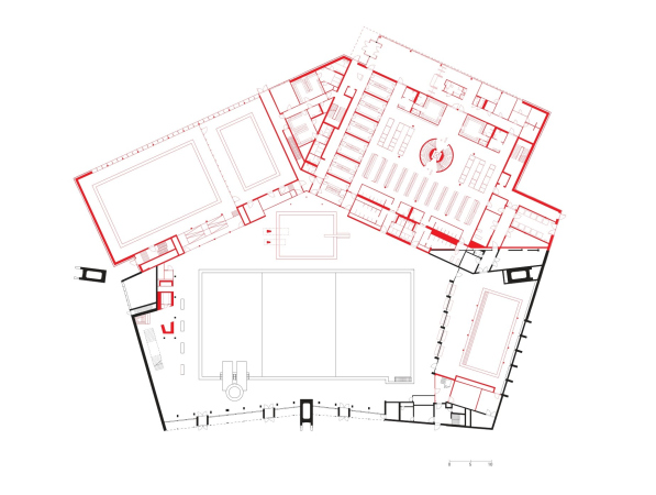
В ходе реновации была сохранена не только бетонная кровля и ее опоры, но и 10-метровая вышка для прыжков в воду и так называемый фитнес-куб. Основной 50-метровый бассейн также был в целом сохранен, но некоторые его части пришлось заменить на новые, что стало самой сложной задачей. Под ним проходит балка, связывающая две из трех опор кровли, и любое ее повреждение могло повлечь разрушение всего сооружения. Поэтому в ходе работ за ее «здоровьем» постоянно тщательно следили.
Все поверхности были возвращены к изначальному состоянию: железобетон отреставрирован и дополнительно защищен от вредного воздействия влажности и хлора, другим частям здания вернули изначальную окраску.
Бассейн «Альстершвимхалле» – реконструкция
Фото © Marcus Bredt
Очень редко используемые в наши дни трибуны демонтировали: вместо них устроили отдельный бассейн для прыжков в воду. Пристройку с севера снесли и заменили на новую: там расположены 25-метровый и тренировочный бассейны, безбарьерный вход, раздевалки, фитнес-центр, сауны. В целом водная поверхность увеличилась в «оперном театре» на четверть; было реконструировано около половины внутренних площадей.
Бассейн «Альстершвимхалле» – реконструкция
Фото © Marcus Bredt
Остекленный фасад с характерными алюминиевыми колоннами-фермами был сохранен. Архитекторы gmp и конструкторы sbp совместно с инженерами – специалистами по фасадам Implenia Fassadentechnik разработали новую систему для соединения кровли и фасада, которая компенсирует колебания кровли с помощью поршней с регулируемой высотой. Таким образом удалось соблюсти требования актуальных СНиП.
Преобразования коснулись и прилегающей территории: создан новый двор перед главным входом, изменена схема подъезда автомобилей, что попутно позволило снизить скорость дорожного движения в прилегающем жилом квартале; проложен пешеходный маршрут, связавший этот квартал с центром Гамбурга.
Бассейн «Альстершвимхалле» – реконструкция
Фото © Marcus Bredt
Бассейн «Альстершвимхалле» – реконструкция
Фото © Marcus Bredt
Бассейн «Альстершвимхалле» – реконструкция
Фото © Marcus Bredt
