Офисный комплекс Bubenská 1
Фото © KIVA
При строительстве использовали новейшие технологии и технические устройства: так, установленные тогда два лифта типа «патерностер» работают и в наши дни. Одним из первых здание получило центральную систему отопления и кондиционирования помещений, в подземном этаже был устроен гараж с грузовым лифтом, доставлявшим туда машины. Имелись городская и местная телефонная связь, пневматическая почта. Для просвещения публики использовались кинозал и выставочные залы. Сотрудникам были доступны, помимо столовой, медицинский центр и бани.
Офисный комплекс Bubenská 1
Фото © KIVA
К концу XX века постройка вмещала городское транспортное управление, медицинский центр стал муниципальной поликлиникой, но роль центра культуры не исчезла: в кинозале проходили концерты, здесь же можно было научиться танцевать. В 1990-е, когда учреждения покинули комплекс, их сменили арендаторы художественного профиля. В 1980-е – 1990-е годы проводились ремонты, но они только искажали облик здания.
Офисный комплекс Bubenská 1
Фото © KIVA
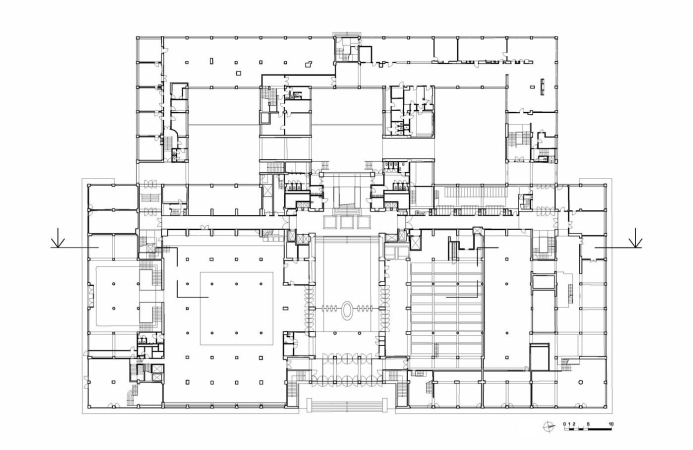
В результате постройку приобрел девелопер CPI Property Group, и по его заказу TaK Architects и команда реставраторов превратила здание Электрических предприятий в офисный комплекс Bubenská 1, названный по своему адресу. Основным арендатором стал международный рекламный холдинг WPP, заключивший договор сразу на 18 лет. На первом этаже располагаются культурный центр, магазины, кафе и рестораны. Здание сохранено и вновь стало частью города, пусть и значительно изменившегося за десятилетия (рядом теперь проходят транспортные артерии). Проект получил ряд премий, его хвалят за тщательное восстановление наследия функционализма, которое в других обстоятельствах нередко идет под снос.
Но часть исследователей считает, что в результате реновации здание лишилось аутентичности, и его статус объекта культурного наследия, присвоенный еще в период социализма, сейчас потерял всякий смысл.
Офисный комплекс Bubenská 1
Фото © KIVA
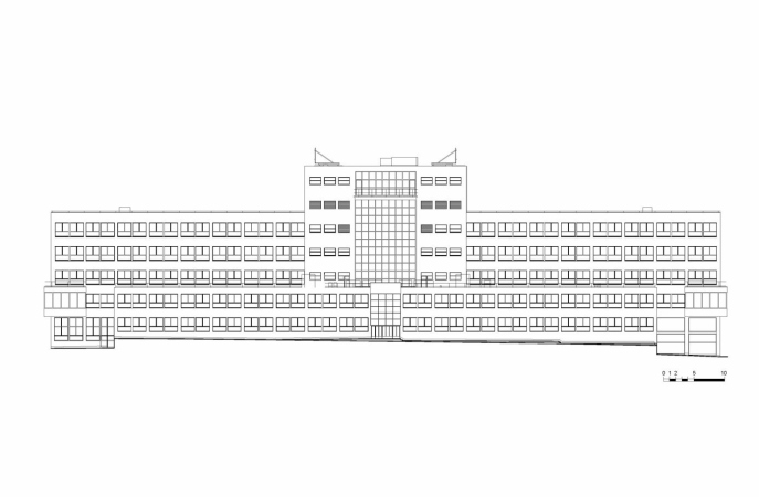
Действительно, изменения нельзя назвать незначительными. Облицовка фасада заменена на новую, из плитки другого оттенка и толщины (оригинальная значительно пострадала еще во Вторую мировую), ее производитель не называется, и критики подозревают, что это китайское предприятие, хотя завод RAKO, где изготовили изначальную плитку, действует в Чехии до сих пор. Всего сменили 6000 м2 покрытия. Деревянные и стальные переплеты окон также заменены на новые, как и остекление перекрытий, сменившее изначальное, из бетона и стеклоблоков. Изменен и фундамент: из-за использования при строительстве кальциево-алюминатного цемента, весьма капризного материала, пришлось его укреплять.
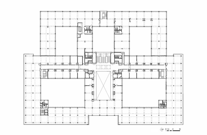
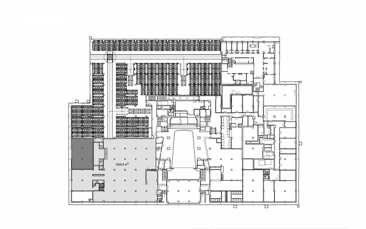
Изменена и планировка: чем дальше от центральной лестницы, тем более она схожа с опен-спейсом, хотя исторически там были лишь закрытые кабинеты. Зато подземный гараж сохранил свою функцию, лишь прежний грузовой лифт сменила автоматическая многоярусная система; вместимость паркинга – 157 автомобилей.
Офисный комплекс Bubenská 1
Фото © KIVA
Офисный комплекс Bubenská 1
Фото © KIVA
Офисный комплекс Bubenská 1
Фото © KIVA
Офисный комплекс Bubenská 1
Фото © KIVA
Офисный комплекс Bubenská 1
© TaK Architects
Офисный комплекс Bubenská 1
© TaK Architects
